Eladó újszerű állapotú ház - Szigetszentmárton
- INGYENES HIRDETÉS FELADÁS
Ingatlan adatai
- Eladó vagy kiadó:Eladó
- Település:Szigetszentmárton
- Kategória:Ház
- Alkategória:Családi ház
- Alapterület:120 m2
- Telekterület:868 m2
- Csere is:Nem
- Hirdető:Cég
- Élő videón megtekinthető:Nem
- Építés éve:1986
- Szobaszám:5
- Állapot:Újszerű, kitűnő
- Hány szintes az ingatlan:2 szintes
- Tetőtér:nincs megadva
- Komfortosság:nincs megadva
- Pince:nincs megadva
- Parkolási lehetőség:Udvaron
- Fűtés:Elektromos
- Bútorozottság:nincs megadva
- Fényviszony:Jó
- Tájolás:nincs megadva
- Kilátás:nincs megadva
- Internet:nincs megadva
- Klíma:Van
- Akadálymentesített:nincs megadva
- Energiatanúsítvány:nincs megadva
- Villany:nincs megadva
- Víz:nincs megadva
- Gáz:nincs megadva
- Csatorna:nincs megadva
- Kapcsolatfelvétel

Rácz Ildikó Éva
+36-(70)-393-4956
Mondd meg a hirdetőnek, hogy a megveszLAK-on találtad a hirdetést.
Referencia szám: M306434
Ingatlan hirdetés leírása
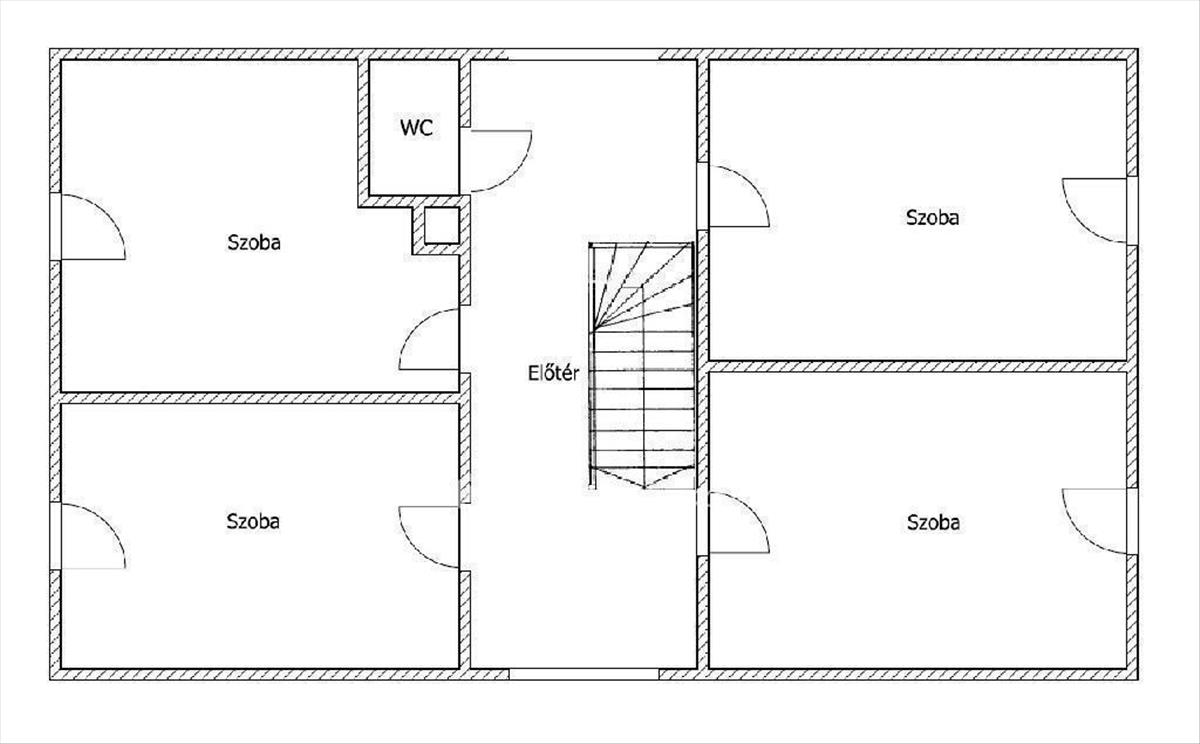
Eladó Ház, Szigetszentmárton
Eladó közvetlen Duna-parti ház Szigetszentmártonban. Ritka lehetőség vízparti otthonra!
Álmodott már arról, hogy reggelente a Dunára néző teraszon kávézik, miközben a napfelkeltében gyönyörködik? Most valóra válthatja!
Szigetszentmárton csendes, idilli részén, eladó egy kiváló állapotú, kétszintes, 5 szobás családi ház / nyaraló, közvetlen vízparti elhelyezkedéssel és saját stéggel!
A ház jellemzői: 120 m2 hasznos alapterület, két szinten. Földszint (60 m2): tágas nappali, étkező, amerikai konyha, fürdőszoba épített zuhanyzóval, külön wc, egyedi tölgyfa lépcső. emelet (60 m2): 4 hálószoba, wc, előtér. 60 m2-es panorámás terasz a Dunára. Saját stég, horgászat, csónakázás, pihenés közvetlenül a kert végéből. Kényelmi extrák: Fedett kocsibeálló 2 autónak, plusz 2 térkövezett parkoló a ház mellett, 20 m2-es tároló / fészer. Gondozott kert automata locsolórendszerrel. Elektromos kapu, kiépített riasztórendszer. Internet, kábel tv, heti hulladékszállítás. Műszaki állapot: a ház 9 éve teljes körű felújításon esett át (új elektromos rendszer, vízvezetékek, fűtés). Minőségi cseréptető, kelet-nyugati tájolás. 3 Rétegű, fa nyílászárók szúnyoghálóval. Klíma a nappaliban és a déli fekvésű hálókban (összesen 3 db hűtő-fűtő klíma). Szabványos kémény kiépítve. Ikea konyhabútor, beépített mosogatógép, mosógép, elektromos főzőlap és sütő. Azonnal költözhető állapotban, nincs szükség felújításra vagy várakozásra! Ideális választás mindazoknak, akik egy nyugodt, természetközeli, vízparti életformára vágynak, legyen szó állandó otthonról vagy hétvégi nyaralóról. Ne hagyja ki ezt az egyedülálló lehetőséget, hívjon most és tekintse meg ezt a páratlan ingatlant személyesen!
We can recommend the assistance of a reliable (English speaking) lawyer, if so requested and can also offer help at arranging the administrative matters related to the acquisition. If you wish to send an English language notification of your interest, please send a message thereof indicating your phone number (and/or e-mail address) so we can contact you without language difficulties.
Referencia szám: m306434 Hitel.hu - Hasonlítsa össze a bankok lakáshitel ajánlatait


