Eladó felújítandó ház - Lánycsók
- INGYENES HIRDETÉS FELADÁS
Ingatlan adatai
- Eladó vagy kiadó:Eladó
- Település:Lánycsók
- Kategória:Ház
- Alkategória:Családi ház
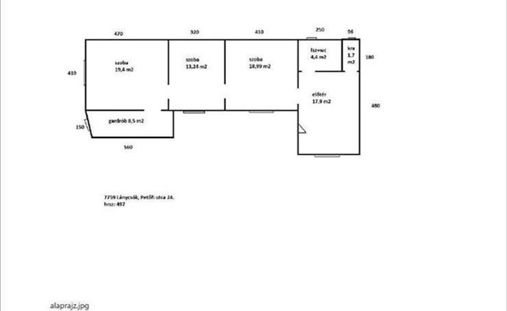
- Alapterület:84 m2
- Telekterület:2522 m2
- Csere is:Nem
- Hirdető:Cég
- Élő videón megtekinthető:Nem
- Építés éve:1950
- Szobaszám:3
- Állapot:Felújítandó
- Hány szintes az ingatlan:Földszintes
- Tetőtér:nincs megadva
- Komfortosság:nincs megadva
- Pince:nincs megadva
- Parkolási lehetőség:Teremgarázsban
- Fűtés:Egyéb
- Bútorozottság:nincs megadva
- Fényviszony:Közepes
- Tájolás:nincs megadva
- Kilátás:nincs megadva
- Internet:nincs megadva
- Klíma:nincs megadva
- Akadálymentesített:nincs megadva
- Energiatanúsítvány:nincs megadva
- Villany:Telken belül
- Víz:Telken belül
- Gáz:Telken belül
- Csatorna:nincs megadva
- Kapcsolatfelvétel

Vincze László György
+36-(20)-938-4141
Mondd meg a hirdetőnek, hogy a megveszLAK-on találtad a hirdetést.
Referencia szám: M260056
Ingatlan hirdetés leírása
Eladó Ház, Lánycsók, Eladó felújítandó ház - Lánycsók
m260056 Lánycsókon a Petőfi utcában 3 szobás ház eladó!
84 Négyzetméteres földszintes épület, vegyes falazattal. Jelen állapotában vízóra, és villanyóra van, a szennyvízcsatornába is be van kötve. a gázcsonk az udvarban van. Nincs kazán, nincsenek radiátorok, és a villanybojlert is leszerelték. Teljes felújítást igényel, amivel a konyhát is ujjá kell építeni. Az udvarban lévő garázs szerelőaknával van ellátva. 2522 Négyzetméteres enyhe lejtésű telek tartozik hozzá.
További információkért hívjon, nézze meg, tegyen egy ajánlatot!
Az OTP ingatlanpont teljes körű ügyintézéssel áll az eladók és a vevők rendelkezésére! a megvásárolni kívánt ingatlan finanszírozásához a kedvezményes hitelkonstrukciókat helyben ingyenesen intézzük. Az adásvételi szerződés megkötéséhez igény szerint megbízható ügyvédi közreműködést, az energetikai tanúsítvány elkészítéséhez energetikust biztosítunk, segítséget nyújtunk az adásvételhez kapcsolódó ügyintézésben az ajánlattételtől a birtokba lépésig. Várom hívását a hét minden napján, megtekintést rugalmasan egyeztetek. Referenciaszám: m260056
9900000 Ft
Referencia szám: m260056 FIX 3% lakáshitelre megvehető


