Eladó felújítandó ház - Miskolc
- INGYENES HIRDETÉS FELADÁS
Ingatlan adatai
- Eladó vagy kiadó:Eladó
- Település:Miskolc
- Kategória:Ház
- Alkategória:Családi ház
- Alapterület:125 m2
- Telekterület:414 m2
- Csere is:Nem
- Hirdető:Cég
- Élő videón megtekinthető:Nem
- Építés éve:2010
- Szobaszám:5
- Állapot:Felújítandó
- Hány szintes az ingatlan:2 szintes
- Tetőtér:nincs megadva
- Komfortosság:nincs megadva
- Pince:nincs megadva
- Parkolási lehetőség:Udvaron
- Fűtés:Egyéb
- Bútorozottság:nincs megadva
- Fényviszony:Napfényes
- Tájolás:nincs megadva
- Kilátás:nincs megadva
- Internet:nincs megadva
- Klíma:nincs megadva
- Akadálymentesített:nincs megadva
- Energiatanúsítvány:nincs megadva
- Villany:Telken belül
- Víz:Telken belül
- Gáz:Telken belül
- Csatorna:nincs megadva
- Kapcsolatfelvétel

Kovács Attila
+36-(70)-267-3288
Mondd meg a hirdetőnek, hogy a megveszLAK-on találtad a hirdetést.
Referencia szám: M299191
Hitel ajánlatok
Ingatlan hirdetés leírása
Felújítandó 5 szobás ház - Miskolc, Diósgyőr
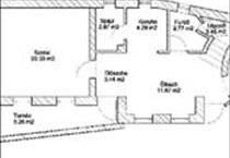
Eladó Miskolcon, Diósgyőr családi házas övezetében egy 125 nm-es, 2 szintes, tégla építésű családi ház 414 nm-es telken, a Diósgyőri vár közelében. Az ingatlan 2010-ben épült 2 ütemben, melyből a felső szint 80%-os készültséggel rendelkezik. Az épület terveit Miskolc város főépítésze, Rostás László készítette, mely magán viseli az erdélyi kultúra stílusjegyeit, szakrális jellemzőket, a hagyományos diósgyőri építészeti stílus tégla architektúrás kialakítását, a stabilitást és a részletekre való odafigyelést. Falazata vastag, hőszigetelt, nyílászárói fa szerkezetűek, szintén hőszigetelt kivitelben. Tetőzete cserép héjazatú. Az alsó szint felújítandó állapotú, ahol egy nagyszoba, nappali, konyha, fürdőszoba + wc, valamint a hátsó részben egy befejezendő nappali található. Az emeleten a készültségnek megfelelő nappali, szobák, fürdőszoba került kialakításra. a ház melegét jelenleg kályha biztosítja, de előkészítésre került a központi fűtés is, a hidegburkolatok alatt padlófűtéssel. a ház mögött szigetelt, könnyűszerkezetes melléképület található. Udvara megfelelő méretű, kerítése még nem kapta meg teljesen a ház stílusát. Víz, villany, csatorna bevezetve, gázcsonk a telken belül van. Amennyiben szeretne egy stílusos, igazán egyedi épületet, melyet saját igényére formálhat és szívesen megtekintené személyesen, kérem hívjon bizalommal! Irodai azonosító: m299191 FIX 3% lakáshitelre megvehető

