Eladó újszerű állapotú ház Nagykovácsi
| Kedvencbe | Megosztás | Árfigyelő |
| Kedvezményes lakáshitel ajánlatok | ||
| 210 000 000 HUF | ||
Ingatlan adatai
- Eladó vagy kiadó:Eladó
- Település:Nagykovácsi
- Kategória:Ház
- Alkategória:Családi ház
- Alapterület:285 m2
- Telekterület:853 m2
- Csere is:Nem
- Hirdető:Cég
- Élő videón megtekinthető:Nem
- Építés éve:2003
- Szobaszám:7
- Állapot:Újszerű, kitűnő
- Hány szintes az ingatlan:nincs megadva
- Tetőtér:nincs megadva
- Komfortosság:nincs megadva
- Parkolási lehetőség:Garázsban
- Fűtés:Egyéb
- Bútorozottság:nincs megadva
- Fényviszony:nincs megadva
- Tájolás:nincs megadva
- Kilátás:Panorámás
- Internet:nincs megadva
- Akadálymentesített:nincs megadva
- Energiatanúsítvány:nincs megadva
- Villany:Van
- Víz:Van
- Gáz:Van
- Csatorna:Van
- Üzenetküldés
- Hívás


Hitel ajánlat
Ingatlan hirdetés leírása
ELADÓ CSALÁDI HÁZ NAGYKOVÁCSI ZSÍROSHEGY PANORÁMA
Eladó egy kényelmes, tágas és világos modern családi otthon NAGYKOVÁCSIBANNagykovácsi Zsíroshegyen kínálunk eladásra egy 199 m2 lakótérrel rendelkező 7 szobás, átgondoltan tervezett és kivitelezett családi házat. Elhelyezkedésének és déli fekvésének köszönhetően reggeltől estig körbesüti a nap,
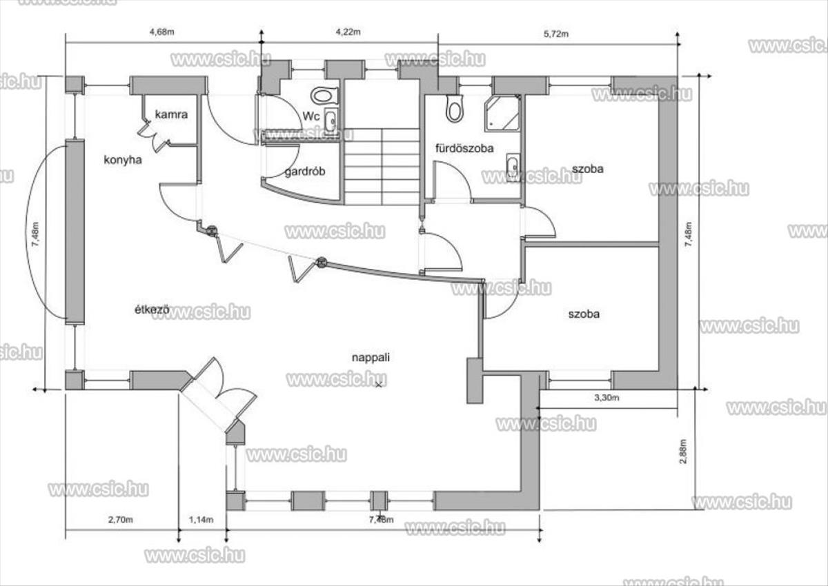
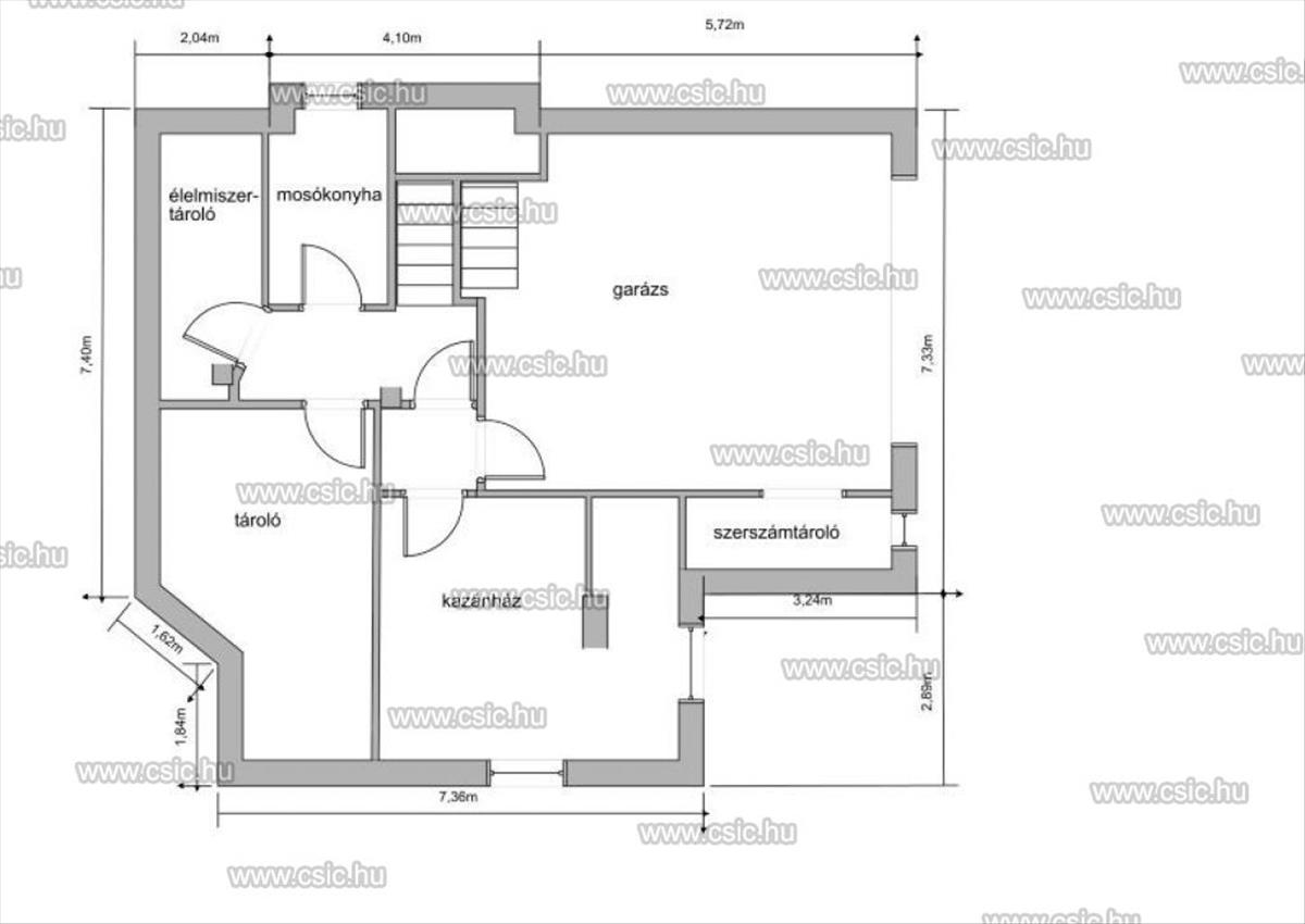
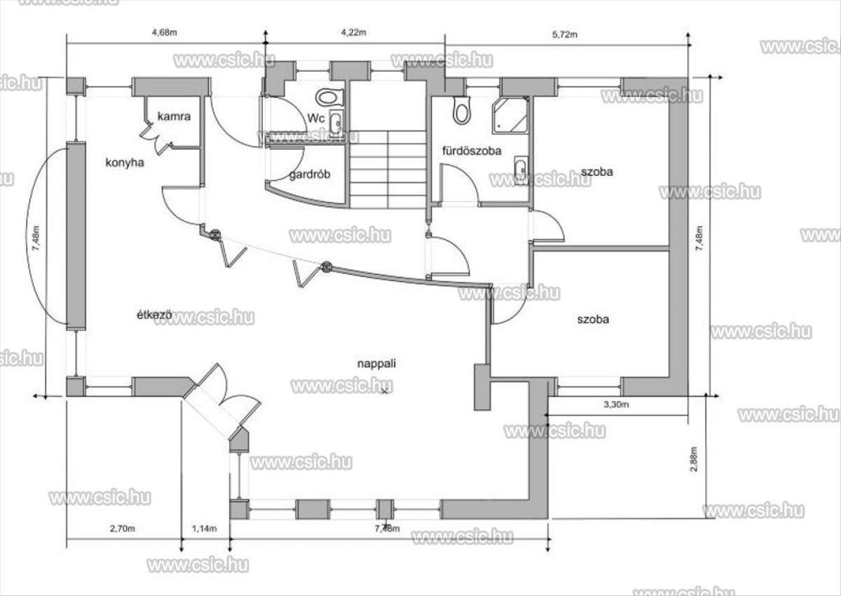
A két utcára nyíló, 853 m2-es sík telekre épült ház 3 szintes. a lakótér 2 szinten helyezkedik el. a földszinten az előtértől és a szobáktól íves fallal elválasztott világos és tágas nappali-étkező-konyha, egy kamra, egy gardrób, valamint 2 szoba és egy fürdőszoba található. a következő szinten egy saját fürdőszobával rendelkező szülői háló, továbbá 3 kényelmes szoba és egy nagy méretű, káddal és zuhannyal is rendelkező fürdőszoba, valamint egy külön wc kapott helyet. a 87 m2-es pinceszinten a kétállásos garázs mellett szennyesledobóval kialakított mosókonyha, tárolók és műhely találhatók.
Az eladó nagykovácsi családi ház folyamatosan karbantartott, a fürdőszobák és a hidegburkolatok 2022-ben kerültek felújításra. a ház fűtését korszerű gázkazán biztosítja minden helyiségben padlófűtéssel. a nappaliban egyedi kandalló kapott helyet, amely hangulatos és meleg kuckót varázsol olvasáshoz, pihenéshez, társasozáshoz, étkezéshez a ház központi helyiségébe. 2023-Ban egy 6 kW-os napelem rendszer került kiépítésre, amely megfelelő tartalékkal rendelkezik egy hőszivattyú vagy elektromos autótöltő kiépítéséhez.
A kert rendezett, az előkert automata öntözőrendszerrel felszerelt, melynek vízellátását egy föld alatti 25m3-es esővíztartályból szivattyú biztosítja.
Az eladó modern és tágas Nagykovácsi családi ház főbb jellemzői:
• Kényelem 3 szinten
• Hasznos alapterület: 285 m2
• Napfényes, világos terek
• Kertkapcsolatos, teraszos nappali
• Egyedi olasz konyhabútor gépekkel
• Nappali + 6 szoba
• Extra tárolók: kamra, gardrób, mosókonyha, élelmiszertároló, padlástér, kerti tároló
• 3 felújított fürdőszoba szennyesledobóval
• 2 állásos garázs
• Panoráma a hegyekre
Műszaki jellemzők:
• 44 cm Porotherm téglafalazat, hőszigetelő vakolat, továbbá 5 cm dryvit hőszigetelés az északi homlokzaton
• Viessmann kondenzációs gázkazán, padlófűtés, a fürdőkben törölközőszárítós radiátorok
• 120 l-es hőcserélős bojler
• Fatüzelésű kandalló
• 6 KW-os napelemrendszer
• Korszerű műanyag nyílászárók - a nappaliban és a szülői hálóban elektromos redőnnyel, szúnyoghálóval
• KNX/Instabus okosotthon rendszer
• Riasztó
• Kiépített it hálózat
• Garázs 2 gépkocsinak + térkövezett gépkocsibeálló
• Automata garázskapu
• Automata öntözőrendszer, esővízgyűjtő tartály
Ha egy remek adottságokkal rendelkező igényes, barátságos és biztonságos otthont keres, az eladó Nagykovácsi családi ház tökéletes választás lesz.
Személyes megtekintésért hívjon a hét bármely napján! Hitelügyintézésben is tudunk segíteni, keressen bizalommal! Hitel.hu - Hasonlítsa össze a bankok lakáshitel ajánlatait

