Eladó jó állapotú ház - Onga
- INGYENES HIRDETÉS FELADÁS
Ingatlan adatai
- Eladó vagy kiadó:Eladó
- Település:Onga
- Kategória:Ház
- Alkategória:Családi ház
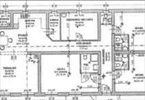
- Alapterület:160 m2
- Telekterület:1785 m2
- Csere is:Nem
- Hirdető:Cég
- Élő videón megtekinthető:Nem
- Építés éve:2014
- Szobaszám:4
- Állapot:Jó állapotú
- Hány szintes az ingatlan:Földszintes
- Tetőtér:nincs megadva
- Komfortosság:nincs megadva
- Pince:nincs megadva
- Parkolási lehetőség:Udvaron
- Fűtés:Gáz (cirko)
- Bútorozottság:nincs megadva
- Fényviszony:Napfényes
- Tájolás:nincs megadva
- Kilátás:nincs megadva
- Internet:nincs megadva
- Klíma:nincs megadva
- Akadálymentesített:nincs megadva
- Energiatanúsítvány:nincs megadva
- Villany:Telken belül
- Víz:Telken belül
- Gáz:Telken belül
- Csatorna:nincs megadva
- Kapcsolatfelvétel

Oroszné Ferencsák Mária
+36-(30)-709-1435
Mondd meg a hirdetőnek, hogy a megveszLAK-on találtad a hirdetést.
Referencia szám: M295112
Hitel ajánlatok
Ingatlan hirdetés leírása
Eladó Ház, Onga, Eladó jó állapotú ház - Onga
Eladó Onga nagyon jó, frekventált részén egy 160 nm -es, 2014-ben 38-as téglából épült, amerikai konyhás nappali + 3 szobás családi ház 1700 nm -es telken. Az ingatlan élettere egy szinten, nagyon jó elosztásban lett kialakítva. 3 Hatalmas háló, teljes ablakfelületes, napfényes, nagyterű, részben szeparált amerikai konyhás napppali + étkező kerti terasz kapcsolattal, spájz, külön vendég wc, szoba méretű mosó gazdasági helyiség. Minden hálószobához saját fürdőszoba tartozik WC-vel. Az épület fal-és födémszigetelt, fűtése mind modern két éves kondenzációs kazánról, mind professzionális perlet és biomassza fűtésű kazánról, mind pedig alternatívaként a minden helyiségben beépítésre került Split klímákról működik. a ház méretéhez mérten rezsije kiváló.
A hatalmas telek felső része leválasztott, ez nagyrészben térburkolt és parkosított. Itt található egy kétbeállásos garázs és a nappali/terasz kapcsolat folytatásában egy épített medence profi gépészettel.
A telek másik része nagyságából adódóan sokrétű hasznosítást tesz lehetővé. ( Gazdálkodás, ranch, stb. )
Onga dinamikusan fejlődő kisváros Miskolctól 10 km-re. Ideális otthon nagycsaládosoknak is! Hívjon bizalommal és nézzük meg együtt! FIX 3% lakáshitelre megvehető
Tetszett ez az eladó Ongai jó állapotú 4 szobás családi ház? Hívd fel a hirdetőt most, és tudj meg mindent erről az eladó családi házról! Ha gondolod nézelődj tovább az eladó ház Onga oldal hirdetései között. Ennek az eladó háznak az ára 92900000 Ft és mivel az alapterülete 160 négyzetméter, ezért az átlagos négyzetméterára 580625 HUF/m2.
Az eladó házak menüpontban további hirdetések között is böngészhetsz. Ha van kedved, akkor böngészhetsz a Oroszné Ferencsák Mária összes hirdetése között, vagy akár a/az OTPip Miskolc Szemere Bertalan utca 20 - OTP Ingatlanpont Iroda összes hirdetése között is.

