Eladó átlagos állapotú ház - Péteri
- INGYENES HIRDETÉS FELADÁS
Ingatlan adatai
- Eladó vagy kiadó:Eladó
- Település:Péteri
- Kategória:Ház
- Alkategória:Családi ház
- Alapterület:160 m2
- Telekterület:818 m2
- Csere is:Nem
- Hirdető:Cég
- Élő videón megtekinthető:Nem
- Építés éve:1988
- Szobaszám:3
- Állapot:Átlagos állapotú
- Hány szintes az ingatlan:4 szintes
- Tetőtér:nincs megadva
- Komfortosság:nincs megadva
- Pince:nincs megadva
- Parkolási lehetőség:Garázsban
- Fűtés:nincs megadva
- Bútorozottság:nincs megadva
- Fényviszony:nincs megadva
- Tájolás:nincs megadva
- Kilátás:nincs megadva
- Internet:nincs megadva
- Klíma:nincs megadva
- Akadálymentesített:nincs megadva
- Energiatanúsítvány:nincs megadva
- Villany:Van
- Víz:Van
- Gáz:Van
- Csatorna:Van
- Kapcsolatfelvétel

Kutas József
+36-(20)-960-9602
Mondd meg a hirdetőnek, hogy a megveszLAK-on találtad a hirdetést.
Hitel ajánlatok
Ingatlan hirdetés leírása
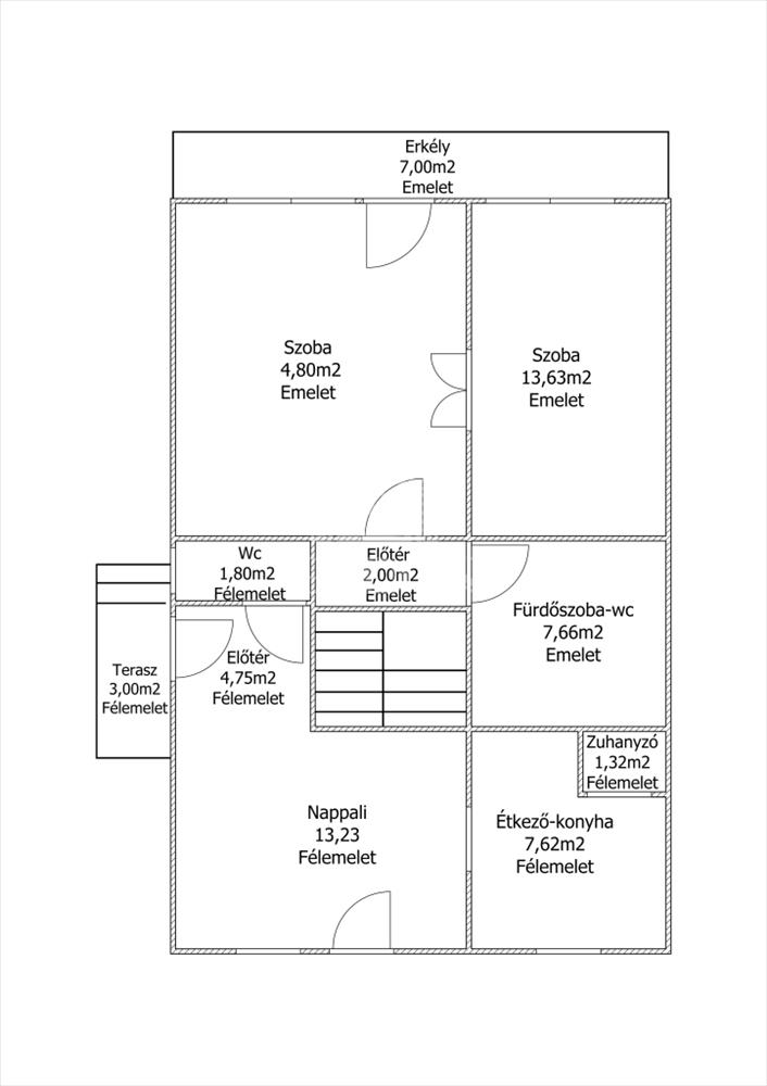
Kétgenerációs lehetőségekkel bíró, eltolt szintes családi ház ...
Kétgenerációs lehetőségekkel bíró, eltolt szintes családi ház Péteri kertvárosi övezetében – közel Pesthez, mégis csendben!
Eladóvá vált egy 160 m²-es, eltolt szintekkel épült közepes állapotú családi ház Péteri egyik legkedveltebb, kiemelt belterületi utcájában, a hangulatos Petőfi Sándor utcában. a házhoz egy tágas, 818 m²-es kert tartozik, sok-sok további alakítási és fejlesztési lehetőséggel – tökéletes azoknak, akik szeretnek saját ízlésre formálni egy ingatlant.
A ház jelenlegi kialakítása – 3 szoba, erkély (9 m²), terasz (3 m²) – ideális alap egy kétgenerációs otthon megvalósításához is. a tetőtér újabb két eltolt szinten beépíthető, ideális alap egy kétgenerációs álomotthon megvalósításához is! a fűtésről vegyes tüzelésű kazán gondoskodik, az udvar pedig igazi kertvárosi nyugalmat áraszt.
Közlekedés szempontjából is szuper választás: Péteri az agglomerációban található, közel Budapesthez, remek elérhetőséggel. a vasút és a busz is gyors és kényelmes kapcsolatot biztosít a főváros felé – így azoknak is ideális, akik naponta ingáznak.
A házhoz tartozik továbbá saját garázs, a környék pedig kifejezetten barátságos, csendes és biztonságos.
Fiatal pároknak, nagycsaládosoknak vagy kétgenerációs otthont keresőknek egyaránt remek lehetőség! FIX 3% lakáshitelre megvehető

