Eladó új építésű ház - Siófok
- INGYENES HIRDETÉS FELADÁS
Ingatlan adatai
- Eladó vagy kiadó:Eladó
- Település:Siófok
- Kategória:Ház
- Alkategória:Családi ház
- Alapterület:69 m2
- Telekterület:479 m2
- Csere is:Nem
- Hirdető:Cég
- Élő videón megtekinthető:Nem
- Építés éve:2026
- Szobaszám:4
- Állapot:Új építésű
- Hány szintes az ingatlan:nincs megadva
- Tetőtér:nincs megadva
- Komfortosság:nincs megadva
- Pince:Nincs
- Parkolási lehetőség:nincs megadva
- Fűtés:Egyedi
- Bútorozottság:nincs megadva
- Fényviszony:nincs megadva
- Tájolás:nincs megadva
- Kilátás:nincs megadva
- Internet:nincs megadva
- Klíma:nincs megadva
- Akadálymentesített:nincs megadva
- Energiatanúsítvány:nincs megadva
- Villany:nincs megadva
- Víz:nincs megadva
- Gáz:nincs megadva
- Csatorna:nincs megadva
- Kapcsolatfelvétel

Tódor Dominik
+36-(70)-418-2569
Mondd meg a hirdetőnek, hogy a megveszLAK-on találtad a hirdetést.
Ingatlan hirdetés leírása
Eladó új építésű ház Siófok-Kilitin
A lido home ingatlan iroda eladásra kínálja ezt az új építésű családi házat.
Az ingatlan elhelyezkedése kiváló, Siófok-Kiliti kert városias részén található.
Jellemzői:
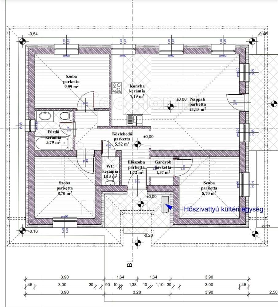
-1 szintes, Nettó 69 m2-es épület 479 m2-es telekrésszel.
-Megtalálható benne egy nappali étkezővel, konyha, 3 hálószoba, fürdő wc-vel, külön wc, gardrób és előtér. a nappaliból egy nagy teraszra léphetünk ki.
-Hőszivattyú állítja elő a meleget a padlófűtéshez illetve mennyezeti hűtés lesz beépítve.
-Nyílászárók szigetelt műanyagok amik redőnyökkel vannak ellátva.
-Külső 15cm hungarocell szigetelés
-Az ingatlan megfelel az új, szigorú energetikai szabályoknak, bb kategóriás.
-H tarifás villanyóra telepítve.
-A feltűntetett ár kulcsrakész állapotban értendő.
-Ezen felül napelem rendszert is van lehetőség kialakítani felár ellenében.
-A kivitelezés 2026 februárjában kezdődik.
-Az ingatlant előre egyeztetett időpontban megtekinthető.
Amennyiben felkeltette érdeklődését ez a nagyon jó adottságokkal rendelkező lakóház, keressen a megadott elérhetőségeimen bátran!
Vásárolna de nincs rá keret? Kollégám díjmentes, bank semleges hitel ügyintézéssel áll a rendelkezésére.
LIDO home - Ingatlanok egy életen át! FIX 3% lakáshitelre megvehető


