Eladó átlagos állapotú ház - Sümeg
- INGYENES HIRDETÉS FELADÁS
Ingatlan adatai
- Eladó vagy kiadó:Eladó
- Település:Sümeg
- Kategória:Ház
- Alkategória:Családi ház
- Alapterület:124 m2
- Telekterület:365 m2
- Csere is:Nem
- Hirdető:Cég
- Élő videón megtekinthető:Nem
- Építés éve:1960
- Szobaszám:4
- Állapot:Átlagos állapotú
- Hány szintes az ingatlan:Földszintes
- Tetőtér:nincs megadva
- Komfortosság:nincs megadva
- Pince:nincs megadva
- Parkolási lehetőség:Garázsban
- Fűtés:Cserépkályha
- Bútorozottság:nincs megadva
- Fényviszony:nincs megadva
- Tájolás:nincs megadva
- Kilátás:nincs megadva
- Internet:nincs megadva
- Klíma:nincs megadva
- Akadálymentesített:nincs megadva
- Energiatanúsítvány:nincs megadva
- Villany:Telken belül
- Víz:Telken belül
- Gáz:Utcában
- Csatorna:Telken belül
- Kapcsolatfelvétel

Köteles Judit
+36-30-398-4004
Mondd meg a hirdetőnek, hogy a megveszLAK-on találtad a hirdetést.
Hitel ajánlatok
Ingatlan hirdetés leírása
Sümegen, Veszprém vármegyében, a Balaton közelében, frekventál...
Sümegen, Veszprém vármegyében, a Balaton közelében, frekventált, mégis csendes helyen eladó egy két lakrészből álló, 124 m2 hasznos alapterületű családi ház.
Az 1960-70-es években épült ingatlan kő és tégla falazatú, pala tetőszerkezete jó állapotú, a nyílászárók részben fa, részben műanyagok.
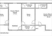
A ház elrendezése két önálló lakóteret foglal magában, így együtt élő családtagoknak tökéletes választás, de akár egyben is használható, ha valaki tágasabb élettérre vágyik. a kisebb egység kiváló lehetőség albérletként vagy vendégházként is.
A nagyobb részben nappali, étkezős konyha, két hálószoba, kamra, fürdőszoba és előtér található. a később, mintegy két évtizede hozzáépített kisebb lakóegység egy légterű, saját konyhával, fürdővel és szoba-nappalival rendelkezik, így teljesen önálló használatot tesz lehetővé. a fűtésről cserépkályhák gondoskodnak, a meleg vizet villanybojler biztosítja. a közművek elérhetők, a gáz pedig az utcáról bevezethető.
A zárt, virágos udvaron garázs és egy kisebb tároló is helyet kapott, így a mindennapi kényelmet minden téren biztosítja.
A 365 m2-es telek ideális méretű, könnyen karbantartható, ugyanakkor elegendő teret kínál egy hangulatos terasz, grillező, fűszerkert vagy akár egy kis wellness-sarok kialakításához is.
Néhány felújítással és korszerűsítéssel az ingatlan modern, kényelmes otthonná varázsolható.
Az elhelyezkedése rendkívül kedvező: 5-10 perc sétával elérhető az élelmiszerbolt, iskola, óvoda, orvosi rendelő, buszmegálló és a vasútállomás is.
Sümeg egy festői kisváros Magyarország szívében, híres történelmi nevezetességeiről, gyönyörű természeti környezetéről és barátságos közösségéről. Itt a vidéki nyugalom és a városi kényelem tökéletes harmóniában találkozik.
Fedezze fel Sümeg varázslatos világát, és találja meg új otthonát ezen a sok lehetőséget rejtő ingatlanon keresztül!
Egyedi kamatozású, ingatlanvásárlási, - és felújítási hitelek, valamint CSOK és babaváró-hitel ügyintézését is elvégezzük Ön helyett, az OTP Bank hátterével.
Amennyiben a hirdetés felkeltette érdeklődését, kérdése van, vagy szeretné személyesen megtekinteni, kérem, hívjon bizalommal, akár hétvégén is! FIX 3% lakáshitelre megvehető

