Eladó új építésű ház - Szeged
- INGYENES HIRDETÉS FELADÁS
Ingatlan adatai
- Feladva:6 hónapnál régebbi hirdetés
- Eladó vagy kiadó:Eladó
- Település:Szeged
- Kategória:Ház
- Alkategória:Családi ház
- Alapterület:139 m2
- Telekterület:184 m2
- Csere is:Nem
- Hirdető:Cég
- Élő videón megtekinthető:Nem
- Építés éve:2021
- Szobaszám:1 + 5 fél
- Állapot:Új építésű
- Hány szintes az ingatlan:Földszintes
- Tetőtér:nincs megadva
- Komfortosság:nincs megadva
- Pince:nincs megadva
- Parkolási lehetőség:nincs megadva
- Fűtés:Hőszivattyús
- Bútorozottság:nincs megadva
- Fényviszony:Napfényes
- Tájolás:DNY
- Kilátás:nincs megadva
- Internet:nincs megadva
- Klíma:nincs megadva
- Akadálymentesített:nincs megadva
- Energiatanúsítvány:nincs megadva
- Villany:nincs megadva
- Víz:nincs megadva
- Gáz:nincs megadva
- Csatorna:nincs megadva
- Kapcsolatfelvétel

Rácz Mariann
+36-(30)-275-3713
Mondd meg a hirdetőnek, hogy a megveszLAK-on találtad a hirdetést.
Referencia szám: HZ022233
Hitel ajánlatok
Ingatlan hirdetés leírása
Eladó ház, Szeged, Eladó új építésű ház - Szeged
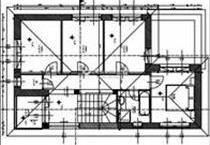
Azonnal költözhető kulcsrakész ingatlanok a holt maros bridge közelében! Legyen ön az első lakója! Csok, áfa visszaigénylés, illetékmentesség igénybe VEHETŐ! Újszeged családi házas övezetében már csak 2 db utcai, önálló kertkapcsolatos családi ház (egymástól elkülönülve) várja új Tulajdonosát! Az ingatlanok jellemzői: belső kétszintes, saját kertkapcsolatos, kulcsrakész állapotú. Az előkertes ház 184 m2-es telken épül, ahol amerikai konyha + nappali, 5 szoba, 2 fürdő, 2 toalett, kamra, loggia és terasz kerül kialakításra 96 m2-es saját kertkapcsolattal. Térfelosztása az alábbi:Földszint: amerikai konyha + nappali, szoba - mindkét helyiségből a terasz elérhető, kamra, fürdő és a szeparált mellékhelyiség (lakótér: 70, 71 m2 + terasz: 11, 71 m2). emelet: 4 külön bejáratú szoba, , fürdő, szeparált mellékhelyiség és loggia (lakótér: 60, 86 m2 + loggia: 4, 43 m2). Össz. Terület: 139, 655 m2/ buttó: 147, 74 m2 ( 1/2 - 1/2 terasz + loggia) + 95, 997 m2-es saját kertAz ingatlanhoz belső udvari dupla garázs tartozik - szekcionált garázskapu -. Kulcsrakész állapot:- minőségi külső-, belső nyílászárók (kilincs) motoros redőnnyel- padlófűtés, mennyezet hűtés- egyedi hőszivattyús fűtési-hűtési rendszer- fürdőszoba szaniterek- prémium minőségű konyhabútor- belső festés, tapétázás- vinyl burkolat- csempe burkolat 60 x 60 cm méretig- burkolás segédanyag- villanyszerelés: kapcsolók, konnektorok, világító testek felszerelése- víz-, csatornahálózat komplettre szerelve- kiépített riasztórendszer, kaputelefon- elektromos kapuval felszerelt duplagarázs, garázsbeálló- elektromos autó töltőoszlopának a kialakítása, felszerelése biztosított- kiépített napelemes rendszer- külső vakolás, színezés- út kialakítása, földfeltöltés- kapubeálló, wpc kerítés- telkek közötti elválasztó kerítés kiépítése munkadíj - anyagköltséget nem tartalmazza- térkőA minőségi anyagokból, igényesen kivitelezett ingatlan kényelmes és biztonságos otthon kialakítására ad lehetőséget. Az ingatlan korszerű technológiával, műszaki tartalommal épült. CSOK, áfa visszaigénylés, illetékmentesség igénybe VEHETŐ! Az ingatlan kertvárosias környezetben található, a Belváros néhány perc alatt autóval vagy autóbusszal is elérhető. a Holt-Maros ideális hely futóknak, de aki csak sétálni szeretne virágzó bokrokban, fákban gyönyörködhet. Remek kikapcsolódási lehetőségeket nyújt a közeli felújított Erzsébet-liget ahol új szabadidős lehetőség érhetőek el a városlakók számára. Szabadtéri edzőtermek, sportpályák, korszerű futópálya várja a sport kedvelőit. Ha felkeltette érdeklődését bővebb információért hívjon vagy keressen személyesen irodánkban! Forduljon Hozzám, keressen a hét bármely napján bizalommal! Hitel.hu - Hasonlítsa össze a bankok lakáshitel ajánlatait
Tetszett ez az eladó Szegedi új építésű 1 egész és 5 fél szobás családi ház? Hívd fel a hirdetőt most, és tudj meg mindent erről az eladó családi házról! Ha gondolod nézelődj tovább az eladó ház Szeged oldal hirdetései között. Ennek az eladó háznak az ára 180000000 Ft és mivel az alapterülete 139 négyzetméter, ezért az átlagos négyzetméterára 1294964 HUF/m2.
Az eladó házak menüpontban további hirdetések között is böngészhetsz. Ha van kedved, akkor böngészhetsz a Rácz Mariann összes hirdetése között, vagy akár a/az Duna House Szeged, Brüsszeli körút összes hirdetése között is.

