Eladó jó állapotú ház - Vác
- INGYENES HIRDETÉS FELADÁS
Ingatlan adatai
- Eladó vagy kiadó:Eladó
- Település:Vác
- Kategória:Ház
- Alkategória:Családi ház
- Alapterület:91 m2
- Telekterület:82 m2
- Csere is:Nem
- Hirdető:Cég
- Élő videón megtekinthető:Nem
- Építés éve:2008
- Szobaszám:4
- Állapot:Jó állapotú
- Hány szintes az ingatlan:2 szintes
- Tetőtér:nincs megadva
- Komfortosság:nincs megadva
- Pince:Nincs
- Parkolási lehetőség:Utcán
- Fűtés:Elektromos
- Bútorozottság:Bútorozatlan
- Fényviszony:nincs megadva
- Tájolás:K
- Kilátás:nincs megadva
- Internet:Szélessávú (>10Mbps)
- Klíma:Van
- Akadálymentesített:nincs megadva
- Energiatanúsítvány:nincs megadva
- Villany:Van
- Víz:Van
- Gáz:Utcában
- Csatorna:Van
- Rezsi:15 000 Ft
- Kapcsolatfelvétel
Windberg Péter
+36-(70)-600-5594
Mondd meg a hirdetőnek, hogy a megveszLAK-on találtad a hirdetést.
Hitel ajánlatok
Ingatlan hirdetés leírása
Vácon, frekventált helyen családi ház eladó!
Vác egyik kedvelt városrészében, az Árpád út és a Vöröskereszt sor találkozásánál kínálunk megvételre egy stabilan megépített, kétszintes nettó 91 m²-es családi házat.
Miért Vácon vegyen családi házat? Mert Budapesttől mindössze 30 km -re de sokkal kedvetőbbek a négyzetméter árak. !
A 2008-ben épült ház modern szerkezeti megoldásokkal, gondosan megválasztott anyagokkal és praktikus elrendezéssel készült. a jelenlegi tulajdonos építette a házat, így ismer minden téglát, kábelt, csővezetéket.
Az ingatlan főbb jellemzői:
Porotherm 30-as tégla falazat és 5 cm hőszigetelés
Vasbeton födém, kerámia béléstestekkel
Klinkertéglás homlokzat – elegáns, időtálló megjelenés
Hőszigetelt műanyag nyílászárók alumínium redőnyökkel, szúnyoghálóval
Bramac betoncserép tetőfedés
4 db H -tarifás légkondicionáló fűtésre wifi-vel
Norvég elektromos fűtőpanelek kiegészítő fűtésként wifi-vel
Bélelt kémyény előkészítve gázfűtéshez
Kiváló természetes megvilágítás minden helyiségben
Belső elrendezés:
Földszint:
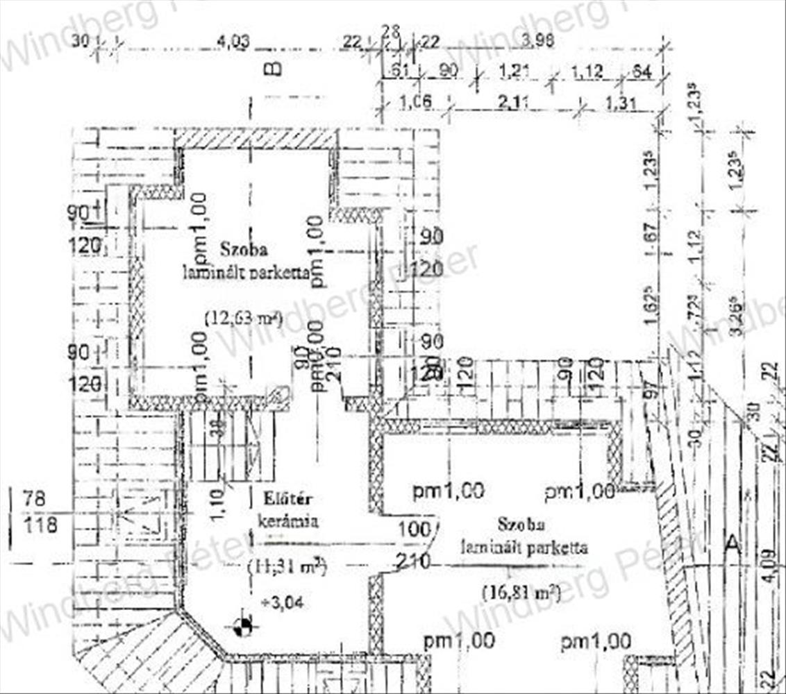
Tágas, világos előtér/étkező 18 m2 fogadja a belépőt, innen nyílik a nappali, 20 m2 valamint a konyha.
A földszinten helyet kapott továbbá egy fürdőszoba és egy külön WC.
A folyosóról kiléphetünk egy hangulatos, növényekkel beültetett minikertbe, ahol kellemes pihenőpadok várnak.
Az előtérből kényelmes lépcsőn juthatunk fel az emeletre.
Emelet:
A galériáról, amely 11 m2-es két napfényes hálószoba nyílik, mindkettőben négy-négy ablak biztosítja a természetes fényt és a jó szellőzést. Az egyik szoba 17 m2, az Árpád út felöli oldalon, a másik szoba 12 m2 a Vöröskereszt sorra néző oldalon található.
Az emelet teljes értékű belmagassága a megemelt parapetfalaknak köszönhetően jól kihasználható. Az emeleti galéria könnyedén beépíthető egy ötödik szobának.
Elhelyezkedés:
A ház frekventált helyen, mégis nyugodt részen található.
Számos új ház épült és most is épül a közvetlen környezetében.
A közelben elérhető minden, ami a mindennapokhoz szükséges:
Lidl, cba, Rossmann, dm – mindössze 700 méterre
Óvoda, iskola, középiskolák – gyalogosan 5 percre elérhetők
Vasútállomás – 15 perc séta
Duna-part és kerékpárút – néhány perc távolságra
Állatorvosi klinika 50 m-re.
Budapest az m2-es autópályán keresztül gyorsan megközelíthető, vonattal pedig mindössze 25 perc alatt elérhető.
Kinek ajánljuk?
Ez az ingatlan tökéletes választás mindazok számára, akik:
- jól megközelíthető otthont keresnek Vácon,
- nagycsaládosoknak,
- biztonságos, értékálló befektetést keresnek egy dinamikusan fejlődő városrészben.
Az ingatlan kiváló lehetőség Vácon, egy hely ahol az otthon kényelme és a város infrastruktúrája találkozik.
3%-Os hitel felvehető!
Hitel ügyintézésében segítek!
Keressen bizalommal! (Hét végén is hívhat)
Windberg Péter
T: 70/600-5594
In einem der beliebtesten Stadtteile von Vác, in Kisvác, an der Schnittstelle der Árpád-Straße und der Vöröskereszt-Gasse, bieten wir ein hochwertig gebautes, zweigeschossiges Einfamilienhaus mit 91 m² Wohnfläche zum Verkauf an. Die Immobilie eignet sich ideal sowohl zum Wohnen als auch für unternehmerische Zwecke.
Das im Jahr 2008 errichtete Haus überzeugt durch moderne Bauweise, hochwertige Materialien und eine durchdachte Raumaufteilung.
Ausstattung & technische Merkmale:
Porotherm-30 Ziegelmauerwerk mit 5 cm Wärmedämmung
Klinkerfassade – elegante, langlebige Erscheinung
Isolierverglaste Kunststofffenster mit Aluminiumrollläden und Insektenschutzgittern
Bramac Betondachziegel
Energiesparende Klimaanlagen mit H-Tarif, auch zum Heizen, WLAN-gesteuert
Norwegische elektrische Heizpaneele als Zusatzheizung, ebenfalls WLAN-gesteuert
Ausgekleideter Schornstein, vorbereitet für Gasheizung
Hervorragende natürliche Lichtverhältnisse in allen Räumen
Raumaufteilung:
Erdgeschoss:
Großzügiger, heller Eingangsbereich (18 m²) mit Zugang zum Wohnzimmer (20 m²) und zur Küche.
Weiter befinden sich hier ein Badezimmer sowie ein separates WC.
Vom Flur aus gelangt man in einen geschmackvoll angelegten Mini-Garten mit Sitzmöglichkeiten.
Über eine komfortable Treppe erreicht man das Obergeschoss.
Obergeschoss:
Von der 11 m² großen Galerie öffnen sich zwei helle Schlafzimmer.
Zimmer 1: 17 m², zur Árpád-Straße ausgerichtet
Zimmer 2: 12 m², mit Blick auf die Vöröskereszt-Gasse
Beide Räume verfügen über jeweils vier Fenster, was für optimale Belichtung und ein angenehmes Raumklima sorgt.
Dank der vollen Raumhöhe ist das Obergeschoss bestens nutzbar. Die Galerie kann problemlos in ein zusätzliches Zimmer umgebaut werden.
Lage & Infrastruktur:
Die Immobilie liegt in zentraler, dennoch ruhiger Umgebung.
In der unm ittelbaren Nachbarschaft entstehen zahlreiche neueFamilienhäuser
Infrastruktur in unm ittelbarer Nähe:
Lidl, cba, Rossmann, dm – ca. 700 M
Kindergarten, Grund- und weiterführende Schulen – ca. 5 Gehminuten
Bahnhof – ca. 15 Minuten zu Fuß
Donauufer & Radweg – wenige Minuten entfernt
Budapest ist über die m2 Autobahn in kurzer Fahrzeit erreichbar, mit dem Zug beträgt die Fahrtzeit nur ca. 25 Minuten.
Für wen ist diese Immobilie ideal?
Diese Immobilie eignet sich hervorragend für:
Eigennutzer, die ein verkehrsgünstiges Zuhause in Vác suchen
Unternehmer, die einen frequentierten Standort benötigen
Kapitalanleger, die eine wertstabile Investition in aufstrebender Lage suchen
Diese Immobilie ist eine seltene Gelegenheit in Vác.
Finanzierung:
✅ 3 % Förderdarlehen für die Immobilie möglich
✅ Kostenlose Unterstützung bei der vollständigen Kreditabwicklung
Kontakt:
Zögern Sie nicht, mich auch am Wochenende zu kontaktieren!
Péter Windberg
Tel. : +36 70 600 5594 FIX 3% lakáshitelre megvehető
Tetszett ez az eladó Váci jó állapotú 4 szobás családi ház? Hívd fel a hirdetőt most, és tudj meg mindent erről az eladó családi házról! Ha gondolod nézelődj tovább az eladó ház Vác oldal hirdetései között. Ennek az eladó háznak az ára 79000000 Ft és mivel az alapterülete 91 négyzetméter, ezért az átlagos négyzetméterára 868132 HUF/m2.
Az eladó házak menüpontban további hirdetések között is böngészhetsz. Ha van kedved, akkor böngészhetsz a Windberg Péter összes hirdetése között.

