Eladó új építésű ház - Vácrátót
- INGYENES HIRDETÉS FELADÁS
Ingatlan adatai
- Eladó vagy kiadó:Eladó
- Település:Vácrátót
- Kategória:Ház
- Alkategória:Családi ház
- Alapterület:81 m2
- Telekterület:344 m2
- Csere is:Nem
- Hirdető:Cég
- Élő videón megtekinthető:Nem
- Építés éve:2026
- Szobaszám:4
- Állapot:Új építésű
- Hány szintes az ingatlan:nincs megadva
- Tetőtér:nincs megadva
- Komfortosság:nincs megadva
- Pince:Nincs
- Parkolási lehetőség:nincs megadva
- Fűtés:nincs megadva
- Bútorozottság:Bútorozatlan
- Fényviszony:nincs megadva
- Tájolás:nincs megadva
- Kilátás:nincs megadva
- Internet:nincs megadva
- Klíma:nincs megadva
- Akadálymentesített:nincs megadva
- Energiatanúsítvány:nincs megadva
- Villany:Van
- Víz:Van
- Gáz:nincs megadva
- Csatorna:Van
- Kapcsolatfelvétel

Kovács Péter
+36-(70)-418-1960
Mondd meg a hirdetőnek, hogy a megveszLAK-on találtad a hirdetést.
Hitel ajánlatok
Ingatlan hirdetés leírása
4672: Vácrátóton, ÚJ ÉPÍTÉSŰ, CSALÁDI HÁZAK eladók!!!
Kedves Otthonkereső!
Vácrátóton, új építésű, családi házak eladók! ! !
Az aktuális állami támogatások valamint kedvezményes, kamattámogatott hitelek felvehetőek – akár a 3%-os otthon start hitel, CSOK plus, babaváró is igényelhető, az ügyintézésben díjmentesen segítünk!
Az építő munkájára jellemző a megbízhatóság és igényesség, leinformálható, referencia házai megtekinthetők.
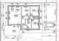
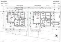
A lakások bruttó területe 81 nm , lakóterületük 70, 37 nm + 20, 24 nm terasz, amerikai-konyhás nappali + 3 szobával, 376, 67 nm valamint 344, 91 nm -es telekrésszel, zárt udvari beállóval.
A közelben az építő referenciamunkája megtekinthető, mely a fotón is látható.
Rövid műszaki tartalom:
A házak falai 30 cm-es téglából épülnek + 15 cm dryvit szigeteléssel.
A tető beton cserépfedést kap.
Az ablakok 3 rétegű, műanyag szerkezetűek, thermo üveggel ellátva, fehér színben kerülnek beépítésre.
A fűtés HŐSZIVATTYÚ-val kerül kialakításra, a hő leadás padlófűtéssel történik.
A klíma kiállás és riasztó előkészítés a vételár részét képezi.
Az ingatlan kulcsrakész állapotban kerül átadásra, konyhabútor nélkül.
Az ingatlan építés alatt áll, így az új tulajdonosnak lehetősége van a burkolatok, szaniterek és belső ajtók kiválasztására a műszaki tartalomban feltüntetett keretösszegig a vételár részét képezve.
Parkolás térkövezett beállón lehetséges.
HELYISÉGLISTA:
Előszoba 4, 77 nm , nappali 17, 16 nm , konyha 4, 9 nm , étkező 4, 5 nm , 3 szoba 8, 09 nm , 9, 57 nm , 9, 57 nm , fürdőszoba káddal 6, 02 nm , közlekedő 4, 45 nm , külön wc 1, 3 nm , terasz 20, 77 nm .
A képek látványtervek / vizuálisan optimalizált illusztrációk, a hangulat bemutatása céljából.
Ára: 74. 900. 000. - Ft
Azonosító: 4672 FIX 3% lakáshitelre megvehető
Tetszett ez az eladó Vácrátóti új építésű 4 szobás családi ház? Hívd fel a hirdetőt most, és tudj meg mindent erről az eladó családi házról! Ha gondolod nézelődj tovább az eladó ház Vácrátót oldal hirdetései között. Ennek az eladó háznak az ára 74900000 Ft és mivel az alapterülete 81 négyzetméter, ezért az átlagos négyzetméterára 924691 HUF/m2.
Az eladó házak menüpontban további hirdetések között is böngészhetsz. Ha van kedved, akkor böngészhetsz a Kovács Péter összes hirdetése között, vagy akár a/az H &K Ingatlaniroda összes hirdetése között is.

