Eladó új építésű ház - Vácrátót
- INGYENES HIRDETÉS FELADÁS
Ingatlan adatai
- Eladó vagy kiadó:Eladó
- Település:Vácrátót
- Kategória:Ház
- Alkategória:Családi ház
- Alapterület:140 m2
- Telekterület:890 m2
- Csere is:Nem
- Hirdető:Cég
- Élő videón megtekinthető:Nem
- Építés éve:2025
- Szobaszám:4 + 1 fél
- Állapot:Új építésű
- Hány szintes az ingatlan:nincs megadva
- Tetőtér:nincs megadva
- Komfortosság:Összkomfortos
- Pince:nincs megadva
- Parkolási lehetőség:Garázsban
- Fűtés:nincs megadva
- Bútorozottság:nincs megadva
- Fényviszony:nincs megadva
- Tájolás:nincs megadva
- Kilátás:nincs megadva
- Internet:nincs megadva
- Klíma:Van
- Akadálymentesített:nincs megadva
- Energiatanúsítvány:nincs megadva
- Villany:Van
- Víz:Van
- Gáz:Van
- Csatorna:Van
- Kapcsolatfelvétel

Bagóczky Attila
+36-(20)-236-0005
Mondd meg a hirdetőnek, hogy a megveszLAK-on találtad a hirdetést.
Hitel ajánlatok
Ingatlan hirdetés leírása
Vácrátóton, egyszintes, garázsos, új építésű családi ház
Vácrátóton új építésű, önálló családi ház eladó – ideális választás családoknak!
Vácrátót egyik csendes, zöldövezeti részén kínáljuk megvételre ezt a hamarosan költözhető, modern kialakítású önálló családi házat, amely tökéletes választás mindazoknak, akik nyugodt környezetben, mégis jó elérhetőséggel szeretnének élni.
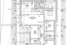
A 890 m²-es, tágas telken elhelyezkedő ingatlan nettó 140 m² lakótérrel rendelkezik, amelyhez egy 21 m²-es garázs és egy hatalmas terasz is kapcsolódik – ideális családi és baráti összejövetelekhez.
Főbb jellemzők:
* Amerikai konyhás nappali + étkező
* 4 külön nyíló, nagy méretű hálószoba
* Fürdőszoba + külön WC
* Gardrób és kamra
* Előszoba, közlekedő
* Nagyméretű, világos terek, körben ablakos kialakítás
Műszaki tartalom:
- Falak: Porotherm 30-as tégla + 15 cm-es Dryvit szigetelés.
- Födém: Masszív vasbeton födém 25 cm-es ásványgyapot szigeteléssel.
- Nyílászárók: 3 rétegű üvegezéssel ellátott, kiváló hő- és hangszigetelő ablakok.
- Árnyékolás: Minden ablakon redőny található.
- Energiahatékony hőszivattyús rendszer padlófűtéssel
- 3, 5 kW-os hűtő-fűtő klíma a nappaliban
- Minőségi burkolatok és belső ajtók
- Elektromos garázskapu
-Ektromos kert kapu a gépkocsibeállónál
- Igényes, modern kivitelezés
Az ingatlan jelenleg végső munkálatok alatt áll, rövid időn belül költözhető!
Miért ideális választás családoknak?
A ház kiváló elosztásának köszönhetően minden családtagnak jut saját tér, miközben a közös élettér – a nappali és a terasz – a családi élet központja lehet. a nagy kert biztonságos játékteret nyújt a gyerekeknek, és bőven marad hely pihenésre, kertészkedésre is.
Miért jó Vácrátóton élni?
Vácrátót egyre népszerűbb az agglomerációban, hiszen:
* Nyugodt, természetközeli környezet
* Kiváló levegő, csendes utcák
* Híres Nemzeti Botanikus Kert a közelben
* Óvoda, iskola, boltok helyben elérhetők
* Budapest autóval kb. 30-40 Perc alatt megközelíthető
* Jó közlekedés Vác és a főváros irányába
Miért érdemes velünk dolgozni?
Teljes körű ügyintézés az első megtekintéstől a birtokbaadásig
16 év tapasztalat
Segítség hitelügyintézésben és jogi folyamatokban
Rugalmas megtekintési lehetőség
Valódi, naprakész információk – nincsenek kellemetlen meglepetések
Ha egy modern, világos, jól átgondolt elosztású otthont keres, ahol a család minden tagja megtalálja a helyét, ezt az ingatlant érdemes személyesen is megnézni! FIX 3% lakáshitelre megvehető
Tetszett ez az eladó Vácrátóti új építésű 4 egész és 1 fél szobás családi ház? Hívd fel a hirdetőt most, és tudj meg mindent erről az eladó családi házról! Ha gondolod nézelődj tovább az eladó ház Vácrátót oldal hirdetései között. Ennek az eladó háznak az ára 149000000 Ft és mivel az alapterülete 140 négyzetméter, ezért az átlagos négyzetméterára 1064286 HUF/m2.
Az eladó házak menüpontban további hirdetések között is böngészhetsz. Ha van kedved, akkor böngészhetsz a Bagóczky Attila összes hirdetése között, vagy akár a/az Családi Ingatlan összes hirdetése között is.

