Eladó új építésű ház Vácrátót
| Kedvencbe | Megosztás | Árfigyelő |
| FIX 3% lakáshitelre megvehető | ||
| 89 500 000 HUF | ||
Ingatlan adatai
- Eladó vagy kiadó:Eladó
- Település:Vácrátót
- Kategória:Ház
- Alkategória:Családi ház
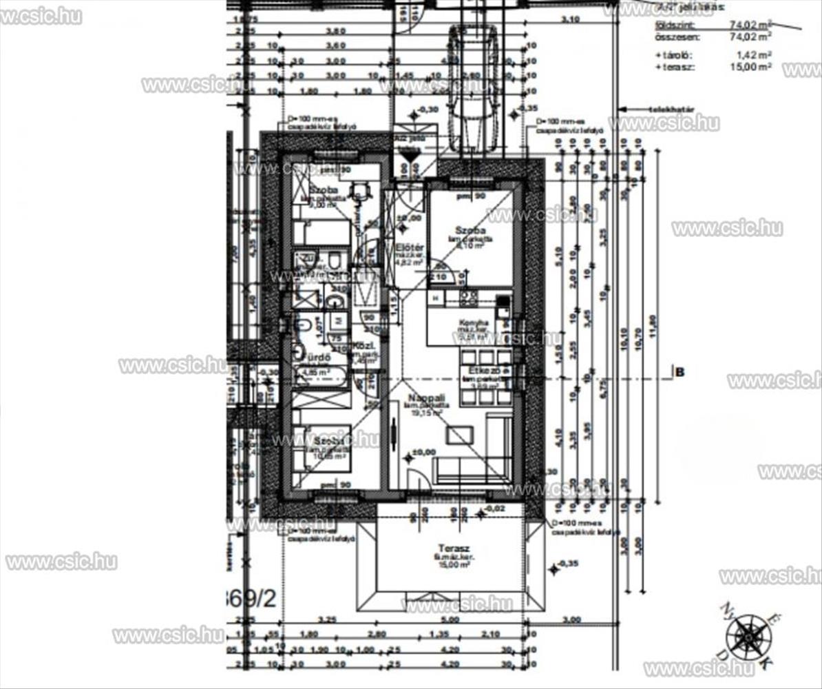
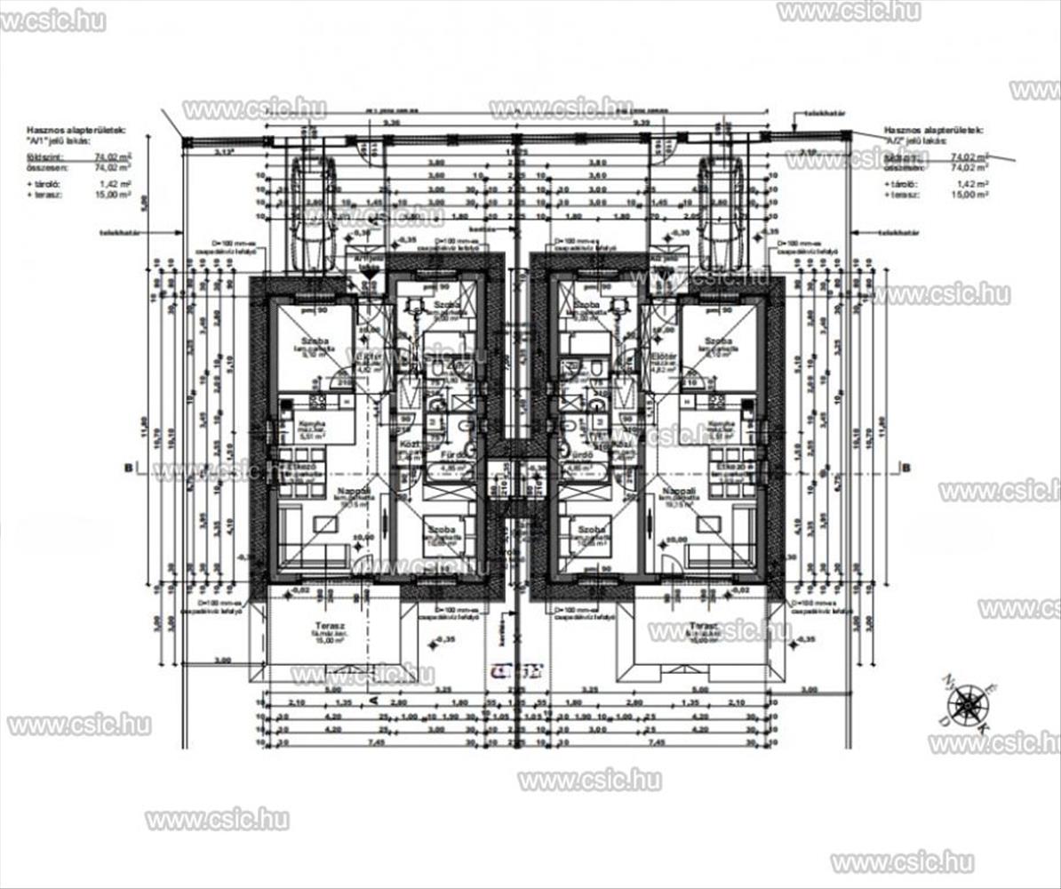
- Alapterület:83 m2
- Telekterület:390 m2
- Csere is:Nem
- Hirdető:Cég
- Élő videón megtekinthető:Nem
- Építés éve:2025
- Szobaszám:1 + 3 fél
- Állapot:Új építésű
- Hány szintes az ingatlan:nincs megadva
- Tetőtér:nincs megadva
- Komfortosság:nincs megadva
- Parkolási lehetőség:Beállóban
- Fűtés:nincs megadva
- Bútorozottság:nincs megadva
- Fényviszony:nincs megadva
- Tájolás:nincs megadva
- Kilátás:nincs megadva
- Internet:nincs megadva
- Akadálymentesített:nincs megadva
- Energiatanúsítvány:nincs megadva
- Villany:Van
- Víz:Van
- Gáz:Van
- Csatorna:Van
- Üzenetküldés
- Hívás


Hitel ajánlat
Ingatlan hirdetés leírása
Vácrátóton, új építésű, egyszintes családi ház eladó
Letisztult modern otthon Vácrátóton – új építés, 3 hálószoba, amerikai konyhás nappali, saját kerttel!Vácrátót egyik legújabb lakónegyedében kínáljuk eladásra ezt az új építésű, 83 m²-es földszintes családi házat, amely kiváló elosztásával és modern műszaki tartalmával ideális választás lehet családoknak, pároknak, de akár idősebb korosztálynak is.
Főbb jellemzők:
• Tágas amerikai konyhás nappali
• Három jól szeparált hálószoba
• Két fürdőszoba: egyik kádas, másik zuhanyzós
• Praktikus előszoba és közlekedő
• Kert felől megközelíthető, különálló tároló
• 15 m²-es terasz, mely közvetlenül a nappaliból nyílik
• 390 m²-es saját telek
A ház modern hőszivattyús fűtéssel és padlófűtéssel készül, a fürdőkben törölközőszárító radiátor is helyet kap. Az építés 30-as téglafalazattal és 10 cm grafitos szigeteléssel történik. a belső kialakítást – burkolatok, szaniterek, ajtók – még egyéni igény szerint választhatja ki a leendő tulajdonos.
Miért Vácrátót?
A természetközeli, nyugodt környezet és a Budapesthez való gyors kapcsolódás (autóval, busszal, vonattal is elérhető) ideális kombinációt jelent a kikapcsolódásra és a mindennapi élet kényelmére vágyóknak.
A közeli Veresegyház teljes infrastruktúrával szolgálja ki az itt élőket, Vácrátót pedig híres botanikus kertjével, családias hangulatával tűnik ki.
Az ingatlanvásárlásban sem hagyjuk magára!
Teljes körű ügyintézéssel, jogi és ügyvédi háttérrel, valamint hitelügyintézői támogatással segítjük Önt az adásvétel minden lépésében.
Várom hívását! FIX 3% lakáshitelre megvehető

