- >>
- eladó ingatlanok
- >>
- eladó vendéglátási ingatlan
- >>
- eladó vendéglátási ingatlan Salgótarján
- >>
Eladó vendéglátási ingatlan - Salgótarján
| | |||
| Kedvencnek jelölöm | Elküldöm emailben | Megosztás | Szavazás |
| Kedvezményes lakáshitel ajánlatok | |||
| 35 000 000 HUF | |||
Ingatlan adatai
- Eladó vagy kiadó:Eladó
- Település:Salgótarján
- Kategória:Vendéglátás
- Alkategória:Étterem, vendéglő
- Alapterület:185 m2
- Telekterület:1261 m2
- Csere is:Nem
- Hirdető:Cég
- Élő videón megtekinthető:Nem
- Hány szintes az ingatlan:nincs megadva
- Hányadik emeleti:nincs megadva
- Parkolási lehetőség:nincs megadva
- Bútorozottság:nincs megadva
- Fényviszony:nincs megadva
- Tájolás:nincs megadva
- Internet:nincs megadva
- Akadálymentesített:nincs megadva
- Energiatanúsítvány:nincs megadva
- Üzenetküldés
- Hívás

Lőrincz-Molnár Viktória
Mondd meg a hirdetőnek, hogy a megveszLAK-on találtad a hirdetést.

Ingatlan hirdetés leírása
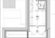
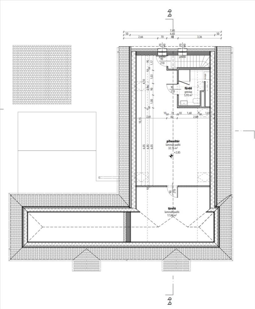
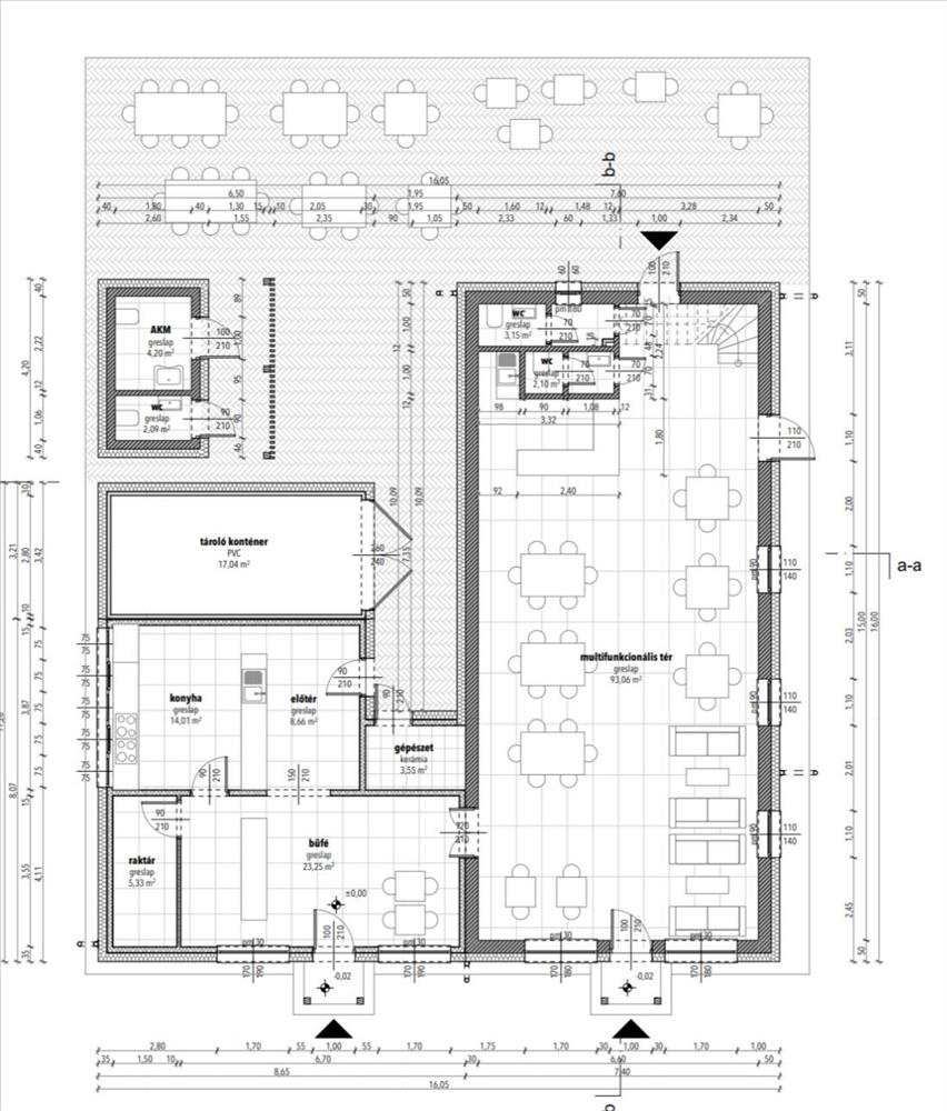
Ez az ingatlan Salgótarján ipari-kereskedelmi övezetében, az Ö...
Ez az ingatlan Salgótarján ipari-kereskedelmi övezetében, az Ötvözetgyár úton nem csupán egy épület, hanem egy jövőbeni üzleti lehetőség. a 185 m²-es, teljes körűen felújított téglaépület és a hozzá tartozó két, összesen 1261 m²-es közművesített telek számos hasznosítási lehetőséget kínál.A tulajdoni lap szerinti "kivett büfé, udvar" besorolás és az ipari környezet ideálissá teszi kereskedelmi, szolgáltatói vagy irodai célú átalakításra, de akár munkásszálló, műhely, bemutatóterem vagy kisebb logisztikai egység is kialakítható benne.
A tetőtér beépített, a gépészeti rendszerek korszerűek, az ingatlan azonnal birtokba vehető. a stabil szerkezet, a minőségi felújítások (új tető, nyílászárók, szigetelés, kazán) biztos alapot adnak hosszú távú működtetéshez és megtérüléshez.
Főbb jellemzők:
Ingatlan típusa: Kivett büfé, udvar
Alapterület: 185 m²
Telek mérete: 645 m² + 616 m² (összesen 1. 261 M²)
Építési mód: Tégla
**Felújítások:**
Szigetelés (eps 100/8 cm), gv 45 vízszigetelés
Új aljzatbeton, fűtéscsövek, elosztók
Vízbekötés bővítése, új alubetétes csövek
Burkolás, dryvit hálózás, glettelés, festés
Gipszkarton álmennyezet
Nyílászárók cseréje (3 rétegű hőszigetelt üveg)
Tetőtér kialakítása, szigeteléssel, tetőtéri ablakokkal
Új Maslen Simetria 8017 tetőlemez, barna színű csatorna
Felújított kémény
Fűtés: Vegyestüzelésű kazán (a rendszer felújított)
Melegvíz: Villanybojler
Gáz: Gázcsonk a telken
Egyéb: Külső wc, konténer
Jó lokáció, alacsony induló költségek, többféle hasznosítási opció
Ezúton tájékoztatjuk, hogy Ön, mint érdeklődő, a hirdetésben megjelölt telefonszám felhívásával hozzájárul személyes adatai – így különösen neve és telefonszáma -, a hirdetést feladó lőrincz-molnár viktória ev. Általi - biztonságos és körültekintő - kezeléséhez, nyilvántartásához. E körben, az alábbi linken megismerheti az adatkezelési tájékoztatót.
Immo1. Hu/adatvedelem
Adatbázisunkban további több ezer ingatlanból választhat, hívjon bizalommal, hogy megtaláljuk a legmegfelelőbbet! Hitelre van szüksége? Teljes körű és díjmentes hitelügyintézéssel, biztosításkötéssel áll rendelkezésére szakértő kollégánk. Kérje személyre szabott ajánlatunkat! Hitel.hu - Hasonlítsa össze a bankok lakáshitel ajánlatait


