Eladó fejlesztési terület Diósd
| Kedvencbe | Megosztás | Árfigyelő |
| Kedvezményes lakáshitel ajánlatok | ||
| 240 000 000 HUF | ||
Ingatlan adatai
- Eladó vagy kiadó:Eladó
- Település:Diósd
- Kategória:Fejlesztési terület
- Alkategória:Lakóterület
- Alapterület:nincs megadva
- Telekterület:1509 m2
- Csere is:Nem
- Hirdető:Cég
- Élő videón megtekinthető:Nem
- Villany:nincs megadva
- Víz:nincs megadva
- Gáz:nincs megadva
- Csatorna:nincs megadva
- Üzenetküldés
- Hívás

Petkov Gyöngyi Katalin
Mondd meg a hirdetőnek, hogy a megveszLAK-on találtad a hirdetést.
Referencia szám: M318830

Hitel ajánlat
Ingatlan hirdetés leírása
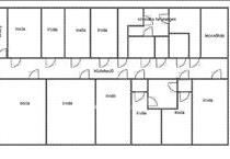
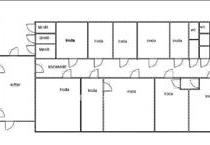
Eladó Ipari terület, Diósd
*** Csak az OTP Ingatlanpont kínálatában! *** Diósdon a 7-es főúttól pár percre, csendes, családias környezetben egy 1509 m2-es sík, körbekerített telken, 541 m2-es 2002. Évi építésű, újszerű; családi házjellegű, belső két szintes épület eladó!Az ingatlan jó műszaki, esztétikai állapotú. Az épület különálló mérőórákkal felszerelt. Az épület hátsó részében egy 28 m2-es fűtött garázs áll rendelkezésre, valamint az épület mögött a telken, 6-8 helyes parkoló helyezkedik el, továbbá a telek előtt az utcán 3 autó is meg tud állni. Két fő épületrészből álló ingatlant kínálunk megvételre az m0 autóút közelségében, mégis csendes helyen. 450 m2-es kétszintes középfolyosós főépületből és 91 m2-es szociális és garázs blokkból áll. 2 Kazán látja el az ingatlan fűtését. 3X80 a áram van bekötve.
Két éve nincs használatban, laborként üzemelt. Az ingatlan könnyen más funkcióra is átalakítható, jól hasznosítható. Az ingatlan jelenleg üres. Ár 240. 000. 000. -Ft+áfa.
Az OTP Bankcsoport teljes körű ügyintézéssel áll az eladók és a vevők rendelkezésére! a kínálatunkból választott ingatlan finanszírozásához kedvezményes hitel konstrukciókat kínálunk. Legújabb szolgáltatásként ajánlom minden kedves ügyfelem részére az OTP Bank által közvetített Babaváró, csok, vagy egyéb kölcsönök intézését. Az adásvételi szerződés megkötéséhez igény szerint megbízható ügyvédi közreműködést biztosítunk, és segítséget nyújtunk az adásvételhez kapcsolódó ügyek intézéséhez. Akár hétvégén is hívható vagyok! Amennyiben igényli, kérem küldjön sms-t és szívesen visszahívom!
Referencia szám: m318830-ml Hitel.hu - Hasonlítsa össze a bankok lakáshitel ajánlatait

