Eladó újszerű állapotú nyaraló Szigetbecse
| Kedvencbe | Megosztás | Árfigyelő |
| Kedvezményes lakáshitel ajánlatok | ||
| 89 900 000 HUF | ||
Ingatlan adatai
- Eladó vagy kiadó:Eladó
- Település:Szigetbecse
- Kategória:Nyaraló
- Alkategória:Hétvégi ház
- Alapterület:88 m2
- Telekterület:368 m2
- Csere is:Nem
- Hirdető:Cég
- Élő videón megtekinthető:Nem
- Építés éve:1998
- Szobaszám:4
- Állapot:Újszerű, kitűnő
- Hány szintes az ingatlan:2 szintes
- Tetőtér:nincs megadva
- Komfortosság:nincs megadva
- Parkolási lehetőség:Udvaron
- Fűtés:Elektromos
- Téliesített:nincs megadva
- Bútorozottság:nincs megadva
- Fényviszony:Jó
- Tájolás:nincs megadva
- Kilátás:nincs megadva
- Internet:nincs megadva
- Akadálymentesített:nincs megadva
- Energiatanúsítvány:nincs megadva
- Villany:Telken belül
- Víz:Telken belül
- Gáz:Telken belül
- Csatorna:Telken belül
- Üzenetküldés
- Hívás

Major Katalin Tünde
Mondd meg a hirdetőnek, hogy a megveszLAK-on találtad a hirdetést.
Referencia szám: M302413

Hitel ajánlat
Ingatlan hirdetés leírása
Eladó Ház, Szigetbecse
*** Eladó közvetlen vízparti nyaraló, saját stéggel! ***Megvételre kínálok egy igazi horgászparadicsom közepén elhelyezkedő nyaralót Szigetbecsén.
Akár saját részre vásárolna, akár befektetésre, mindkét opció tökéletesen megéri. a tulajdonos eddig is nagy sikerrel járatta és folyamatos foglalásai voltak egész szezonban áprilistól egészen októberig.
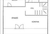
A minden igényt kielégítő házban étkező, konyha, 2 fürdőszoba WC-vel és 4 szoba gondoskodik a kellemes és kényelmes pihenésről és minden családtag privát szférájáról. a hatalmas terasz biztosítja a finom reggelik, ebédek és vacsorák helyét. a kertben reggeltől estig szaladgálhatnak a gyerekek, míg apa a kert végében lévő saját stégen fogja ki az ebédnek valót. a stég és saját partszakasz mellett egy csodás épített sütögető is található a telken, amely szuper lehet egy-egy nyár esti szalonnasütéshez.
A házban a fűtésről kandalló és egy hűtő-fűtő klíma gondoskodik, a melegvíz-ellátás pedig villanybojlerrel megoldott. a ház hőszigetelt, fa szerkezetű ablakok és ajtók vannak, redőnnyel és szúnyoghálóval. Víz, villany, csatorna, gáz a telken belül, az öntözéshez pedig egy fúrt kút nyújt segítséget.
A 368 m2-es telken több autó is elfér és egy fedett autóbeálló is rendelkezésre áll.
Békés menedék lehet mindkét opció esetén, közelben az Állatkert, hatalmas biciklis útvonalak, kisbolt, étterem, a part túloldalán található a Somlyó-sziget és a közkedvelt Préri Horgásztó is. a Duna ezen szakasza bővelkedik a halakban méltán híres is a halállományáról, így minden horgász megtalálja számításait.
Szigetbecse egy nyugalmas település, a közösség összetartó, a természet pedig olyan kincseket rejt amit a fővárosban aligha látunk.
Közlekedés:
Az ingatlan az 51-es főúton keresztül közelíthető meg, illetve közvetlen buszjárattal is elérhető Budapestről, vagy a H6-os HÉV-el Ráckevéről.
Amennyiben felkeltettem érdeklődését, hívjon bizalommal a hét bármely napján!
Az OTP Bankcsoport teljeskörű ügyintézéssel áll az eladók és a vevők rendelkezésére! a kínálatunkból választott ingatlan finanszírozásához kedvezményes hitelkonstrukciókat kínálunk. Az adásvételi szerződés megkötéséhez igény szerint megbízható ügyvédi közreműködést biztosítunk és segítséget nyújtunk az adásvételhez kapcsolódó ügyek intézéséhez.
Referenciaszám: m302413 Hitel.hu - Hasonlítsa össze a bankok lakáshitel ajánlatait

