Eladó új építésű ház - Áporka
- INGYENES HIRDETÉS FELADÁS
Ingatlan adatai
- Eladó vagy kiadó:Eladó
- Település:Áporka
- Kategória:Ház
- Alkategória:Ikerház
- Alapterület:88 m2
- Telekterület:302 m2
- Csere is:Nem
- Hirdető:Cég
- Élő videón megtekinthető:Nem
- Építés éve:2025
- Szobaszám:3
- Állapot:Új építésű
- Hány szintes az ingatlan:nincs megadva
- Tetőtér:nincs megadva
- Komfortosság:Összkomfortos
- Pince:Nincs
- Parkolási lehetőség:Nincs
- Fűtés:nincs megadva
- Bútorozottság:nincs megadva
- Fényviszony:nincs megadva
- Tájolás:nincs megadva
- Kilátás:nincs megadva
- Internet:nincs megadva
- Klíma:nincs megadva
- Akadálymentesített:nincs megadva
- Energiatanúsítvány:nincs megadva
- Villany:Van
- Víz:Van
- Gáz:Van
- Csatorna:Van
- Kapcsolatfelvétel

Belák Ilona Kinga
+36-(20)-227-7335
Mondd meg a hirdetőnek, hogy a megveszLAK-on találtad a hirdetést.
Hitel ajánlatok
Ingatlan hirdetés leírása
Eladó Ikerház, Áporka, Nincs megadva, 88nm, 65000000 Ft
Új építésű IKERHÁZFÉL
Áporka településén
Eladásra kínálunk Áporkán egy új építésű, egyszintes ikerházfelet, amely tárolókapcsolatos kialakítású, a lakóterek között nincs közös fal, így a mindennapi használat szempontjából önálló családi ház érzetét nyújtja, jogilag azonban ikerház.
Ár: 65. 000. 000 Ft
Átadás: 2026. Augusztus
FŐBB PARAMÉTEREK
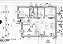
Hasznos alapterület: 88, 19 m²
Terasz: 14, 10 m²
Telek: 302 m², saját kert
Ikerházfél, tárolóval kapcsolatos kialakítás
HELYISÉGEK
Amerikai konyhás nappali: 26, 61 m²
Konyha: 4, 68 m²
Három külön nyíló hálószoba:
– 10, 04 m²
– 11, 07 m²
– 10, 10 m²
Előtér: 7, 77 m²
Kamra: 3, 61 m²
Fürdőszoba: 5, 84 m²
Külön wc: 1, 50 m²
Közlekedő: 1, 38 m²
MŰSZAKI TARTALOM
Hőszivattyús fűtési rendszer
Modern szigetelés és korszerű nyílászárók
Praktikus, jól átgondolt alaprajz
Világos, élhető terek
Tárolókapcsolatos ikerházi kialakítás
KIVITELEZÉS
Az ingatlan megbízható, leinformálható kivitelezőtől származik.
A kivitelező referenciaházai megtekinthetők, a kivitelezési minőség ellenőrizhető.
MIÉRT jó VÁLASZTÁS
Ikerházfél, lakóterek között nincs közös fal
Nyugodt, csendes települési környezet
Ideális családosoknak
Új építés, alacsony fenntartási költségek
Értéktartó ingatlan
Kapcsolat és finanszírozás
Belák Ilona Kinga
Minőségi otthonok szakértője – pénzügyi megoldásokkal
Telefonszám: 06 20 227 7335
E-mail: ilona@ingatlan-sziget. Hu
Weboldal: www. Ingatlan-sziget. Hu FIX 3% lakáshitelre megvehető

