Eladó új építésű ház - Kőszeg
- INGYENES HIRDETÉS FELADÁS
Ingatlan adatai
- Eladó vagy kiadó:Eladó
- Település:Kőszeg
- Kategória:Ház
- Alkategória:Ikerház
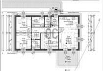
- Alapterület:95 m2
- Telekterület:379 m2
- Csere is:Nem
- Hirdető:Cég
- Élő videón megtekinthető:Nem
- Építés éve:2026
- Szobaszám:4
- Állapot:Új építésű
- Hány szintes az ingatlan:nincs megadva
- Tetőtér:nincs megadva
- Komfortosság:nincs megadva
- Pince:nincs megadva
- Parkolási lehetőség:nincs megadva
- Fűtés:Elektromos
- Bútorozottság:nincs megadva
- Fényviszony:nincs megadva
- Tájolás:DNY
- Kilátás:nincs megadva
- Internet:nincs megadva
- Klíma:nincs megadva
- Akadálymentesített:nincs megadva
- Energiatanúsítvány:nincs megadva
- Villany:Van
- Víz:Van
- Gáz:Nincs
- Csatorna:Van
- Kapcsolatfelvétel

Tóth Éva
+36-(70)-412-5241
Mondd meg a hirdetőnek, hogy a megveszLAK-on találtad a hirdetést.
Hitel ajánlatok
Ingatlan hirdetés leírása
Kőszegen épülő Borostyánkő lakóparkban eladó fémvázas, könnyűs...
Kőszegen épülő Borostyánkő lakóparkban eladó fémvázas, könnyűszerkezetes iker családi ház 380nm -es telken.
A település klímája szubalpin, egyedülállóan az országban. Kőszeg infrastruktúrája kiváló, bölcsőde, óvoda, általános és középiskola egyaránt rendelkezésre áll a családok számára.
Határváros révén 20 km-en belül ausztriai autópálya és az m86 gyorsforgalmi útra csatlakozás teszi könnyen elérhetővé.
A telkek saját úttal rendelkeznek, átmenő forgalom nincs az utcában. Fekvésük miatt örök-panorámás kilátással rendelkeznek a telkek a Kőszegi hegységre.
Közművek közül víz, csatorna, villany áll rendelkezésre.
25 Éves kivitelezési gyakorlattal rendelkező, tőkeerős és referenciákkal rendelkező beruházótól, rendkívül precíz és igényes kivitelezéssel, osztrák minőségben készülő örök életű fémvázas szerkezettel kivitelezett könnyűszerkezetes házak. Házainkhoz szárított, minősített faanyagokat használunk!
-20 Cm kőzetgyapot szigetelés a falakban-20 cm Dryvit szigetelés kívül
-30 cm mennyezeti szigetelés hőtükrös fóliával
-fokozott hang és hőszigetelésű három rétegű üvegezéssel készült nyílászárók
- energiatakarékos helységenként vezérelhető infrafilm padlófűtés
- duplakomfortos, minden igényt kielégítő kialakítás, lakberendező közreműködésével készült alaprajzi elrendezés
- klíma, riasztó előkészítve későbbi igény esetére
- külön mosókonyha rendkívül kényelmes megoldás a háztartás vezetésére
- 12nm terasz
- Minőségi laminált padló burkolatok, vízálló laminált burkolattal készült fürdők, első osztályú szaniterekkel felszerelve. Csillagpontosan kiépített gyenge áramú hálózat lehetővé teszi berendezések kábelen történő csatlakoztatását minden helységben.
Projekt bemutatása
Kőszegen új építésű családi házak eladók
Kőszegen épülő Borostyánkő lakóparkban eladó fémvázas, könnyűszerkezetes ikercsaládi ház 200-300 nm -es önálló helyrajzi számú telken.
A település klímája szubalpin, egyedülállóan az országban. Kőszeg infrastruktúrája kiváló, bölcsőde, óvoda, általános és középiskola egyaránt rendelkezésre áll a családok számára.
Határváros révén 20 km-en belül ausztriai autópálya és az m86 gyorsforgalmi útra csatlakozás teszi könnyen elérhetővé.
A telkek saját úttal rendelkeznek, átmenő forgalom nincs az utcában. Fekvésük miatt örök-panorámás kilátással rendelkeznek a telkek a Kőszegi hegységre.
Közművek közül víz, csatorna, villany áll rendelkezésre.
25 Éves kivitelezési gyakorlattal rendelkező, tőkeerős és referenciákkal rendelkező beruházótól, rendkívül precíz és igényes kivitelezéssel, osztrák minőségben készülő örök életű fémvázas szerkezettel kivitelezett könnyűszerkezetes házak. Házainkhoz szárított, minősített faanyagokat használunk!
-20 Cm kőzetgyapot szigetelés a falakban-20 cm Dryvit szigetelés kívül
-30 cm mennyezeti szigetelés hőtükrös fóliával
-fokozott hang és hőszigetelésű három rétegű üvegezéssel készült nyílászárók
- alumínium hőszigetelt elektromos redőnyök igény szerint távirányítóval
- energiatakarékos helységenként vezérelhető infrafilm padlófűtés
- duplakomfortos, minden igényt kielégítő kialakítás, lakberendező közreműködésével készült alaprajzi elrendezés
- klíma, riasztó előkészítve későbbi igény esetére
- külön mosókonyha rendkívül kényelmes megoldás a háztartás vezetésére
- 12nm terasz
- Minőségi laminált padló burkolatok, vízálló laminált burkolattal készült fürdők, első osztályú szaniterekkel felszerelve. Csillagpontosan kiépített gyenge áramú hálózat lehetővé teszi berendezések kábelen történő csatlakoztatását minden helységben. FIX 3% lakáshitelre megvehető
Tetszett ez az eladó Kőszegi új építésű 4 szobás ikerház? Hívd fel a hirdetőt most, és tudj meg mindent erről az eladó ikerházról! Ha gondolod nézelődj tovább az eladó ház Kőszeg oldal hirdetései között. Ennek az eladó háznak az ára 84900000 Ft és mivel az alapterülete 95 négyzetméter, ezért az átlagos négyzetméterára 893684 HUF/m2.
Az eladó házak menüpontban további hirdetések között is böngészhetsz. Ha van kedved, akkor böngészhetsz a Tóth Éva összes hirdetése között, vagy akár a/az Otthon Centrum Kőszeg összes hirdetése között is.

