Eladó új építésű ház - Nyíregyháza
- INGYENES HIRDETÉS FELADÁS
Ingatlan adatai
- Eladó vagy kiadó:Eladó
- Település:Nyíregyháza
- Kategória:Ház
- Alkategória:Ikerház
- Alapterület:80 m2
- Telekterület:480 m2
- Csere is:Nem
- Hirdető:Cég
- Élő videón megtekinthető:Nem
- Építés éve:2026
- Szobaszám:3 + 1 fél
- Állapot:Új építésű
- Hány szintes az ingatlan:Földszintes
- Tetőtér:Nem beépíthető
- Komfortosság:Összkomfortos
- Pince:Nincs
- Parkolási lehetőség:Udvaron
- Fűtés:Gáz (cirko)
- Bútorozottság:Bútorozatlan
- Fényviszony:Napfényes
- Tájolás:nincs megadva
- Kilátás:Udvari
- Internet:Szélessávú (>10Mbps)
- Klíma:Van
- Akadálymentesített:Nem akadálymentesített
- Energiatanúsítvány:A++
- Villany:Van
- Víz:Van
- Gáz:Van
- Csatorna:Van
- Kapcsolatfelvétel

Némethné Judit
+36-(30)-459-7168
Mondd meg a hirdetőnek, hogy a megveszLAK-on találtad a hirdetést.
Referencia szám: 7501
Hitel ajánlatok
Ingatlan hirdetés leírása
KIS ALAPTERÜLETŰ IKER CSALÁDI HÁZAK LEFOGLALHATÓ
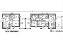
Nyíregyháza, Orosi kivezető fiatal építésű utcájában lefoglalható 2026-be épülő iker ház mindkét oldala. Az ingatlan 80-56 m2-s, a nagyobb három fél szoba, nappali, étkező, amerikai konyha, fürdőszoba és wc egyben, külön wc és szélfogó a kisebb ház kettő fél szoba, nappali+étkező+amerikai konyha egy térben, külön zuhanyzó és wc, szélfogó tartozik hozzájuk, műanyag nyílászárós mely három rétegű üveggel ellátott, villany kazán és padlófűtésű, 30-s porotherm téglából készülnek külsőleg 15 cm-s nikecel szigetelés, belső falak kartonozva, fafödémes rajta 35 cm-s salakgyapot szigetelés a mennyezet fémvázra erősített tűzálló gipszkarton a nyereg tető beton cseréppel fedett alatta párazáró fóliával. a nagyobbik háznak 480 m2-s telekterülete van a kisebbiknek 240 m2-s, mindkettőhöz tartozik egy fedett gépkocsi beálló és térkövezett járda. Költözni leghamarabb 2026 év VÉGE.
80 m2- 76 000 000 Ft.
56-m2- 65 000 000 Ft.
AMENNYIBEN felkeltette az érdeklődését keressen és ha szükséges hitelügyintézésben is tudunk segíteni. FIX 3% lakáshitelre megvehető
Tetszett ez az eladó Nyíregyházai új építésű 3 egész és 1 fél szobás ikerház? Hívd fel a hirdetőt most, és tudj meg mindent erről az eladó ikerházról! Ha gondolod nézelődj tovább az eladó ház Nyíregyháza oldal hirdetései között. Ennek az eladó háznak az ára 76000000 Ft és mivel az alapterülete 80 négyzetméter, ezért az átlagos négyzetméterára 950000 HUF/m2.
Az eladó házak menüpontban további hirdetések között is böngészhetsz. Ha van kedved, akkor böngészhetsz a Némethné Judit összes hirdetése között.

