Eladó új építésű ház - Taksony
- INGYENES HIRDETÉS FELADÁS
Ingatlan adatai
- Feladva:5 hónapja a megveszLAK-on
- Eladó vagy kiadó:Eladó
- Település:Taksony
- Kategória:Ház
- Alkategória:Ikerház
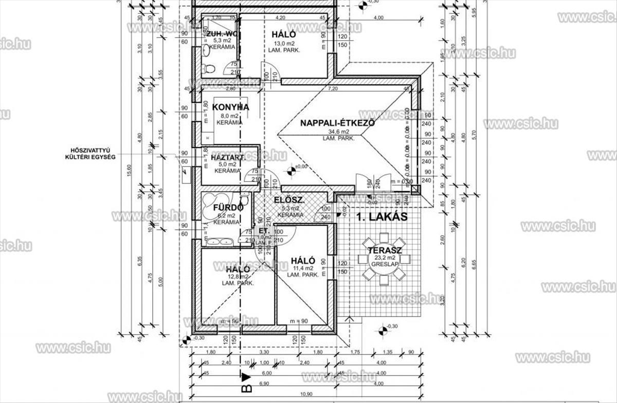
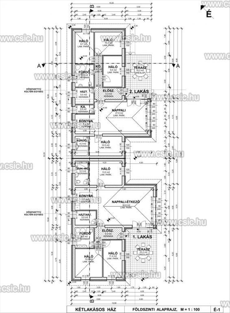
- Alapterület:102 m2
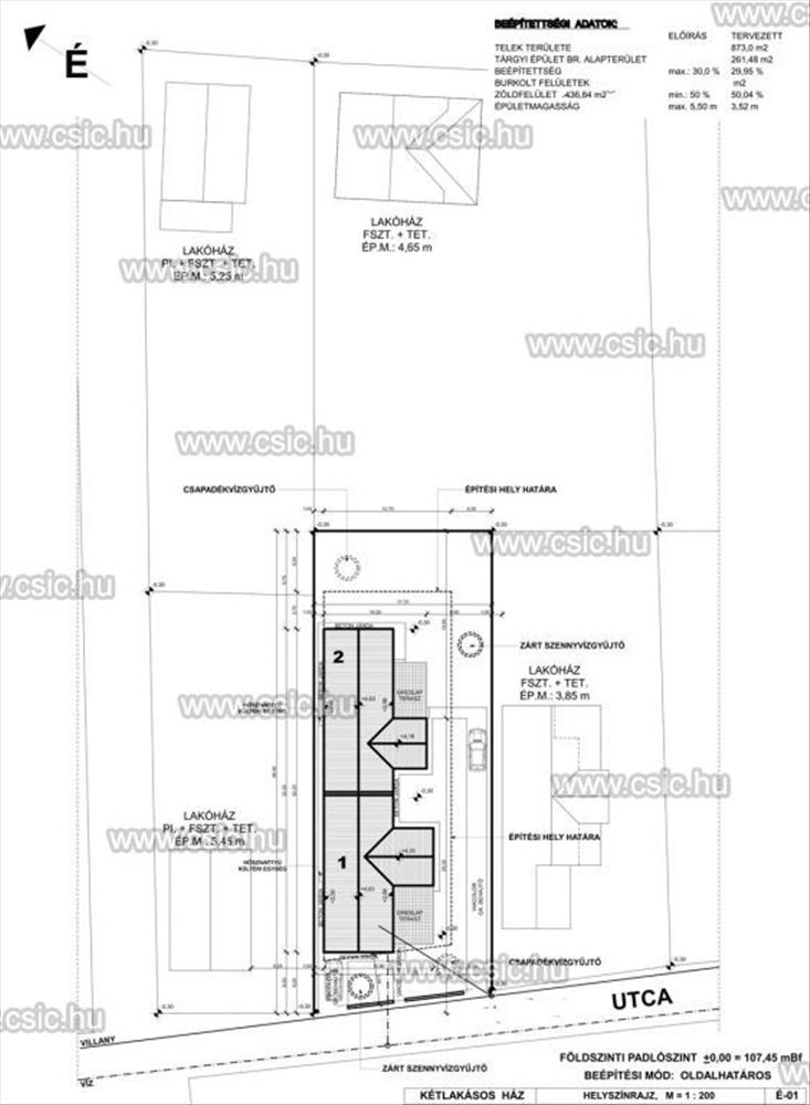
- Telekterület:320 m2
- Csere is:Nem
- Hirdető:Cég
- Élő videón megtekinthető:Nem
- Szobaszám:4
- Állapot:Új építésű
- Hány szintes az ingatlan:nincs megadva
- Tetőtér:nincs megadva
- Komfortosság:nincs megadva
- Pince:nincs megadva
- Parkolási lehetőség:Beállóban
- Fűtés:nincs megadva
- Bútorozottság:nincs megadva
- Fényviszony:nincs megadva
- Tájolás:nincs megadva
- Kilátás:nincs megadva
- Internet:nincs megadva
- Klíma:nincs megadva
- Akadálymentesített:nincs megadva
- Energiatanúsítvány:nincs megadva
- Villany:Van
- Víz:Van
- Gáz:Van
- Csatorna:Van
- Kapcsolatfelvétel

Héda Zsó
+36-(20)-367-1543
Mondd meg a hirdetőnek, hogy a megveszLAK-on találtad a hirdetést.
Hitel ajánlatok
Ingatlan hirdetés leírása
ÚJ ÉPÍTÉSŰ IKERHÁZ ELADÓ TAKSONYBAN 102 NM + 320 kert
Rendkívüli tavaszi ár!
ÚJ építésű ikerház eladó TAKSONYBAN
Taksony szívében, átmenő forgalommentes, mégis főútvonalhoz közel eső utcában megvételre kínáljuk ezt a 102, 6 m2-es 1. Ikerházat, amely egy 873 m2-es összközműves telken épül.
Az 1. Ikerház nappali + 3 hálószobás és a saját, önálló kert része 320 m2.
Jellemzői:
- Alapozás : vasbeton sávalap
- Falszerkezet : porotherm n+f 30 cm vastag Porotherm, ill. Leier téglából, az ikerházak közötti dupla falazattal, 15 cm dryvit szigeteléssel
- Födém : fafödém épül a koszorúhoz rögzített fa gerendákkal.
- Tetőfedés : betoncseréppel készül 3, 0 x 5, 0 cm lécezésre, tetőfóliával.
- Tetőszerkezet : hagyományos fa fedélszerkezet szarufákkal, talpszelemenekkel, taréjszelemennel,
- Válaszfalak: 10 cm-es kerámia válaszfalak
- a beltéri helyiségek elrendezése alakítható
- emelet feletti födémben 25 cm-es Knauf Classic hőszigetelő anyag
- Bejárati ajtó : műanyag több ponton záródó, biztonsági ajtó
- Belső ajtók : Utólagosan felszerelendő fa belső ajtók.
- Ablakok, teraszajtók: műanyag nyílászárók háromrétegű hőszigetelő üvegezéssel (u=0, 7 W/m2K) - ---- Fűtés és melegvíz ellátás: H-tarifás hőszivattyú, padlófűtéses hőleadással.
- Utca fronti kerítés megépítésre kerül.
- Új gk-bejáró kapu készül, elektromos motor nyitási előkészítéssel.
- Az utca a-2-es épületig Murvás út lesz kialakítva, 3-3, 5m
Építkezés kezdése: 2026. Eleje
Átadása: 2026. Nyár vége
A vállalkozó 25 éves szakmai tapasztalattal és sok referencia munkával rendelkezik.
Illetékkedvezmény valamint az államilag támogatott hitelek, köztük az Otthon Start Program is igénybevehetőek.
A környék csendes, jól megközelíthető, tömegközlekedés pár perc sétányira.
Amennyiben a családi ingatlan által ajánlott ikerház vagy bármely a kínálatunkban található családi ház és ikerház felkeltette érdeklődését, hívjon bizalommal. Hétvégén is dolgozom!
A családi ingatlan leendő ügyfeleinek, teljesen díjmentes hitel ügyintézést, valamint kedvező díjazású ügyvédi tanácsadást tud nyújtani partnerein keresztül FIX 3% lakáshitelre megvehető
Tetszett ez az eladó Taksonyi új építésű 4 szobás ikerház? Hívd fel a hirdetőt most, és tudj meg mindent erről az eladó ikerházról! Ha gondolod nézelődj tovább az eladó ház Taksony oldal hirdetései között. Ennek az eladó háznak az ára 100000000 Ft és mivel az alapterülete 102 négyzetméter, ezért az átlagos négyzetméterára 980392 HUF/m2.
Az eladó házak menüpontban további hirdetések között is böngészhetsz. Ha van kedved, akkor böngészhetsz a Héda Zsó összes hirdetése között, vagy akár a/az Családi Ingatlan összes hirdetése között is.

