Eladó újszerű állapotú ház Telki
| Kedvencbe | Megosztás | Árfigyelő |
| Kedvezményes lakáshitel ajánlatok | ||
| 159 000 000 HUF | ||
Ingatlan adatai
- Eladó vagy kiadó:Eladó
- Település:Telki
- Kategória:Ház
- Alkategória:Ikerház
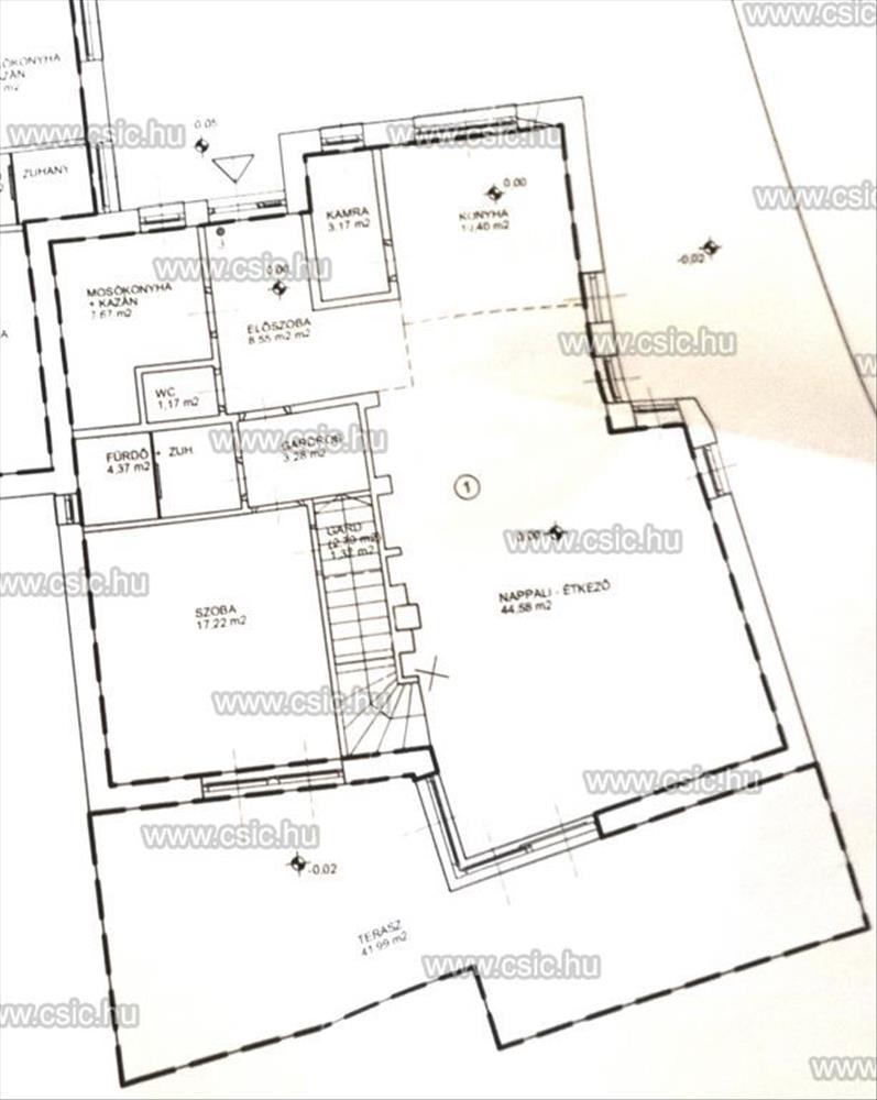
- Alapterület:172 m2
- Telekterület:600 m2
- Csere is:Nem
- Hirdető:Cég
- Élő videón megtekinthető:Nem
- Szobaszám:6
- Állapot:Újszerű, kitűnő
- Hány szintes az ingatlan:nincs megadva
- Tetőtér:nincs megadva
- Komfortosság:nincs megadva
- Parkolási lehetőség:Beállóban
- Fűtés:Egyéb
- Bútorozottság:nincs megadva
- Fényviszony:nincs megadva
- Tájolás:nincs megadva
- Kilátás:Panorámás
- Internet:nincs megadva
- Akadálymentesített:nincs megadva
- Energiatanúsítvány:nincs megadva
- Villany:Van
- Víz:Van
- Gáz:Van
- Csatorna:Van
- Üzenetküldés
- Hívás

Keresztesy Gabriella
Mondd meg a hirdetőnek, hogy a megveszLAK-on találtad a hirdetést.

Hitel ajánlat
Ingatlan hirdetés leírása
ELADÓ IKERHÁZ TELKI PANORÁMA
Kizárólag a Családi Ingatlan kínálatában!Eladásra kínálom ezt a 172 m²-es, panorámás ikerházat Telki egyik legkedveltebb részén, a kilátópont közvetlen közelében.
Mi teszi egyedivé ezt az ingatlant?
A nappaliba belépve azonnal lenyűgözi a látogatót a közel 6 méteres belmagasság, amely páratlan szabadságérzetet és eleganciát kölcsönöz az otthonnak.
Főbb jellemzők:
Lakótér: 172 m² (kétszintes, átgondolt elrendezéssel)
Telek: 600 m² – gondozott kert füvesített és térkövezett részekkel
Szobák: 3 kényelmes hálószoba+egy különálló, szeparálható lakrész a földszinten-fürdőszobával
Nappali: ~50 m²-es amerikai konyhás, napfényes közösségi tér
Fürdőszobák: 2 fürdőszoba+ 2 különálló wc
Fűtés: Hatékony gázkazán + hangulatos kandalló
Extrák és praktikus megoldások a modern igényekre:
Elektromos autó töltési lehetőség – felkészülve a jövő technológiájára!
Galéria: Tökéletes helyszín otthoni munkavégzéshez (home office) vagy olvasósaroknak.
Tárolás: Külön gardróbszoba, tágas kamra és nagy háztartási helyiség segít a rendszerezésben.
Azonnal költözhető: a ház bútorzata a vételár részét képezi!
A kert nemcsak a gyerekek játszótere, hanem baráti összejövetelek és a teljes kikapcsolódás színhelye is. Itt a panoráma és a csend nem extra, hanem a mindennapok része.
Ez nem csupán egy ház – ez egy életstílus.
Ne maradjon le erről a ritka lehetőségről! Hívjon bizalommal – akár hétvégén is – és tekintse meg személyesen leendő otthonát!
Hitelre van szüksége? Bankfüggetlen hiteltanácsadóink díjmentesen segítenek a legkedvezőbb konstrukció kiválasztásában. Hitel.hu - Hasonlítsa össze a bankok lakáshitel ajánlatait

