Eladó új építésű ház - Vácrátót
- INGYENES HIRDETÉS FELADÁS
Ingatlan adatai
- Eladó vagy kiadó:Eladó
- Település:Vácrátót
- Kategória:Ház
- Alkategória:Ikerház
- Alapterület:82 m2
- Telekterület:381 m2
- Csere is:Nem
- Hirdető:Cég
- Élő videón megtekinthető:Nem
- Építés éve:2026
- Szobaszám:4
- Állapot:Új építésű
- Hány szintes az ingatlan:nincs megadva
- Tetőtér:nincs megadva
- Komfortosság:nincs megadva
- Pince:Nincs
- Parkolási lehetőség:nincs megadva
- Fűtés:nincs megadva
- Bútorozottság:Bútorozatlan
- Fényviszony:nincs megadva
- Tájolás:nincs megadva
- Kilátás:nincs megadva
- Internet:nincs megadva
- Klíma:nincs megadva
- Akadálymentesített:nincs megadva
- Energiatanúsítvány:nincs megadva
- Villany:Van
- Víz:Van
- Gáz:nincs megadva
- Csatorna:Van
- Kapcsolatfelvétel

Kovács Péter
+36-(70)-418-1960
Mondd meg a hirdetőnek, hogy a megveszLAK-on találtad a hirdetést.
Hitel ajánlatok
Ingatlan hirdetés leírása
4622/2: Vácrátóton a Szent István lakóparkban épülő ikerház mi...
Vácrátóton a Szent István lakóparkban épülő ikerház mindkét fele eladó!
A két lakás csak a külső tárolóval kapcsolódik egymáshoz! !
CÉGES építkezés, a 2024-től aktuális állami támogatások valamint kedvezményes, kamattámogatott hitelek felvehetőek – akár a 3%-os otthon start hitel, CSOK plus, babaváró is igényelhető, az ügyintézésben díjmentesen segítünk!
Az építő munkájára jellemző a megbízhatóság és igényesség, leinformálható, referencia házai megtekinthetők.
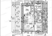
A lakások 74 nm -es lakóterülettel rendelkeznek + 15 nm terasz + 1, 42 nm külső tároló, amerikai-konyhás nappali + 3 szobával, dupla-komfortos elrendezéssel, 381 nm -es saját telekrészekkel.
Rövid műszaki tartalom:
Az épület vasbeton sávalappal, 30-as Porotherm tégla falazattal, külső dryvit szigeteléssel épül.
A tetőszerkezet 30°-os hajlásszögű kontyolt nyeregtető, antracit színű betoncserép-fedéssel.
Az ablakok fehér színű, műanyag szerkezetű, hőszigetelt 3 légkamrás, meleg peremes, 3 rétegű üvegezéssel.
Az ingatlan fűtéséről és meleg víz ellátásáról hőszivattyú gondoskodik, hőátadás padlófűtésen keresztül történik. H tarifás villanyóra is felszerelésre kerül.
A vételár ezen felül tartalmazza: klíma-előkészítés, elektromos redőnykiállás, riasztó előkészítés.
Parkolás: zárt udvari, térkövezett beállón kerül kialakításra.
A belső burkolatok, beltéri ajtók igény szerint választhatók, a belső műszaki tartalomban vállalt összeghatárig a vételár részét képezve.
Ára: 89. 500. 000. - Ft
Azonosító: 4622/2 FIX 3% lakáshitelre megvehető
Tetszett ez az eladó Vácrátóti új építésű 4 szobás ikerház? Hívd fel a hirdetőt most, és tudj meg mindent erről az eladó ikerházról! Ha gondolod nézelődj tovább az eladó ház Vácrátót oldal hirdetései között. Ennek az eladó háznak az ára 89500000 Ft és mivel az alapterülete 82 négyzetméter, ezért az átlagos négyzetméterára 1091463 HUF/m2.
Az eladó házak menüpontban további hirdetések között is böngészhetsz. Ha van kedved, akkor böngészhetsz a Kovács Péter összes hirdetése között, vagy akár a/az H &K Ingatlaniroda összes hirdetése között is.

