Eladó új építésű ház Veresegyház
| Kedvencbe | Megosztás | Árfigyelő |
| FIX 3% lakáshitelre megvehető | ||
| 130 000 000 HUF | ||
Ingatlan adatai
- Eladó vagy kiadó:Eladó
- Település:Veresegyház
- Kategória:Ház
- Alkategória:Ikerház
- Alapterület:141 m2
- Telekterület:740 m2
- Csere is:Nem
- Hirdető:Cég
- Élő videón megtekinthető:Nem
- Építés éve:2026
- Szobaszám:5
- Állapot:Új építésű
- Hány szintes az ingatlan:nincs megadva
- Tetőtér:nincs megadva
- Komfortosság:nincs megadva
- Pince:Nincs
- Parkolási lehetőség:Garázsban
- Fűtés:nincs megadva
- Bútorozottság:Bútorozatlan
- Fényviszony:nincs megadva
- Tájolás:nincs megadva
- Kilátás:nincs megadva
- Internet:nincs megadva
- Akadálymentesített:nincs megadva
- Energiatanúsítvány:nincs megadva
- Villany:Van
- Víz:Van
- Gáz:nincs megadva
- Csatorna:Van
- Üzenetküldés
- Hívás


Hitel ajánlat
Ingatlan hirdetés leírása
4673/2: Dupla-komfortos ikerházi lakás eladó Veresegyházán!
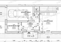
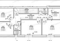
Kedves Érdeklődő!Veresegyház családi házas részén eladó egy építés alatt álló, belső kétszintes ikerház, nappali + 4 szobás elrendezéssel, dupla komforttal és garázzsal, 142 nm-es alapterülettel.
A két lakás külön bejáratú.
A lakáshoz egy kb. 50 Nm-es, felújított kisház is tartozik a telek végében.
Korszerű műszaki tartalom (hőszivattyú, padlófűtés, 3 rétegű nyílászárók), választható burkolatok, várható átadás kulcsrakész állapotban.
Állami támogatások és kedvezményes hitelek igényelhetők, kiváló közlekedéssel.
Azonosító: 4673/2 FIX 3% lakáshitelre megvehető

