Eladó iroda - Budapest VIII. kerület
- INGYENES HIRDETÉS FELADÁS
Ingatlan adatai
- Eladó vagy kiadó:Eladó
- Település:Budapest VIII. kerület
- Kategória:Iroda
- Alkategória:Irodaház
- Alapterület:3158 m2
- Csere is:Nem
- Hirdető:Cég
- Élő videón megtekinthető:Nem
- Állapot:nincs megadva
- Hány szintes az ingatlan:nincs megadva
- Hányadik emeleti:nincs megadva
- Parkolási lehetőség:nincs megadva
- Őrzött parkoló:nincs megadva
- Bútorozottság:nincs megadva
- Fényviszony:nincs megadva
- Tájolás:nincs megadva
- Kilátás:nincs megadva
- Internet:nincs megadva
- Klíma:nincs megadva
- Akadálymentesített:nincs megadva
- Energiatanúsítvány:nincs megadva
- Kapcsolatfelvétel

Papp Gabriella
+36-(30)-815-2511
Mondd meg a hirdetőnek, hogy a megveszLAK-on találtad a hirdetést.
Hitel ajánlatok
Ingatlan hirdetés leírása
8. kerületben ELADÓ egy 80 %-ban megépült ingatlan. Az épület...
8. kerületben eladó egy 80 %-ban megépült ingatlan.
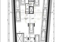
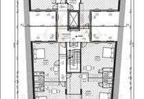
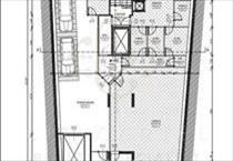
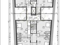
Az épület zártsorúan helyezkedik el. a tervezett épület 3 pinceszint + földszint + 7 emelet, magastető kialakítású.
A 3 db pinceszint megközelítését gépkocsival, autólifttel tervezték, a födémáttöréseit kihagyták és vasbeton körítő falát megépítették.
A -3 pinceszinten a teremgarázs 7 db gépkocsi tárolására alkalmas.
Földszintről indul a második lépcsőház az emeleti szintek felé. a földszint monolit vasbeton tartószerkezetű. Az általános emeleti szinteken (1-6) az ugyancsak monolit vasbeton tartószerkezet készen van. Az emeleti szintek a két lépcsőházon és a liften keresztül közelíthetők meg. a 6 emeletnél az utca felé már tető van kialakítva. a 7. emelet az utca felé tetőtéri szint, a belső udvarok felé teljes szint.
7. emelet felett három gépészeti felépítmény épült meg. a közművek már be vannak vezetve, új tulajdonosa eldöntheti, hogy mit szeretne kialakítani belőle, akár teljesértékű lakásokat egy - egy szinten vagy külön szobákat vizesblokkal rövid távú kiadásra, esetleg hotelnek / szállónak, gyógyászati központnak, cég központnak, iroda háznak is tökéletes választás.
Budapest forgalmas útjához közel található az üresen álló épület.
Az eladásra kínált, jelenleg használaton kívüli ingatlan 6 szintes + a tetőtér, ezenkívül 3 szinten gépjárművek részére parkolási lehetőség.
Ár: 1, 48 milliárd Ft Hitel.hu - Hasonlítsa össze a bankok lakáshitel ajánlatait
Tetszett ez az eladó Budapest VIII. kerületi iroda? Hívd fel a hirdetőt most, és tudj meg mindent erről az eladó irodáról! Ha gondolod nézelődj tovább az eladó iroda Budapest VIII. kerület oldal hirdetései között.
Az eladó irodák menüpontban további hirdetések között is böngészhetsz. Ha van kedved, akkor böngészhetsz a Papp Gabriella összes hirdetése között, vagy akár a/az CITY CARTEL BUDAPEST ÉS AGGLOMERÁCIÓ összes hirdetése között is.

