Eladó telek - Vácrátót
- INGYENES HIRDETÉS FELADÁS
Ingatlan adatai
- Eladó vagy kiadó:Eladó
- Település:Vácrátót
- Kategória:Telek
- Alkategória:Külterületi
- Alapterület:nincs megadva
- Telekterület:102508 m2
- Csere is:Nem
- Hirdető:Cég
- Élő videón megtekinthető:Nem
- Villany:Utcában
- Víz:Utcában
- Gáz:Utcában
- Csatorna:Utcában
- Kapcsolatfelvétel

Molnár Róbert
+36-(70)-716-9451
Mondd meg a hirdetőnek, hogy a megveszLAK-on találtad a hirdetést.
Hitel ajánlatok
Ingatlan hirdetés leírása
FEJLESZTÉSI TELEK VÁCRÁTÓTON ELADÓ! Jelenleg a közművesítés za...
Fejlesztési telek vácrátóton eladó! Jelenleg a közművesítés zajlik!
Vácrátót község Pest megyében, a Váci járásban, az Alföld északi részén található Veresegyházi-medencében fekszik.
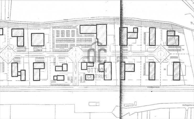
Övezeti besorolás: Gksz 1- kereskedelmi szolgáltató gazdasági terület
Beépítési mód: szabadonálló
Maximális beépíthetőség:30%
Minimális telekméret: 4000m2
Építménymagasság: 4-15 méter
AZ ár az éppen aktuálisan zajló közműfejlesztések függvényében VÁLTOZHAT!
1 Hektáros tömbönként szeretné eladni a tulajdonos
Új szabályozási terv elfogadása van folyamatban.
A jelenlegi szabályozás szerint belső feltáró út kialakítása szükséges amely lehetővé tenné a terület akár 25 telekre való felosztását.
Mindemellett az önkormányzat partner lenne abban is, hogy a feltáró út kikerüljön az építési szabályozásból és a terület egyben lenne hasznosítva, ily módon munkahelyteremtő beruházás valósulna meg. Hitel.hu - Hasonlítsa össze a bankok lakáshitel ajánlatait
Tetszett ez az eladó Vácrátóti telek? Hívd fel a hirdetőt most, és tudj meg mindent erről az eladó telekről! Ha gondolod nézelődj tovább az eladó telek Vácrátót oldal hirdetései között.
Az eladó telkek menüpontban további hirdetések között is böngészhetsz. Ha van kedved, akkor böngészhetsz a Molnár Róbert összes hirdetése között, vagy akár a/az Otthon Centrum Solutions Kft összes hirdetése között is.

