Eladó telek - Gyál
- INGYENES HIRDETÉS FELADÁS
Ingatlan adatai
- Eladó vagy kiadó:Eladó
- Település:Gyál
- Kategória:Telek
- Alkategória:Lakóövezeti
- Alapterület:nincs megadva
- Telekterület:1019 m2
- Csere is:Nem
- Hirdető:Cég
- Élő videón megtekinthető:Nem
- Villany:Telken belül
- Víz:Telken belül
- Gáz:Utcában
- Csatorna:Telken belül
- Kapcsolatfelvétel

Nyegrutz Tamás
+36-(30)-560-5587
Mondd meg a hirdetőnek, hogy a megveszLAK-on találtad a hirdetést.
Hitel ajánlatok
Ingatlan hirdetés leírása
REMEK LEHETŐSÉG GYÁLON, CSAK NÁLUNK, ÜRES ÉPÍTÉSI TELKEK! Gyál...
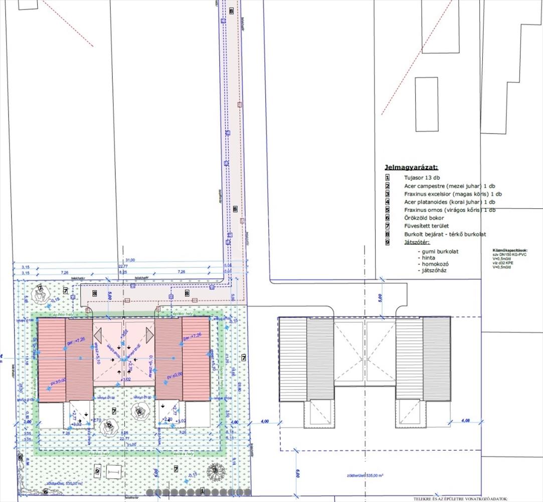
Remek lehetőség gyálon, csak nálunk, üres építési telkek! Gyálon az Egressy út - Venyige köz környezetében, eladásra kínálunk 2 db. Egymás mellett lévő építési telket egyben, vagy külön-külön is.
Igény szerint komplett engedélyeztetett tervekkel 2 db. Ikerház megépítésére, összesen 4 db. Lakásra!
A víz csatorna bevezetés folyamatban és az elektromos órafogadó kiépítés szintén folyamatban + az eon hálózatfejlesztési hozzájárulás is benne van az árban!
Az áramot elviekben 2027. Májusában hozzák, erről írásos eon papírja is van a tulajdonosnak.
A telkek megközelíthetősége egy saját-privát nyeles részen lehetséges, amely 6 méter széles.
TELEKRE és az épületre vonatkozó ADATOK:
Építési övezet: Lke-1
TELEK területe: 1019, 00 m2
Beépíthető telek terület: 890, 00 m2
Telek nyélterülete: 129, 00 m2
Tervezett lakóépület beépített alapterülete: 264, 67 m2
Beépítési százalék: 264, 67/890, 00=0, 297382 - 29, 74%< 30, 00 %
ÉPÍTMÉNYMAGASSÁG :
Tervezett lakóépület építménymagassága: 4, 58 m < 5, 00 m
SZINTERÜLETI MUTATÓ:
Tervezett lakóépület szintterülete (264, 67+159, 52): 424, 19 m2
Szinterületi mutató: 424, 19 m2/1019, 00m2= 0, 4162 50%
A telkek eladási ára darabonként: 54, 9 MFt. /Db.
Információk szerint, az Egressy út teljes felújítása-kiszélesítése-átépítése 2028-ban várható.
Az ingatlan részletes ismertetése és bemutatása előre egyeztetett időpontban lehetséges, melyet nagyon rugalmasan kezelünk, akár hétvégén is.
További kérdéseivel kapcsolatban várom a jelentkezését.
Amennyiben Önnek a vásárláshoz szüksége lenne hitelre, babaváró kölcsönre, lakástakarékra, stb. , Kezdeményezheti a kapcsolatfelvételt bankfüggetlen hitelügyintézőinkkel, teljesen DÍJMENTESEN.
Közel 25 év szakmai tapasztalattal rendelkezem, eladó vagy kiadó ingatlana értékesítése vagy bérbeadása esetén, készséggel állok az Ön rendelkezésére is, keressen bizalommal. Hitel.hu - Hasonlítsa össze a bankok lakáshitel ajánlatait
Tetszett ez az eladó Gyáli telek? Hívd fel a hirdetőt most, és tudj meg mindent erről az eladó telekről! Ha gondolod nézelődj tovább az eladó telek Gyál oldal hirdetései között.
Az eladó telkek menüpontban további hirdetések között is böngészhetsz. Ha van kedved, akkor böngészhetsz a Nyegrutz Tamás összes hirdetése között, vagy akár a/az GDN Ingatlanhálózat összes hirdetése között is.

