Eladó telek - Siófok
- INGYENES HIRDETÉS FELADÁS
Ingatlan adatai
- Eladó vagy kiadó:Eladó
- Település:Siófok
- Kategória:Telek
- Alkategória:Lakóövezeti
- Alapterület:nincs megadva
- Telekterület:1041 m2
- Csere is:Nem
- Hirdető:Cég
- Élő videón megtekinthető:Nem
- Villany:nincs megadva
- Víz:nincs megadva
- Gáz:nincs megadva
- Csatorna:nincs megadva
- Kapcsolatfelvétel

Göcsei Gergő
+36-(70)-610-3925
Mondd meg a hirdetőnek, hogy a megveszLAK-on találtad a hirdetést.
Hitel ajánlatok
Ingatlan hirdetés leírása
Eladó ingatlan érvényes építési engedéllyel!
Siófokon, a Foki-hegy és az Ezüstpart határán, a Balatontól mindössze 500 méterre eladó egy 1041 m² területű ingatlan, „Lk” övezeti besorolással.
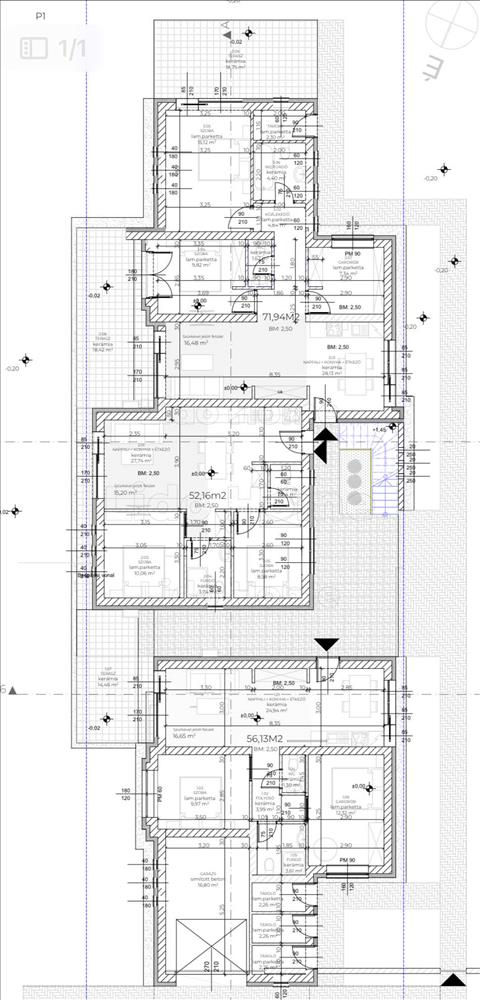
Az ingatlanhoz 6 lakás építésére szóló érvényes építési engedély és teljes tervdokumentáció tartozik.
Tervezett lakások adatai:
1. Lakás – Földszint
Nettó alapterület: 56, 13 m²
Terasz: 14, 46 m²
2. Lakás – Földszint
Nettó alapterület: 52, 16 m²
3. Lakás – Földszint
Nettó alapterület: 52, 16 m²
Terasz: 37, 17 m²
4. Lakás – Emelet
Nettó alapterület: 67, 21 m²
Terasz: 10, 77 m²
Loggia: 4, 62 m²
5. Lakás – Emelet
Nettó alapterület: 52, 16 m²
6. Lakás – Emelet
Nettó alapterület: 67, 92 m²
Terasz: 11, 56 m²
Loggia: 4, 34 m²
A környéken új építésű lakások esetében az átlagos piaci ár 1, 4 millió Ft/m².
A projekt kiváló lehetőség befektetők és fejlesztők számára, mivel az engedélyezett, teljes körű tervdokumentáció azonnali építkezést tesz lehetővé.
Lido Home - Ingatlanok egy életen át! Hitel.hu - Hasonlítsa össze a bankok lakáshitel ajánlatait
Tetszett ez az eladó Siófoki telek? Hívd fel a hirdetőt most, és tudj meg mindent erről az eladó telekről! Ha gondolod nézelődj tovább az eladó telek Siófok oldal hirdetései között.
Az eladó telkek menüpontban további hirdetések között is böngészhetsz. Ha van kedved, akkor böngészhetsz a Göcsei Gergő összes hirdetése között, vagy akár a/az Lido Home Balatonkenese összes hirdetése között is.

