Eladó új építésű ház - Veresegyház
- INGYENES HIRDETÉS FELADÁS
Ingatlan adatai
- Eladó vagy kiadó:Eladó
- Település:Veresegyház
- Kategória:Ház
- Alkategória:Sorház
- Alapterület:131 m2
- Telekterület:nincs megadva
- Csere is:Nem
- Hirdető:Cég
- Élő videón megtekinthető:Nem
- Építés éve:2025
- Szobaszám:3 + 1 fél
- Állapot:Új építésű
- Hány szintes az ingatlan:nincs megadva
- Tetőtér:nincs megadva
- Komfortosság:nincs megadva
- Pince:nincs megadva
- Parkolási lehetőség:nincs megadva
- Fűtés:Egyéb
- Bútorozottság:nincs megadva
- Fényviszony:nincs megadva
- Tájolás:nincs megadva
- Kilátás:nincs megadva
- Internet:nincs megadva
- Klíma:nincs megadva
- Akadálymentesített:nincs megadva
- Energiatanúsítvány:nincs megadva
- Villany:nincs megadva
- Víz:nincs megadva
- Gáz:nincs megadva
- Csatorna:nincs megadva
- Kapcsolatfelvétel

Tasnádi Judit
+36304688766
Mondd meg a hirdetőnek, hogy a megveszLAK-on találtad a hirdetést.
Ingatlan hirdetés leírása
Veresegyház egyik legkedveltebb, új építésű lakóövezetében, a ...
Veresegyház egyik legkedveltebb, új építésű lakóövezetében, a Revetek részén kínáljuk eladásra ezt a modern, kulcsrakész szélső sorházi otthont.
2026. Márciusi átadással.
A lakás nettó 131, 1 m² (földszint + tetőtér), plusz 18, 10 m²-es garázs, saját kertkapcsolattal és hangulatos terasszal amely további 6, 5 m2, emeleten két szobából nyíló nagy erkély 12 m2
Földszint –
amerikai konyhás nappali–étkező (34, 91 m²)
Előtér: 5, 78 m2
külön Wc: 2, 32 m2
Gardrób: 5, 58 m2
Szoba: 8, 19 m2
Kádas fürdő: 4, 81 m2
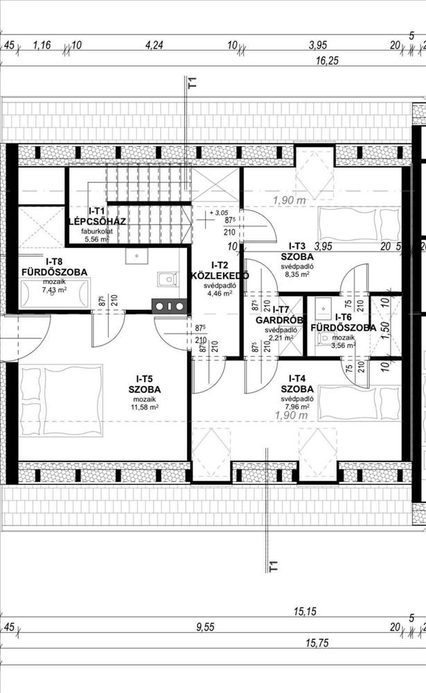
Tetőtér:
Lépcsőház: 5, 56 m2
Közlekedő: 4, 46 m2
1. Szoba: 8, 35 m2
2. Szoba: 7, 96 m2
3. Szoba: 11, 58 m3
Gardrób: 2, 21 m2
Fürdőszoba: 7, 43 m3
Fürdőszoba: 3, 56 m2
Külső területek
18, 10 m²-es garázs
terasz 6, 5 m2
tetőtéri erkélyek 12 m2
lokáció:
Csendes aszfaltos utcában található, új építésű házak közvetlen közelben,
közlekedés: Vasútállomás az utca végén.
Buszmegálló pár perc gyalog
Központ: Iskola, óvada, orvosi rendelő, 5 perc autóval
A projekt osztatlan közös tulajdon, de albetétesítve, saját kerthasználattal.
Ideális választás fiatal kisgyerekes családoknak vagy azoknak, akik modern, igényes új otthont keresnek.
Az ingatlan hitelezhető, az igénybe lévő támogatások is igénybe vehető
Megtekintés, előre egyeztetett időpontban bármikor.
Teljes körű és díjmentes hitel ügyintézéssel, biztosításkötéssel áll rendelkezésére szakértő kollégánk. Kérje személyre szabott ajánlatunkat! Ezúton tájékoztatjuk, hogy Ön mint érdeklődő, a hirdetésben megjelölt telefonszám felhívásával hozzájárul személyes adatai – így különösen neve és telefonszáma -, a hirdetést feladó általi - biztonságos és körültekintő - kezeléséhez, nyilvántartásához.
Az Immo1 Adatvédelmi aloldalán találja a teljes körű leírást.
Kulcsrakész átadás: 2026. Március FIX 3% lakáshitelre megvehető


