Eladó új építésű lakás - Ajka
- INGYENES HIRDETÉS FELADÁS
Ingatlan adatai
- Eladó vagy kiadó:Eladó
- Település:Ajka
- Kategória:Lakás
- Alkategória:Tégla
- Alapterület:98 m2
- Csere is:Nem
- Hirdető:Cég
- Élő videón megtekinthető:Nem
- Szobaszám:3 + 1 fél
- Állapot:Új építésű
- Hány szintes az ingatlan:Földszintes
- Komfortosság:nincs megadva
- Hányadik emeleti:Földszint
- Erkély:nincs megadva
- Lift:nincs megadva
- Parkolási lehetőség:Beállóban
- Fűtés:nincs megadva
- Bútorozottság:nincs megadva
- Fényviszony:nincs megadva
- Tájolás:nincs megadva
- Kilátás:nincs megadva
- Internet:nincs megadva
- Klíma:nincs megadva
- Akadálymentesített:nincs megadva
- Energiatanúsítvány:nincs megadva
- Villany:nincs megadva
- Víz:nincs megadva
- Gáz:nincs megadva
- Csatorna:nincs megadva
- Kapcsolatfelvétel

Major Dóra
+36-(20)-263-3244
Mondd meg a hirdetőnek, hogy a megveszLAK-on találtad a hirdetést.
Hitel ajánlatok
Ingatlan hirdetés leírása
Új építésű lakás saját telekkel! Ingatlanirodánk eladásra kín...
Új építésű lakás saját telekkel!
Ingatlanirodánk eladásra kínálja ezt az új építésű lakást Ajka-Bakonygyepesen!
- Az ingatlan egy 4 lakásos társasházban található.
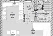
- Az ingatlan 98, 13 nm.
- a ház körbekerített, zárt telken helyezkedik el, ahol a lakásokhoz felszíni parkolóhely illetve saját telek is tartozik.
Műszaki adatok:
- a társasház földszinti teherhordó és térelhatároló falszerkezetei 30 cm vastagsággal, leier n+f típusú falazóblokkból készülnek, míg a válaszfalak 10 cm vastagsággal szintén leier válaszfallapokból.
- Födémszerkezet 20 cm vastag monolit vasbeton szerkezet xps kiegészítő hőszigeteléssel.
- Tető kialakítása lapostető.
- Homlokzati nyílászárók Spectus 70 típusú belül fehér, kívül antracit színű műanyagszerkezetek 2 rétegű hőszigetelő üvegezéssel, redőnnyel ellátva.
- a ház homlokzati szigetelése 15 cm vastag dryvit eps 80 hőszigetelő rendszerrel készül.
- a társasház fűtése padlófűtéses kialakítású hőszivattyús rendszer.
- Az ingatlan burkolatok, szaniterek, belső ajtók, konyhabútor nélkül kerül átadásra!
Kivitelezés várható befejezése: 2025. III. Negyedév
Amennyiben a veszprémi GDN Ingatlaniroda által kínált új építésű projekt, vagy bármely a kínálatunkban található ingatlan felkeltette érdeklődését forduljon hozzám bizalommal!
Ingatlanirodánk díjmentes, banksemleges hitelügyintézéssel, illetve ügyvédi tanácsadással is áll Ügyfeleink rendelkezésére! FIX 3% lakáshitelre megvehető

