Eladó új építésű lakás - Bicske
- INGYENES HIRDETÉS FELADÁS
Ingatlan adatai
- Eladó vagy kiadó:Eladó
- Település:Bicske
- Kategória:Lakás
- Alkategória:Tégla
- Alapterület:46 m2
- Csere is:Nem
- Hirdető:Cég
- Élő videón megtekinthető:Nem
- Szobaszám:2
- Állapot:Új építésű
- Hány szintes az ingatlan:2 szintes
- Komfortosság:nincs megadva
- Hányadik emeleti:Földszint
- Erkély:nincs megadva
- Lift:Nincs
- Parkolási lehetőség:Beállóban
- Fűtés:Házközponti egyedi mérővel
- Bútorozottság:nincs megadva
- Fényviszony:nincs megadva
- Tájolás:nincs megadva
- Kilátás:nincs megadva
- Internet:nincs megadva
- Klíma:nincs megadva
- Akadálymentesített:nincs megadva
- Energiatanúsítvány:nincs megadva
- Villany:nincs megadva
- Víz:nincs megadva
- Gáz:Telken belül
- Csatorna:Telken belül
- Kapcsolatfelvétel

Pap Éva Zsuzsanna
+36 70 681 1140
Mondd meg a hirdetőnek, hogy a megveszLAK-on találtad a hirdetést.
Hitel ajánlatok
Ingatlan hirdetés leírása
Bicske fejlődő belterületén, több lakótömbből álló, árnyas, fá...
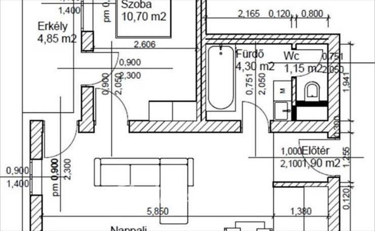
Bicske fejlődő belterületén, több lakótömbből álló, árnyas, fákkal benőtt lakópark harmadik épületének földszinti 6-os számú, 46, 55 nm -es lakása eladó 2026. Decemberi átadással. a lakás elosztása: 24, 9nm nappali, 3, 6nm konyha, 10, 7nm szoba, 4, 3nm fürdőszoba, 1, 15nm wc, 1, 9nm közlekedő, 4, 85nm loggia. a pinceszinten 8, 9 nm -es tároló és egy darab felszíni parkoló tartozik hozzá, melyek benne vannak az árban. a ház belső, kényelmes lépcsőházzal ellátott. Hőszigetelt falak, és nyílászárók kerültek beépítésre. a lakásban kiépített klíma, riasztó előkészítés, szerelvényezés történik. Saját mérőórákkal, gázfűtéssel ellátott. Közlekedése kiváló, M1-es autópálya, 1-es főút, vasútvonal elérhető távolságban. Gyors, szakszerű hitelügyintézéssel segítjük ingatlan vásárlását az OTP Bankon keresztül. További kérdéseivel, megtekintéssel kapcsolatban keressen bizalommal! FIX 3% lakáshitelre megvehető
Tetszett ez az eladó Bicskei új építésű 2 szobás tégla lakás? Hívd fel a hirdetőt most, és tudj meg mindent erről az eladó tégla lakásról! Ha gondolod nézelődj tovább az eladó lakás Bicske oldal hirdetései között. Ennek az eladó lakásnak az ára 59000000 Ft és mivel az alapterülete 46 négyzetméter, ezért az átlagos négyzetméterára 1282609 HUF/m2.
Az eladó lakások menüpontban további hirdetések között is böngészhetsz. Ha van kedved, akkor böngészhetsz a Pap Éva Zsuzsanna összes hirdetése között, vagy akár a/az Érd Bajcsy-Zsilinszky út 160 - OTP Ingatlanpont Iroda összes hirdetése között is.

