Eladó újszerű állapotú lakás - Budapest II. kerület
- INGYENES HIRDETÉS FELADÁS
Ingatlan adatai
- Eladó vagy kiadó:Eladó
- Település:Budapest II. kerület
- Kategória:Lakás
- Alkategória:Tégla
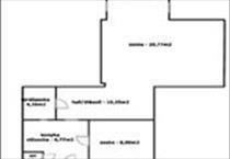
- Alapterület:60 m2
- Csere is:Nem
- Hirdető:Cég
- Élő videón megtekinthető:Nem
- Szobaszám:1 + 1 fél
- Állapot:Újszerű, kitűnő
- Hány szintes az ingatlan:Földszintes
- Komfortosság:nincs megadva
- Hányadik emeleti:4
- Erkély:nincs megadva
- Lift:Van
- Parkolási lehetőség:nincs megadva
- Fűtés:Gáz (cirko)
- Bútorozottság:nincs megadva
- Fényviszony:Napfényes
- Tájolás:nincs megadva
- Kilátás:nincs megadva
- Internet:nincs megadva
- Klíma:nincs megadva
- Akadálymentesített:nincs megadva
- Energiatanúsítvány:nincs megadva
- Villany:Van
- Víz:Van
- Gáz:nincs megadva
- Csatorna:Van
- Közös költség:18 000 Ft
- Kapcsolatfelvétel

Kocsis Adelina Szandra
+36-(30)-693-1503
Mondd meg a hirdetőnek, hogy a megveszLAK-on találtad a hirdetést.
Referencia szám: M313393
Hitel ajánlatok
Ingatlan hirdetés leírása
Eladó Lakás, Budapest 2. ker.
Scroll down for the English version.
Scrollen Sie nach unten für die deutsche Version.
A Víziváros egyik legkeresettebb részén eladó egy napfényes, 4. emeleti, 60 négyzetméteres lakás, amely idén teljes körű felújításon esett át, és igényesen berendezett állapotban várja új tulajdonosát.
Az ingatlan azonnal költözhető vagy bérbe adható, minden bútor és gépészet a vételár részét képezi, további ráfordítást nem igényel. Elrendezése jól használható, modern, letisztult terekkel.
A lakás kiváló elhelyezkedésű, a Margit körút és a Szász Károly utca felől is könnyen megközelíthető. a közlekedés kiemelkedő, a Millenáris Park, kulturális intézmények és hangulatos kávézók néhány perc sétára találhatók.
A környék népszerűsége és értékállósága hosszú távon is biztosított. a felújított lift és a rendezett körfolyosó hozzájárul az ingatlan értékének megőrzéséhez.
A műszaki tartalom is megbízható: a korábbi felújítás során a gáz- és villanyvezetékek cseréje megtörtént, a fűtést energiatakarékos kombi cirkó biztosítja. a külön wc növeli a komfortérzetet, a lakáshoz egy külön, 2 négyzetméteres tároló is tartozik.
Ideális választás befektetőknek és fiatal pároknak egyaránt, akik egy azonnal használható, minőségi otthont vagy jól kiadható ingatlant keresnek.
Egy valódi ékszerdoboz a Víziváros szívében, amely otthonként és befektetésként is megállja a helyét.
A vásárlás finanszírozásában az OTP kedvező hitelkonstrukcióival, CSOK +, valamint támogatott hitel lehetőségével, vagy akár a babaváró hitel ilyen célra történő felhasználásával tud segíteni. Használja ki a lehetőséget, hogy kedvezőbb kamatozású OTP banki hitelhez juthat, ha az OTP Ingatlanpont kínálatából vásárol. Ingatlant kereső ügyfeleink részére szolgáltatásaink, valamint az ingatlanvásárlással és ingatlanfelújítással kapcsolatos hitelügyintézés ingyenes. Az adásvétel lebonyolításához korrekt ügyvédi közreműködést tudunk ajánlani.
Ha felkeltettem érdeklődését, keressen bizalommal akár hétvégén is.
A bright, fully renovated and furnished 60 square metre apartment on the 4th floor is offered for sale in one of the most sought-after parts of Víziváros.
The property is ready for immediate move-in or rental, with all furniture and technical equipment included in the purchase price. The layout is practical and well-designed, featuring clean, modern interiors.
The location is excellent, with access from both Margit Boulevard and Szász Károly Street. Public transport connections are outstanding, while Millenáris Park, cultural venues and cosy cafés are all within a short walking distance.
Thanks to the popularity and long-term value of the area, the property represents a stable investment. The renovated lift and well-maintained circular corridor contribute to preserving the building’s overall value.
From a technical perspective, gas and electrical wiring have been replaced during earlier renovations, and heating is provided by an energy-efficient combi boiler. a separate toilet adds everyday comfort, and a private 2 square metre storage unit belongs to the apartment.
An ideal choice for investors and young couples seeking a turnkey home or a high-yield rental opportunity.
A true gem in the heart of Víziváros, perfectly suited for both living and investment.
If this property has caught your interest, feel free to contact me with confidence, even at weekends.
In einem der begehrtesten Teile von Víziváros steht eine sonnige, im 4. Stock gelegene Wohnung mit 60 Quadratmetern Wohnfläche zum Verkauf, die in diesem Jahr vollständig renoviert und hochwertig möbliert wurde.
Die Wohnung ist sofort bezugsfertig oder vermietbar, sämtliche Möbel und technische Ausstattung sind im Kaufpreis enthalten. Die Raumaufteilung ist durchdacht, die Innenräume modern und klar gestaltet.
Die Lage ist ausgezeichnet, das Gebäude ist sowohl von der Margit körút als auch von der Szász Károly utca aus gut erreichbar. Die Verkehrsanbindung ist hervorragend, der Millenáris Park, kulturelle Einrichtungen und gemütliche Cafés liegen nur wenige Gehminuten entfernt.
Die Beliebtheit der Umgebung sorgt für langfristige Wertstabilität. Der renovierte Aufzug und der gepflegte Laubengang tragen zum Erhalt des Immobilienwertes bei.
Auch technisch ist die Wohnung gut aufgestellt: Gas- und Elektroleitungen wurden im Zuge früherer Renovierungen erneuert, die Beheizung erfolgt über eine energiesparende Kombitherme. Ein separates wc erhöht den Wohnkomfort, zusätzlich gehört ein eigener Abstellraum mit 2 Quadratmetern zur Wohnung.
Ideal für Kapitalanleger ebenso wie für junge Paare, die eine sofort nutzbare, hochwertige Immobilie suchen.
Ein echtes Schmuckstück im Herzen von Víziváros, perfekt als Zuhause oder Investition.
Wenn ich Ihr Interesse geweckt habe, kontaktieren Sie mich gerne vertrauensvoll - auch am Wochenende. Hitel.hu - Hasonlítsa össze a bankok lakáshitel ajánlatait

