Eladó új építésű lakás - Budapest III. kerület
- INGYENES HIRDETÉS FELADÁS
Ingatlan adatai
- Eladó vagy kiadó:Eladó
- Település:Budapest III. kerület
- Kategória:Lakás
- Alkategória:Tégla
- Alapterület:202 m2
- Csere is:Nem
- Hirdető:Cég
- Élő videón megtekinthető:Nem
- Szobaszám:4
- Állapot:Új építésű
- Hány szintes az ingatlan:Földszintes
- Komfortosság:nincs megadva
- Hányadik emeleti:Földszint
- Erkély:Van
- Lift:Nincs
- Parkolási lehetőség:Teremgarázsban
- Fűtés:Egyéb
- Bútorozottság:nincs megadva
- Fényviszony:Napfényes
- Tájolás:nincs megadva
- Kilátás:nincs megadva
- Internet:nincs megadva
- Klíma:nincs megadva
- Akadálymentesített:nincs megadva
- Energiatanúsítvány:nincs megadva
- Villany:Van
- Víz:Van
- Gáz:nincs megadva
- Csatorna:Van
- Kapcsolatfelvétel

Hitel ajánlatok
Ingatlan hirdetés leírása
Eladó Lakás, Budapest 3. ker.
*** Új építésű, napfényes, panorámás lakások Ürömhegyen ***
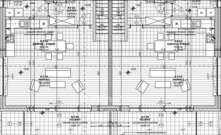
Megvételre kínálunk a III. kerület zöld övezetében, hegyoldalban, természet közelében, 8 darab csodálatos panorámával rendelkező, modern, hőszivattyús lakást. Az építés során 4 darab ház készült el, épületenként 2-2 lakással. a lakásokhoz saját kertrész és garázs is tartozik, nappali plusz 3 egész szobával és két fürdőszobával, mosdóval rendelkeznek.
Elosztás:
Pince: garázs
Földszint: nappali, konyha, étkező, kamra, gépészet és fürdő illetve egy panorámás terasz
Emelet: 3 hálószoba, fürdő és szintén panorámás terasz.
Szerkezet:
Az alapozás monolit vasbeton lemezalap, a földszint és emelet rész alatt lelépcsőzött monolit sávalap, illetve bekötött vasbeton alapgerenda szerkezetek. a pince falazat a lemezalapról indított, azzal vasalással összekötött vízzáró monolit vasbeton szerkezet, tartószerkezeti terv szerint. a földszinten általánosan 20cm monolit vasbeton fal, az emeleten pedig vázkerámia falazóblokkal kialakított 30 cm vastag falazat készül. a vasbeton fal előtt 20cm eps, a falazott fal előtt 15 cm eps hőszigetelés készül. a válaszfalak 10cm vastag vázkerámia szerkezetek. a födémek helyszíni monolit vasbeton szerkezetek, a pince fölött 25cm, a földszint és emelet fölött 22 cm vastagságban. Az erkélylemez 22cm vastag, a födémszerkezethez konzolosan hőhíd megszakítókkal csatlakoztatott vasbeton lemezkonzol.
Nyílászárók
Műanyag 3 rtg. Hőszigetelő üvegezésű bukó-nyíló és toló rendszerű nyílászárók. a földszinti mosdó, valamint a bejárati ajtó kivételével a nyílászárók rejtett redőnyszekrénnyel, valamint a nem földi érő teraszajtók lehúzható szúnyoghálóval szereltek.
Hideg-meleg burkolatok 10.000 Ft/nm -ig választhatók.
Belső ajtók 100.000 Ft/db-ig választhatók.
Szaniter csomagok: 800.000 Ft/lakás választható. Elvárt minimum minőségű szaniterek: Roca, Jika, Ravak, mosdók, kézmosók, wc csészék stb.
A lakásban honeywell miniplus fk06 típusú központi ivóvíz finomszűrők kerülnek beépítésre.
A tetőn napelem rendszert, valamint az öntözőrendszert építenek ki lakásonként.
A lakások fűtési, hűtési és használati meleg-víz igényének ellátását levegő-víz hőszivattyú biztosítja, mennyezet hűtés-fűtés, illetve padlófűtés kivitelezéssel.
A lakásokban wolf cwl-180 Excellent típusú mesterséges szellőztető berendezés kerül beépítésre.
Lakásonként normál hálózaton a tervezett villamos csatlakozási teljesítmény 3x20 A.
Internet kábelezés, riasztó és kamera rendszer előkészítést tartalmazza a vételár.
Átadás várható időpontja: 2024. IV. Negyedév
Az OTP Ingatlanpont, mint egyetlen közvetlen banki hátterű ingatlanközvetítő társaság teljes körű ügyintézéssel áll az eladók és a vevők rendelkezésére! a kínálatunkból választott ingatlan finanszírozásához minősített fogyasztóbarát, piaci és kedvezményes hitel- és lízingkonstrukciókat kínálunk (lakásvásárlási hitel, CSOK plusz, szabad felhasználású hitel, babaváró hitel, céges hitelek, pályázatok). Az adásvételi szerződés megkötéséhez igény szerint megbízható ügyvédi közreműködést biztosítunk, és segítséget nyújtunk az adásvételhez kapcsolódó egyéb ügyek intézéséhez. Ha az új ingatlana megvásárlásához a jelenlegi ingatlanát el kell adnia, abban is szívesen segítünk.
Referencia szám: m283931
Referencia szám: m283931-ML Hitel.hu - Hasonlítsa össze a bankok lakáshitel ajánlatait
Tetszett ez az eladó Budapest III. kerületi új építésű 4 szobás tégla lakás? Hívd fel a hirdetőt most, és tudj meg mindent erről az eladó tégla lakásról! Ha gondolod nézelődj tovább az eladó lakás Budapest III. kerület oldal hirdetései között. Ennek az eladó lakásnak az ára 230000000 Ft és mivel az alapterülete 202 négyzetméter, ezért az átlagos négyzetméterára 1138614 HUF/m2.
Az eladó lakások menüpontban további hirdetések között is böngészhetsz. Az összes eladó budapesti lakás hirdetést tartalmazó oldalon tudsz böngészni. Ha van kedved, akkor böngészhetsz a Takács Zsuzsanna összes hirdetése között, vagy akár a/az OTPip Budapest XIII. kerület Lehel utca 50 - OTP Ingatlanpont Iroda összes hirdetése között is.

