Eladó jó állapotú lakás Budapest III. kerület
| Kedvencbe | Megosztás | Árfigyelő |
| Kedvezményes lakáshitel ajánlatok | ||
| 326 000 000 HUF | ||
Ingatlan adatai
- Eladó vagy kiadó:Eladó
- Település:Budapest III. kerület
- Kategória:Lakás
- Alkategória:Tégla
- Alapterület:155 m2
- Csere is:Nem
- Hirdető:Cég
- Élő videón megtekinthető:Nem
- Szobaszám:3 + 1 fél
- Állapot:Jó állapotú
- Hány szintes az ingatlan:3 szintes
- Komfortosság:nincs megadva
- Hányadik emeleti:Földszint
- Lift:Nincs
- Parkolási lehetőség:Teremgarázsban
- Fűtés:Gáz (cirko)
- Bútorozottság:nincs megadva
- Fényviszony:nincs megadva
- Tájolás:nincs megadva
- Kilátás:nincs megadva
- Internet:nincs megadva
- Akadálymentesített:nincs megadva
- Energiatanúsítvány:nincs megadva
- Villany:nincs megadva
- Víz:nincs megadva
- Gáz:nincs megadva
- Csatorna:nincs megadva
- Üzenetküldés
- Hívás


Hitel ajánlat
Ingatlan hirdetés leírása
Panorámás családi fészek a Mátyáshegyen, 155 nm tér és nyugalo...
Panorámás családi fészek a Mátyáshegyen, 155 nm tér és nyugalom.Eladó egy földszinti, kertvárosi luxust kínáló lakás a III. kerület egyik legszebb részén, a Flóra utcában. Ideális választás azoknak a családoknak, akik értékelik a tágas tereket, a modern kényelmet és a kis lakóközösség privát szféráját.
A lakás legfontosabb paraméterei:
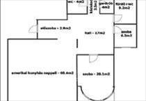
Alapterület: 155 nm lakótér + 40 nm-es, város feletti terasz + közvetlen kertkapcsolat.
Beosztás: 4 szoba (hatalmas, 68 nm-es amerikai konyhás nappali + külön nyíló szobák).
Állapot: 2017-ben teljes körűen felújítva (új nyílászárók, villamoshálózat, padlófűtés).
Komfort: Duplakomfort (két fürdőszoba), gardróbszoba, kényelmes 17 nm-es hall.
Extrák: Beépített konyhabútor, modern spotlámpás álmennyezet, egyedi mérőórák.
Miért ezt válassza a családjának?
Exkluzív lakóközösség: a 2000-ben épült házban mindössze 4 lakás található (szintenként egy), garantálva a csendet és a biztonságot.
Garázs az árban: Az ár tartalmazza a dupla mélygarázs-beállót is!
Fenntartás: Alacsony közös költség amiben a vízfogyasztás is benne van.
Lokáció: Csendes, biztonságos zsákutca a Mátyáshegy oldalában, közel a Remetehegyi és a Bécsi úthoz. a város feletti panoráma és a letisztult környezet egyedülálló életérzést biztosít.
Kiváló logisztika: a British International School közvetlen közelében található. a Kolosy tér a 65-ös busszal percek alatt elérhető, ahonnan a fonódó villamoshálózat és a hév biztosít gyors eljutást a belvárosba.
Ez az ingatlan a nyugalom szigete, karnyújtásnyira a várostól és a legjobb iskoláktól.
Megtekintésért és további információért keressen bizalommal! Hitel.hu - Hasonlítsa össze a bankok lakáshitel ajánlatait

