Eladó új építésű lakás - Budapest XIII. kerület
- INGYENES HIRDETÉS FELADÁS
Ingatlan adatai
- Eladó vagy kiadó:Eladó
- Település:Budapest XIII. kerület
- Kategória:Lakás
- Alkategória:Tégla
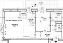
- Alapterület:52 m2
- Csere is:Nem
- Hirdető:Cég
- Élő videón megtekinthető:Nem
- Szobaszám:2
- Állapot:Új építésű
- Hány szintes az ingatlan:nincs megadva
- Komfortosság:nincs megadva
- Kertkapcsolatos:Igen
- Hányadik emeleti:nincs megadva
- Erkély:Van
- Lift:Van
- Parkolási lehetőség:nincs megadva
- Fűtés:nincs megadva
- Bútorozottság:nincs megadva
- Fényviszony:nincs megadva
- Tájolás:DNY
- Kilátás:Kertre néző
- Internet:nincs megadva
- Klíma:nincs megadva
- Akadálymentesített:nincs megadva
- Energiatanúsítvány:nincs megadva
- Villany:Van
- Víz:Van
- Gáz:Van
- Csatorna:Van
- Kapcsolatfelvétel

Hitel ajánlatok
Ingatlan hirdetés leírása
SZERKEZETKÉSZ Projekt bemutatása A XIII. kerület legfrekventá...
SZERKEZETKÉSZ
Projekt bemutatása
A XIII. kerület legfrekventáltabb részén, közel az M3-as metró Göncz Árpád Városközponti megállójához (Árpád híd) és az 1-es villamoshoz, csendes mellékutcában kínálunk eladásra új építésű lakásokat, számos referenciával rendelkező, nagymúltú beruházó projektjében.
A lakások változatos méretűek: a stúdió lakástól a nagyteraszos, több szobásig minden típus megtalálható a házban. Mindegyikhez tartozik erkély vagy nagy méretű terasz. a földszinti lakások kertkapcsolatosak.
A társasház a jövő korának megfelelő, modern, hőszivattyús mennyezeti hűtés, -fűtéses rendszerű, lakásonként elkülönített szabályzókkal, ami minimális energiafelhasználást tesz lehetővé télen és nyáron egyaránt, minden tulajdonos számára. a technológiának köszönhetően a lakótereken belül nincs szükség külön fűtőtestekre, ami által a helyiségek berendezhetősége is optimális.
A beruházó rendkívüli rugalmassága lehetővé teszi minden vevő számára a belső kialakítás és beosztás változtatását is, így minden lakás teljesen személyre szabható.
Mind a környék infrastruktúrája, mind pedig a belváros közelsége biztosítja, hogy az itt lakók mindent elérjenek percek alatt: számos bevásárlási lehetőség, óvodák, iskolák, bevásárló központ, gyógyszertár, posta vagy játszótér, parkok vannak karnyújtásnyi távolságra.
A kiváló lokáció és az alacsony energiaigény miatt kiemelkedő az ingatlanok akár hosszú-, akár rövidtávú kiadhatósága is. Hitel.hu - Hasonlítsa össze a bankok lakáshitel ajánlatait
Tetszett ez az eladó Budapest XIII. kerületi új építésű 2 szobás tégla lakás? Hívd fel a hirdetőt most, és tudj meg mindent erről az eladó tégla lakásról! Ha gondolod nézelődj tovább az eladó lakás Budapest XIII. kerület oldal hirdetései között. Ennek az eladó lakásnak az ára 84354000 Ft és mivel az alapterülete 52 négyzetméter, ezért az átlagos négyzetméterára 1622192 HUF/m2.
Az eladó lakások menüpontban további hirdetések között is böngészhetsz. Az összes eladó budapesti lakás hirdetést tartalmazó oldalon tudsz böngészni. Ha van kedved, akkor böngészhetsz a Frimmel András összes hirdetése között, vagy akár a/az Otthon Centrum XIII. kerület - Béke Residence összes hirdetése között is.

