Eladó újszerű állapotú lakás Budapest XIX. kerület
| Kedvencbe | Megosztás | Árfigyelő |
| Kedvezményes lakáshitel ajánlatok | ||
| 114 000 000 HUF | ||
Ingatlan adatai
- Eladó vagy kiadó:Eladó
- Település:Budapest XIX. kerület
- Kategória:Lakás
- Alkategória:Tégla
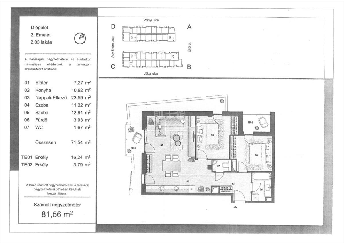
- Alapterület:82 m2
- Csere is:Nem
- Hirdető:Cég
- Élő videón megtekinthető:Nem
- Szobaszám:3
- Állapot:Újszerű, kitűnő
- Hány szintes az ingatlan:4 szintes
- Komfortosság:nincs megadva
- Hányadik emeleti:2
- Lift:Van
- Parkolási lehetőség:Garázsban
- Fűtés:nincs megadva
- Bútorozottság:nincs megadva
- Fényviszony:nincs megadva
- Tájolás:nincs megadva
- Kilátás:nincs megadva
- Internet:nincs megadva
- Akadálymentesített:nincs megadva
- Energiatanúsítvány:nincs megadva
- Villany:nincs megadva
- Víz:nincs megadva
- Gáz:nincs megadva
- Csatorna:nincs megadva
- Közös költség:46 500 Ft
- Üzenetküldés
- Hívás


Hitel ajánlat
Ingatlan hirdetés leírása
Modern Elegancia és Parkra Néző Panoráma a XIX. kerületben!
...
Modern Elegancia és Parkra Néző Panoráma a XIX. kerületben! Eladó a XIX. kerület kedvelt, csendes részén, az Zrínyi utcában egy 2023-as építésű, netto 72 m²-es, 3 szobás, prémium kategóriás tégla lakás. a lakáshoz 2 külön erkély tartozik. Az egyik erkély a nappali, és egy hálószobát körülölelve helyezkedik el, a másik egy különálló, a másik hálószobához tartozó.
Ha nem akarsz felújítással bajlódni, és egy fenntartható, modern otthont keresel, megtaláltad!
Miért ezt a lakást válaszd?
Korszerű gépészet: a jövő technológiája! Mennyezeti hűtés-fűtés!
Házközponti őszivattyús rendszer gondoskodik a kellemes hőmérsékletről télen-nyáron. Nincsenek zavaró fűtőtestek, csak tiszta terek és rendkívül alacsony rezsi.
Óriási Erkély: a 20 m²-es terasz igazi kültéri nappaliként funkcionál, ahonnan közvetlen kilátás nyílik a parkra – tökéletes helyszín a reggeli kávéhoz vagy esti kikapcsolódáshoz.
Elrendezés: Amerikai konyhás nappali + 2 külön nyíló hálószoba, külön fürdő és wc, ami ideális családoknak vagy Home Office-hoz is.
Felszereltség: Teljesen gépesített, beépített minőségi konyhabútor és modern műanyag nyílászárók.
Környék és Életérzés:
A társasház tiszta, rendezett, a lakóközösség pedig kimondottan kulturált. Bár a környék csendes, a lokáció verhetetlen:
1-2 perces séta: Buszmegállók, villamos, bankok, iskolák és bevásárlási lehetőségek.
Zöld környezet, mégis minden karnyújtásnyira a várostól.
A lakás tehermentes és azonnal költözhető!
Irányár: [114. 000. 000] Ft
Extrák: a lakáshoz saját mélygarázs beálló (13 nm) és ablakos tároló (4, 5 nm) is tartozik.
Irányár:
Tárolo:4. 500. 000 FT
Garázs: 6. 200. 000 FT
HÍVJON bizalommal, tekintsük meg együtt! Hitel.hu - Hasonlítsa össze a bankok lakáshitel ajánlatait

