- >>
- eladó ingatlanok
- >>
- eladó lakás
- >>
- eladó lakás Budapest XX. kerület
- >>
Eladó új építésű lakás - Budapest XX. kerület
| | |||
| Kedvencnek jelölöm | Elküldöm emailben | Megosztás | Szavazás |
| Kedvezményes lakáshitel ajánlatok | |||
| 71 000 000 HUF | |||
Ingatlan adatai
- Eladó vagy kiadó:Eladó
- Település:Budapest XX. kerület
- Kategória:Lakás
- Alkategória:Tégla
- Alapterület:46 m2
- Csere is:Nem
- Hirdető:Cég
- Élő videón megtekinthető:Nem
- Szobaszám:2
- Állapot:Új építésű
- Hány szintes az ingatlan:Földszintes
- Komfortosság:nincs megadva
- Hányadik emeleti:4
- Erkély:Van
- Lift:Van
- Parkolási lehetőség:Udvaron
- Fűtés:Házközponti
- Bútorozottság:nincs megadva
- Fényviszony:Napfényes
- Tájolás:nincs megadva
- Kilátás:nincs megadva
- Internet:nincs megadva
- Klíma:Van
- Akadálymentesített:nincs megadva
- Energiatanúsítvány:nincs megadva
- Villany:Van
- Víz:Van
- Gáz:nincs megadva
- Csatorna:Van
- Üzenetküldés
- Hívás

Referencia szám: M262202

Hitel ajánlat
Ingatlan hirdetés leírása
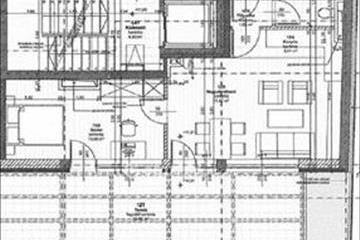
Eladó Lakás, Budapest 20. ker.
Budapest XX. kerületében, kertvárosi környezetben mégis jól megközelíthető helyen 22 lakásos, liftes, új építésű lakások várják tulajdonosaikat. a kínálatban 1+1 szobás, 2 szobás valamint nagyobb alapterületű, akár négy szobával rendelkező otthonok is megtalálhatóak. a lakások kialakításakor egyik fő szempont volt a praktikus elrendezés, a legtöbb lakáshoz erkély vagy terasz tartozik. a biztonságos, telken belüli parkolás felszíni beállók kialakításával lesz biztosítva, melynek megvásárlása opcionális. a változatos méretű és alaprajzú lakástípusok között az első lakást kereső fiatalok, vagy a nagycsaládosok is megtalálhatják álmaik otthonát. Tervezett átadás: 2024. I. Negyedév.m262202
Az OTP Bank az ingatlan megvételét szükség, igény esetén kedvezményes céges és lakossági lízing- hitelkonstrukció lehetőségeivel támogatja. Teljes körű ügyintézéssel állunk az eladók és a vevők rendelkezésére, az ügyintézés irodánkban kérhető. Hitelhez kapcsolódó CSOK ügyintézés, amennyiben az ügyfél és az ingatlan a feltételeknek megfelel. Az adásvételi szerződés megkötéséhez igény szerint megbízható ügyvédi közreműködést biztosítunk. Amennyiben felkeltettem érdeklődését, hívjon bizalommal! Ha az új ingatlana megvásárlásához a jelenlegi ingatlanát el kell adnia, abban is szívesen segítünk.
Referencia szám: m262202-ml Hitel.hu - Hasonlítsa össze a bankok lakáshitel ajánlatait

