Eladó átlagos állapotú lakás - Budapest XXI. kerület
- INGYENES HIRDETÉS FELADÁS
Ingatlan adatai
- Eladó vagy kiadó:Eladó
- Település:Budapest XXI. kerület
- Kategória:Lakás
- Alkategória:Tégla
- Alapterület:52 m2
- Csere is:Nem
- Hirdető:Cég
- Élő videón megtekinthető:Nem
- Szobaszám:2
- Állapot:Átlagos állapotú
- Hány szintes az ingatlan:Földszintes
- Komfortosság:nincs megadva
- Hányadik emeleti:Földszint
- Erkély:nincs megadva
- Lift:Nincs
- Parkolási lehetőség:nincs megadva
- Fűtés:Gáz (konvektor)
- Bútorozottság:nincs megadva
- Fényviszony:Napfényes
- Tájolás:DNY
- Kilátás:nincs megadva
- Internet:nincs megadva
- Klíma:nincs megadva
- Akadálymentesített:nincs megadva
- Energiatanúsítvány:nincs megadva
- Villany:Van
- Víz:Van
- Gáz:nincs megadva
- Csatorna:Van
- Közös költség:10 400 Ft
- Kapcsolatfelvétel

Hegedűs Tibor
+36-(70)-329-4529
Mondd meg a hirdetőnek, hogy a megveszLAK-on találtad a hirdetést.
Referencia szám: M321373
Hitel ajánlatok
Ingatlan hirdetés leírása
Eladó Lakás, Budapest 21. ker.
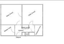
Eladó Budapest Csepel Erdősor városrészében egy kiváló elosztású, 52 nm-es földszintes lakás!
Ez a kedves otthon mindössze 15 percre található a Szent Imre tértől, és 40 percre a belvárostól, így kiváló közlekedéssel és kényelmes életvitellel várja új tulajdonosát.
A lakás két tágas szobából, konyhából, fürdőszobából, WC-ből, közlekedőből és loggiából áll, mindez jól kihasználható, praktikus elrendezéssel. a nyílászárókat 2019-ben korszerűsítették, biztosítva a jó hő- és hangszigetelést.
A társasház rendezett, karbantartott lépcsőházzal rendelkezik, és a panelprogram felújásának köszönhetően a közös költség alacsony, így hosszú távon is kedvező fenntartási költségekkel számolhat.
A környéken minden adott: közelben orvosi rendelő, óvoda, iskola, valamint bevásárlási lehetőségek. a Wittner Mária Parkban pedig zöld övezetben sétálhat, kikapcsolódhat.
Ez a lakás ideális választás lehet családalapítóknak, egyedülállóknak, kis családoknak vagy idősebb generáció számára egyaránt.
Az Otthon Start Hitel csak akkor vehető igénybe, ha a vásárló minimum 50% önrésszel rendelkezik.
Ingatlanjogász ügyvédi iroda vagyunk 25 éve.
CSOK-Hitel és jogi ügyintézés az irodában. Az OTP Csoport teljes körű ügyintézéssel áll az eladók és a vevők rendelkezésére! Cégünk digitális rendszerrel dolgozik már közel 6 éve, így akár online, személyes találkozó nélkül is zökkenőmentesen vásárolhatja meg a kiválasztott ingatlant! a kínálatunkból választott ingatlan finanszírozásához kedvezményes hitel- és lízing konstrukciót, állami támogatásokat, lakás-takarékpénztári megoldásokat kínálunk. Az adásvételi szerződés megkötéséhez igény szerint megbízható ügyvédi közreműködést biztosítunk, és segítséget nyújtunk az adásvételhez kapcsolódó ügyek intézésében is. Bővebb tájékoztatásért hívjon bizalommal akár hétvégén is!
FONTOS: Ha még nem volt ingatlan a nevén, vagy gyermekeinek szeretné megvásárolni ezt a kiváló adottságokkal rendelkező lakást
Referenciaszám: M321373
Referencia szám: m321373-ml FIX 3% lakáshitelre megvehető

