Eladó új építésű lakás - Siófok
- INGYENES HIRDETÉS FELADÁS
Ingatlan adatai
- Eladó vagy kiadó:Eladó
- Település:Siófok
- Kategória:Lakás
- Alkategória:Tégla
- Alapterület:82 m2
- Csere is:Nem
- Hirdető:Cég
- Élő videón megtekinthető:Nem
- Szobaszám:2
- Állapot:Új építésű
- Hány szintes az ingatlan:nincs megadva
- Komfortosság:nincs megadva
- Hányadik emeleti:nincs megadva
- Erkély:Van
- Lift:Van
- Parkolási lehetőség:nincs megadva
- Fűtés:nincs megadva
- Bútorozottság:nincs megadva
- Fényviszony:nincs megadva
- Tájolás:K
- Kilátás:Kertre néző
- Internet:nincs megadva
- Klíma:nincs megadva
- Akadálymentesített:nincs megadva
- Energiatanúsítvány:nincs megadva
- Villany:Van
- Víz:Van
- Gáz:Utcában
- Csatorna:Van
- Kapcsolatfelvétel

Hitel ajánlatok
Ingatlan hirdetés leírása
VÍZPARTI LUXUS LAKÁSOK SIÓFOKON! VÍZPARTI LUXUS NYARALÓK, LAKÁ...
Vízparti luxus lakások SIÓFOKON!
VÍZPARTI luxus nyaralók, lakások SIÓFOKON!
Vízparti új építésű lakást keres vagy befektetne Siófokon?
A társasház közvetlenül a vízparton épül.
13+40 Egyedi elrendezésű, egész évben lakható eladó apartmant kínálunk, 50-120 m2 közötti méretekben, hogy Ön biztosan megtalálja az igényeinek megfelelőt.
Átadás 2026 3. Negyedév
Kössék le fix áron most nyaralójukat!
Ezüstparti luxus minőségi lakások!
Balaton kedvelőinek kínáljuk eladásra.
Az újonnan épülő, luxus kategóriás társasház villa jellegű épület, amely közvetlenül a vízparton, az Ezüstpart legszebb partszakaszán épül, kis lakóközösség számára.
Az ingatlan 3 szintes, liftes téglaépület.
A lakás nm -be a fél terasz beszámolásra kerül.
Lakás:
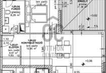
Elosztása:
nappali, amerikai konyha+ étkező, hálószoba, előszoba, fürdőszoba+ WC
Első emeleti lakás keleti panorámával a gyönyörű Balatonra!
Műszaki jellemzők:
-3 rétegű argongázzal kitöltött műanyag nyílászárók, központi lg Multi v-5 hőszivattyús rendszerével kiépített hűtés-fűtés, 12 cm vastag külső hőszigetelő rendszere nemcsak szép, de kivételesen energia-hatékony. Is.
- Az apartmanok hűtése-fűtése a mai kor követelményeinek megfelelően vrf inverteres levegő-levegő hőszivattyús rendszerrel kiépítve
- fokozott hangszigetelt választó falak
- a homlokzaton mészkőburkolat és színes műgyanta kötésű színezővakolat
- a teraszkorlátok rozsdamentes-szál-csiszolt oszlopok és kapaszkodók, ragasztott biztonsági üvegtáblákkal
- a szintek megközelítését a földszintről és a parkolókból 8 személyes lift biztosítja
- a folyosók, teraszok burkolata porcelán vagy gránitlap
Várható átadás: 2026 3. Negyedév
A hirdetésben szereplő képek látványtervek.
A beruházó nagy tapasztalatokkal rendelkező, megbízható, referencia épületek, lakások hosszú sorával rendelkezik.
Minden beruházását magas minőség, kiváló anyagok és kivitelezés jellemzi.
Ne hagyja ki ezt a kivételes lehetőséget, nem sok ilyen színvonalú projektet, lakást talál a vízpart mellett.
Hívjon minél előbb hogy ne maradjon le a biztos lehetőségről, hogy Öné legyen álmai nyaralója fix ÁRON!
Várom megkeresését a projekt lakásairól vagy más Balaton-parti ingatlanok érdeklődésére.
Balaton Siófok Ezüst part nyaraló új vízparti luxus fix ár megbízható beruházó medence
Projekt bemutatása
Vízparti új építésű lakást keres vagy befektetne Siófokon?
A társasház közvetlenül a vízparton épül.
13+40 Egyedi elrendezésű, egész évben lakható eladó apartmant kínálunk, 50-120 m2 közötti méretekben, hogy Ön biztosan megtalálja az igényeinek megfelelőt.
Átadás 2023 II. Félév I. Ütem
Kössék le fix áron most nyaralójukat!
Ezüstparti luxus minőségi lakások!
Balaton kedvelőinek kínáljuk eladásra.
Az újonnan épülő, luxus kategóriás társasház villa jellegű épület, amely közvetlenül a vízparton, az Ezüstpart legszebb partszakaszán épül, kis lakóközösség számára.
Az ingatlan 3 szintes, liftes téglaépület.
Műszaki jellemzők:
-3 rétegű argongázzal kitöltött műanyag nyílászárók, központi lg Multi v-5 hőszivattyús rendszerével kiépített hűtés-fűtés, 12 cm vastag külső hőszigetelő rendszere nemcsak szép, de kivételesen energia-hatékony. Is.
- Az apartmanok hűtése-fűtése a mai kor követelményeinek megfelelően vrf inverteres levegő-levegő hőszivattyús rendszerrel kiépítve
- fokozott hangszigetésű elválasztó falak
- a homlokzaton mészkőburkolat és színes műgyanta kötésű színezővakolat
- a teraszkorlátok rozsdamentes-szálcsiszolt oszlopok és kapaszkodók, ragasztott biztonsági üvegtáblákkal
- a szintek megközelítését a földszintről és a parkolókból 8 személyes lift biztosítja
- a folyosók, teraszok burkolata porcelán vagy gránitlap
Várható átadás: 2023, 3. Negyedév
A hirdetésben szereplő képek látványtervek.
A beruházó nagy tapasztalatokkal rendelkező, megbízható, referencia épületek, lakások hosszú sorával rendelkezik.
Minden beruházását magas minőség, kiváló anyagok és kivitelezés jellemzi.
Ne hagyja ki ezt a kivételes lehetőséget, nem sok ilyen színvonalú projektet, lakást talál a vízpart mellett. Hitel.hu - Hasonlítsa össze a bankok lakáshitel ajánlatait
Tetszett ez az eladó Siófoki új építésű 2 szobás tégla lakás? Hívd fel a hirdetőt most, és tudj meg mindent erről az eladó tégla lakásról! Ha gondolod nézelődj tovább az eladó lakás Siófok oldal hirdetései között. Ennek az eladó lakásnak az ára 194310000 Ft és mivel az alapterülete 82 négyzetméter, ezért az átlagos négyzetméterára 2369634 HUF/m2.
Az eladó lakások menüpontban további hirdetések között is böngészhetsz. Ha van kedved, akkor böngészhetsz a Horváthné Virág Tímea összes hirdetése között, vagy akár a/az Otthon Centrum Siófok - Petőfi sétány összes hirdetése között is.
További hirdetéseket találsz az eladó Balaton déli parti nyaralók között. Ha a teljes régió kínálata érdekel, nézd meg az eladó Balatoni nyaralók oldalt.

