Kiadó jó állapotú iroda Tata
| Kedvencbe | Megosztás | Árfigyelő |
| Kedvezményes lakáshitel ajánlatok | ||
| 300 000 HUF/Hó | ||
Ingatlan adatai
- Eladó vagy kiadó:Kiadó
- Település:Tata
- Kategória:Iroda
- Alkategória:Irodaházban
- Alapterület:240 m2
- Csere is:Nem
- Hirdető:Cég
- Élő videón megtekinthető:Nem
- Állapot:Jó állapotú
- Hány szintes az ingatlan:nincs megadva
- Hányadik emeleti:nincs megadva
- Parkolási lehetőség:Nincs
- Őrzött parkoló:nincs megadva
- Bútorozottság:nincs megadva
- Fényviszony:nincs megadva
- Tájolás:nincs megadva
- Kilátás:nincs megadva
- Internet:nincs megadva
- Akadálymentesített:nincs megadva
- Energiatanúsítvány:nincs megadva
- Üzenetküldés
- Hívás


Hitel ajánlat
Ingatlan hirdetés leírása
Kiadó Iroda, Tata, 240nm, 300000 Ft
Ipari-kereskedelmi területen emeleti külön bejáratú iroda kiadó!Azonnal költözhető! ! !
Kiadásra kínáljuk vasútállomáshoz közeli, jó megközelíthetőséggel bíró, irodaházban egy 240 nm-es emeleti irodahelyiséget.
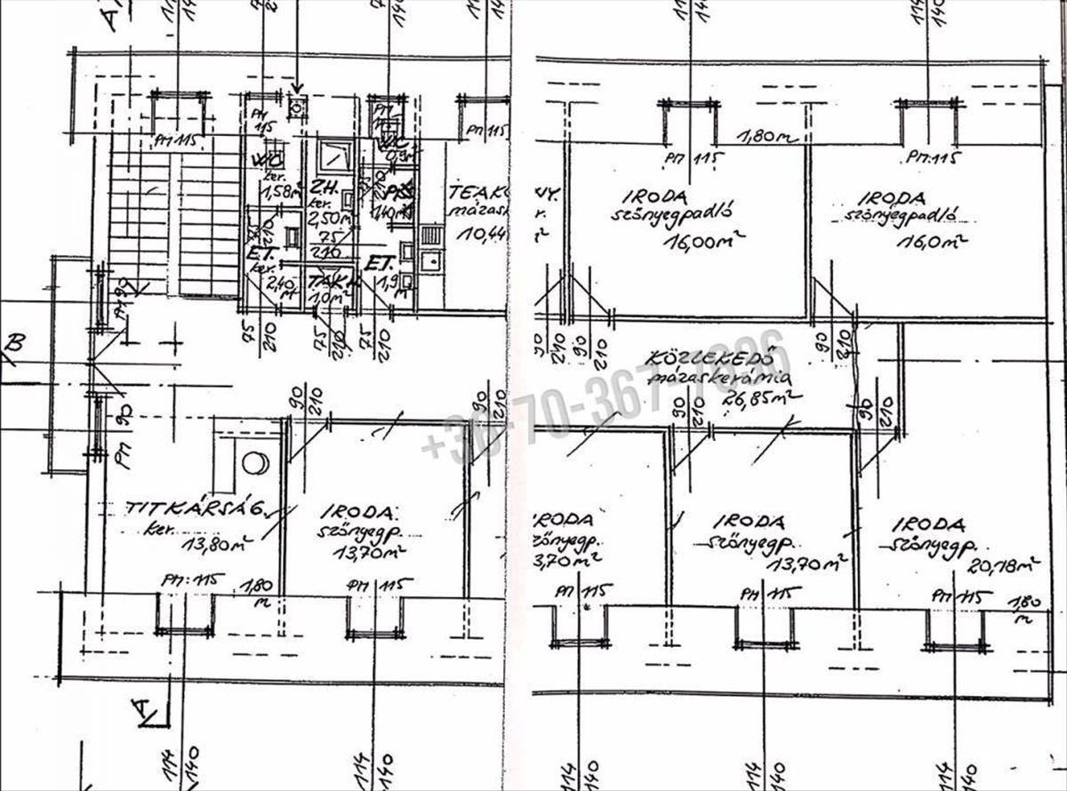
Az iroda kialakítása jelenleg két tárgyaló egy ügyvezetői iroda és egy nagyobb helység bemutatóteremnek vagy nagyobb létszámot befogadó irodának. Azonban válaszfalakkal további szeparált üzlethelységek is kialakíthatók. (Eredeti tervek az alaprajzok között találhatók)
Az üzletházban jelenleg építőanyag kereskedés működik.
Jellemzők
- jól megközelíthető –autópályához, 1-es úthoz, vasútállomáshoz közeli
- Folyamatos esztétikai és műszaki felújításokon átesett
- külön férfi, női mosdókkal -közöségi térrel, konyhával felszerelt
- több bejáratú, külön egységekre is bontható
Bérleti díj:300. 000Ft + Áfa +rezsi
2 havi kaució szükséges
Amennyiben az Ön vállalkozásának egy igényes, modern, jó helyen lévő irodát keres vagy ha a leírtak alapján felkeltettük az érdeklődését, akkor hívjon és megmutatjuk! Hitel.hu - Hasonlítsa össze a bankok lakáshitel ajánlatait

