Eladó új építésű ház Törökbálint
| Kedvencbe | Megosztás | Árfigyelő |
| Kedvezményes lakáshitel ajánlatok | ||
| 329 000 000 HUF | ||
Ingatlan adatai
- Eladó vagy kiadó:Eladó
- Település:Törökbálint
- Kategória:Ház
- Alkategória:Ikerház
- Alapterület:168 m2
- Telekterület:648 m2
- Csere is:Nem
- Hirdető:Cég
- Élő videón megtekinthető:Nem
- Építés éve:2025
- Szobaszám:5
- Állapot:Új építésű
- Hány szintes az ingatlan:Földszintes
- Tetőtér:nincs megadva
- Komfortosság:nincs megadva
- Parkolási lehetőség:nincs megadva
- Fűtés:Hőszivattyús
- Bútorozottság:nincs megadva
- Fényviszony:Napfényes
- Tájolás:D
- Kilátás:nincs megadva
- Internet:nincs megadva
- Akadálymentesített:nincs megadva
- Energiatanúsítvány:nincs megadva
- Villany:nincs megadva
- Víz:nincs megadva
- Gáz:nincs megadva
- Csatorna:nincs megadva
- Üzenetküldés
- Hívás

Herkely Dominika Zsuzs...
Mondd meg a hirdetőnek, hogy a megveszLAK-on találtad a hirdetést.
Referencia szám: HZ098365

Hitel ajánlat
Ingatlan hirdetés leírása
Eladó ház, Törökbálint
Merülj el a luxus világában Törökbálinton, TükörhegyenEladó egy páratlan eleganciát sugárzó, minden részletében átgondolt otthon, amely a nyugalom, a harmónia és a természet közelségének hangulatát ötvözi a modern megoldásokkal. a tervezés során a prémium anyagok és a legkorszerűbb technológia tökéletes összhangban találkoztak, hogy megteremtsék azt a kifinomult életteret, amely kompromisszumok nélkül szolgálja új tulajdonosát.
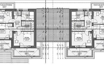
Az ingatlan kulcsrakész állapotban, 168 négyzetméteres alapterülettel és 150 négyzetméteres belső térrel vár. Két szinten biztosítja a luxus kényelmét, ráadásul egy 55 négyzetméteres beépíthető, fűthető padlástér is tartozik hozzá, amely meghitt, szeparált helyet kínál új lakóinak.
Különleges műszaki tartalom:
- Hőszivattyú: Cosmogas Silencia, 13 kW, háromfázisú rendszer
- Napelem előkészítés: alapszerelés és védőcsövezés benne van az árban
- Kandalló előkészítés: kémény, friss levegő bevezetés, kondenzvíz elvezetés
- Komforttechnológia: padlófűtés, mennyezet hűtés-fűtés, friss levegő keringtetés (Stiebel)
- Külső nyílászárók: műanyag, kívül-belül olíva és antracit szürke színben
- Tető: gránit árnyalatú cserép
- Homlokzat: halvány bézs, meleg tört fehér
- Belső ajtók: választhatók, az árban 100 ezer forintig + áfa
- Burkolatok: hideg és meleg felületképzés 10 ezer forintig + áfa négyzetméterenként
- Teraszok, garázsbejáró és külső autóbeállók burkolata szintén az árban (10 ezer forintig + áfa négyzetméterenként)
- Elektromos szerelvények: Legrand Valena Allure konnektorok és kapcsolók
- Gyengeáramú hálózat: cat6 minden szobában
- Lámpák bekötése benne van az árban (lámpatesteket a vevő biztosítja)
- Kerítés és utcatérkövezés szintén az ár részét képezi
- Kert: előkészített, rendezett terep a kertész számára
Földszint:
- Előtér
- Tágas nappali konyhával és étkezővel
- Kamra
- Hálószoba saját gardróbbal és fürdővel
- Háztartási helyiség
- Vendég mosdó
- Garázs
- Terasz
Emelet:
- Előtér
- Három háló, mindegyikhez saját terasz
- Fürdőszoba
- Tetőterasz
- Tetőtér: 55 négyzetméteres beépíthető, fűthető szint
- Garázs: Galériás kialakítás, extra pakolótérrel
Telek és környezet:
A 648 négyzetméteres telek teljes intimitást biztosít. Déli tájolásának köszönhetően a helyiségek napfényben fürdenek. a két lakóépület kizárólag a garázsnál kapcsolódik, masszív hangszigetelt fal választja el őket egymástól.
Átadás és fizetés:
Tervezett befejezés: 2025. Október 31.
Fizetési ütemezés: 35% szerződéskötéskor
Ez az ingatlan a stílus, a modern technológia és a természet közelségének tökéletes harmóniáját kínálja. Ide már csak költözni kell, és élettel megtölteni a tágas tereket.
Megtekintéshez egyeztessünk időpontot, rugalmasan alkalmazkodom. Hitel.hu - Hasonlítsa össze a bankok lakáshitel ajánlatait

