- >>
- eladó ingatlanok
- >>
- eladó ház
- >>
- eladó ház Albertirsa
- >>
Eladó újszerű állapotú ház - Albertirsa
| | |||
| Kedvencnek jelölöm | Elküldöm emailben | Megosztás | Szavazás |
| FIX 3% lakáshitelre megvehető | |||
| 69 900 000 HUF | |||
Ingatlan adatai
- Eladó vagy kiadó:Eladó
- Település:Albertirsa
- Kategória:Ház
- Alkategória:Családi ház
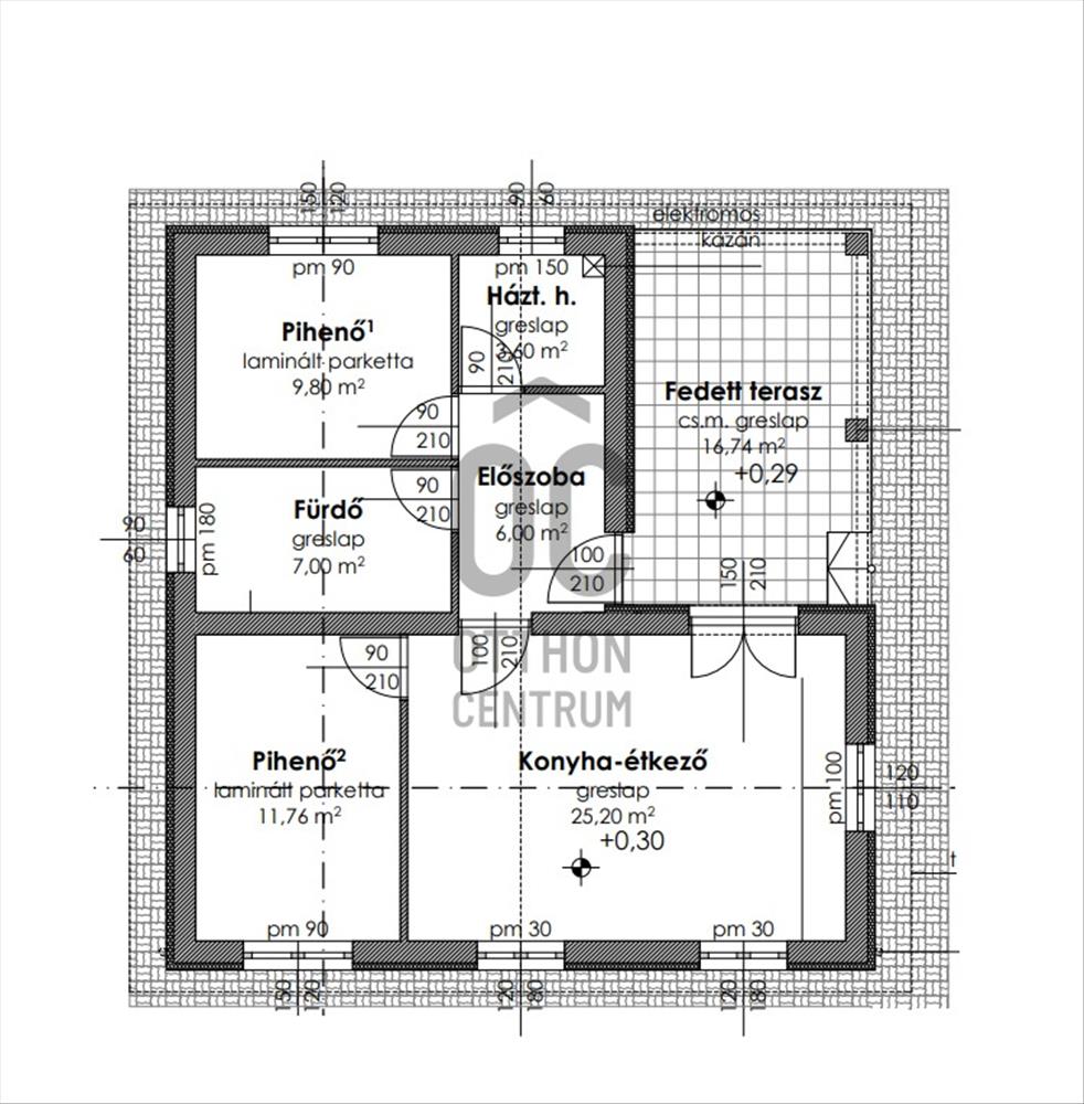
- Alapterület:83 m2
- Telekterület:496 m2
- Csere is:Nem
- Hirdető:Cég
- Élő videón megtekinthető:Nem
- Építés éve:2022
- Szobaszám:2
- Állapot:Újszerű, kitűnő
- Hány szintes az ingatlan:nincs megadva
- Tetőtér:nincs megadva
- Komfortosság:nincs megadva
- Parkolási lehetőség:nincs megadva
- Fűtés:Egyéb
- Bútorozottság:nincs megadva
- Fényviszony:nincs megadva
- Tájolás:DK
- Kilátás:nincs megadva
- Internet:nincs megadva
- Akadálymentesített:nincs megadva
- Energiatanúsítvány:nincs megadva
- Villany:Van
- Víz:Van
- Gáz:Utcában
- Csatorna:Nincs
- Üzenetküldés
- Hívás

Szoboszlai Katalin
Mondd meg a hirdetőnek, hogy a megveszLAK-on találtad a hirdetést.

Hitel ajánlat
Ingatlan hirdetés leírása
Albertirsán, csendes és nyugodt környezetben, a strandtól pár ...
Albertirsán, csendes és nyugodt környezetben, a strandtól pár perces sétára kínálunk eladásra egy 3 éve épült, modern kialakítású családi házat.Az ingatlan praktikus elrendezésű: tágas, világos nappali, két kényelmes hálószoba, valamint korszerű fürdőszoba és konyha várja új tulajdonosát. a 500 nm-es telek ideális pihenésre, kertészkedésre vagy akár kisebb játszótér, medence kialakítására is alkalmas.
A ház korszerű építési megoldásokkal készült, így alacsony fenntartási költséggel üzemeltethető, és hosszú távon biztosít kényelmes, otthonos életteret.
Főbb jellemzők:
- 3 éve épült, modern családi ház
- 2 hálószoba + nappali
- 500 nm-es telek
- Inverteres klíma
- Strand és központ közelsége
- Csendes, barátságos környék
Ez az ingatlan ideális választás lehet fiatal családoknak, pároknak vagy azoknak, akik nyugodt környezetben, mégis jó infrastruktúrával rendelkező településen keresik új otthonukat.
Bávebb információval és megtekintéssel kapcsolatban várom hívását!
Ez az ingatlan a "Felező csomag" megbízási portfólióhoz tartozik. Részletek az Otthon Centrum weboldalán. FIX 3% lakáshitelre megvehető

