Eladó jó állapotú ház - Albertirsa
- INGYENES HIRDETÉS FELADÁS
Ingatlan adatai
- Eladó vagy kiadó:Eladó
- Település:Albertirsa
- Kategória:Ház
- Alkategória:Családi ház
- Alapterület:83 m2
- Telekterület:496 m2
- Csere is:Nem
- Hirdető:Cég
- Élő videón megtekinthető:Nem
- Építés éve:2022
- Szobaszám:3
- Állapot:Jó állapotú
- Hány szintes az ingatlan:nincs megadva
- Tetőtér:nincs megadva
- Komfortosság:nincs megadva
- Pince:nincs megadva
- Parkolási lehetőség:nincs megadva
- Fűtés:Egyéb
- Bútorozottság:nincs megadva
- Fényviszony:nincs megadva
- Tájolás:DK
- Kilátás:nincs megadva
- Internet:nincs megadva
- Klíma:nincs megadva
- Akadálymentesített:nincs megadva
- Energiatanúsítvány:nincs megadva
- Villany:Van
- Víz:Van
- Gáz:Nincs
- Csatorna:Nincs
- Kapcsolatfelvétel

Szoboszlai Katalin
+36-(70)-469-3221
Mondd meg a hirdetőnek, hogy a megveszLAK-on találtad a hirdetést.
Hitel ajánlatok
Ingatlan hirdetés leírása
Albertirsán, csendes és nyugodt környezetben, a strandtól pár ...
Albertirsán, csendes és nyugodt környezetben, a strandtól pár perces sétára kínálunk eladásra egy 3 éve épült, modern kialakítású családi házat.
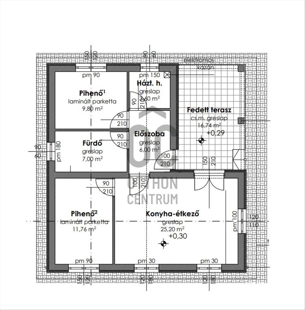
Az ingatlan alapterülete 63 négyzetméter, míg a telek mérete 496 négyzetméter, így bőséges teret biztosít a mindennapi élethez.
A házban két hálószoba található, amely tágas nappalival és egy amerikai konyhával rendelkezik, ami lehetővé teszi a családi együttlétek és baráti összejövetelek kényelmes lebonyolítását.
Az ingatlan jó állapotban van, így a felújításokkal nem kell időt eltölteni, azonnal költözhető.
A fürdőszoba modern, és a klímaberendezés biztosítja a kellemes hőmérsékletet a nyári hónapokban.
A tágas terasz, amely 16 négyzetméter nagyságú, ideális helyszín a reggeli kávézáshoz vagy a délutáni pihenéshez, miközben gyönyörködhet a környék panorámájában.
Albertirsa csendes, nyugodt környéke tökéletes választás, ha szeretne elvonulni a város zajától, miközben minden fontos szolgáltatás könnyen elérhető.
A település kiváló közlekedési lehetőségekkel rendelkezik, hiszen a közeli busz- és vonatmegállók révén Budapest és a környező városok könnyedén megközelíthetők.
A környék biztonságos, családias légkörrel rendelkezik, így ideális helyszín lehet gyermekes családok számára is.
A közeli iskolák, óvodák és boltok mind hozzájárulnak ahhoz, hogy az ingatlan környezete ideális legyen a mindennapi élethez.
A természet közelsége pedig lehetőséget ad a szabadidős tevékenységekre, legyen szó sétáról, kerékpározásról vagy piknikezésről.
A ház korszerű építési megoldásokkal készült, így alacsony fenntartási költséggel üzemeltethető, és hosszú távon biztosít kényelmes, otthonos életteret.
Az ingatlan nem hitelezhető, tulajdoni lapon üdülőként van feltüntetve.
Ha érdeklik az ingatlan részletei, vagy kérdései merülnének fel, ne habozzon bizalommal keresni! Szívesen állok rendelkezésére, hogy megválaszoljam kérdéseit, és segítsek Önnek megtalálni álmai otthonát vagy befektetési lehetőségét.
Bávebb információval és megtekintéssel kapcsolatban várom hívását! FIX 3% lakáshitelre megvehető
Tetszett ez az eladó Albertirsai jó állapotú 3 szobás családi ház? Hívd fel a hirdetőt most, és tudj meg mindent erről az eladó családi házról! Ha gondolod nézelődj tovább az eladó ház Albertirsa oldal hirdetései között. Ennek az eladó háznak az ára 64900000 Ft és mivel az alapterülete 83 négyzetméter, ezért az átlagos négyzetméterára 781928 HUF/m2.
Az eladó házak menüpontban további hirdetések között is böngészhetsz. Ha van kedved, akkor böngészhetsz a Szoboszlai Katalin összes hirdetése között, vagy akár a/az Otthon Centrum Albertirsa összes hirdetése között is.

