Eladó átlagos állapotú ház - Aszaló
- INGYENES HIRDETÉS FELADÁS
Ingatlan adatai
- Eladó vagy kiadó:Eladó
- Település:Aszaló
- Kategória:Ház
- Alkategória:Családi ház
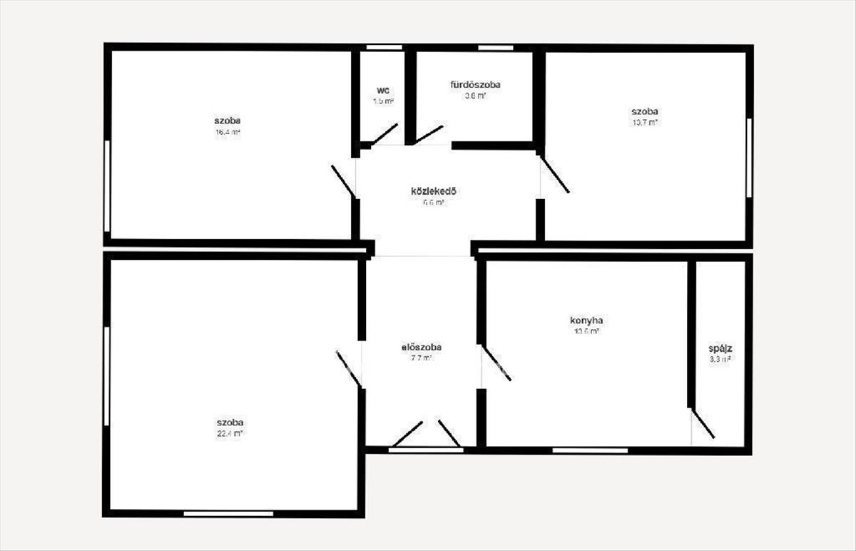
- Alapterület:89 m2
- Telekterület:914 m2
- Csere is:Nem
- Hirdető:Cég
- Élő videón megtekinthető:Nem
- Építés éve:1985
- Szobaszám:3
- Állapot:Átlagos állapotú
- Hány szintes az ingatlan:Földszintes
- Tetőtér:nincs megadva
- Komfortosság:nincs megadva
- Pince:nincs megadva
- Parkolási lehetőség:Udvaron
- Fűtés:Gáz (cirko)
- Bútorozottság:nincs megadva
- Fényviszony:Jó
- Tájolás:nincs megadva
- Kilátás:nincs megadva
- Internet:nincs megadva
- Klíma:nincs megadva
- Akadálymentesített:nincs megadva
- Energiatanúsítvány:nincs megadva
- Villany:nincs megadva
- Víz:nincs megadva
- Gáz:nincs megadva
- Csatorna:nincs megadva
- Kapcsolatfelvétel

Pleszkó Anikó
+36-(70)-313-3848
Mondd meg a hirdetőnek, hogy a megveszLAK-on találtad a hirdetést.
Referencia szám: M303718
Hitel ajánlatok
Ingatlan hirdetés leírása
Eladó Ház, Aszaló, Eladó átlagos állapotú ház - Aszaló
Eladó családi ház eladó Aszalón bővíthető, tehermentes, kiváló statikai állapotban.
Aszaló központi részén kínálok eladásra egy 89 m2-es, 3 szobás családi házat, tágas 914 m2-es telekkel. Az ingatlan 1985-ben épült, szilikát falazattal, a válaszfalak téglából készültek, jó statikai állapotban van, stabil alapokkal és szerkezettel.
Az ingatlan főbb jellemzői:
Lakóterület: 89 m2, 3 különálló szoba
Tető jó állapotú, pala borítással nincs beázás vagy szerkezeti probléma
Tetőtér beépíthető, akár két szoba is kialakítható, így igény szerint bővíthető
Vegyes tüzelésű kazán és gázcirkó is rendelkezésre áll? Többféle fűtési lehetőség
Meleg vizet villanybojler biztosít
Hagyományos fa nyílászárók
Lakható állapotú, de igény szerint felújítandó, így saját ízlésre formálható
Tehermentes gyors birtokba adás lehetséges
Telek és környezet:
914 m2-es síkvonalú, jól kihasználható telek
Kert, udvar, gazdálkodásra is alkalmas méret
Elhelyezkedés és infrastruktúra:
Iskola, óvoda, posta, orvosi rendelő, gyógyszertár, bolt és egyéb közintézmények néhány perc sétára elérhetőek
Kiváló közlekedés: az M30-as autópálya perceken belül elérhető, Miskolc autóval 15-20 perc
A szlovák határ közelsége miatt akár vállalkozásra, határ menti munkavállalásra is ideális választás
Az ingatlan kiváló ár-érték arányú lehetőség mindazok számára, akik nyugodt, de jól megközelíthető környezetben keresnek bővíthető, stabil szerkezetű családi otthont.
Banki háttérrel, teljes körű ügyintézéssel segítjük a vásárlást! CSOK Plusz falusi csok és lakáshitel ügyintézésben is támogatást nyújtunk díjmentesen! Érdeklődés esetén hivatkozzon m303718 azonosítási számra. FIX 3% lakáshitelre megvehető
Tetszett ez az eladó Aszalói átlagos állapotú 3 szobás családi ház? Hívd fel a hirdetőt most, és tudj meg mindent erről az eladó családi házról! Ha gondolod nézelődj tovább az eladó ház Aszaló oldal hirdetései között. Ennek az eladó háznak az ára 22900000 Ft és mivel az alapterülete 89 négyzetméter, ezért az átlagos négyzetméterára 257303 HUF/m2.
Az eladó házak menüpontban további hirdetések között is böngészhetsz. Ha van kedved, akkor böngészhetsz a Pleszkó Anikó összes hirdetése között, vagy akár a/az OTPip Miskolc Szemere Bertalan utca 20 - OTP Ingatlanpont Iroda összes hirdetése között is.

