Eladó újszerű állapotú ház Aszófő
| Kedvencbe | Megosztás | Árfigyelő |
| FIX 3% lakáshitelre megvehető | ||
| 139 000 000 HUF | ||
Ingatlan adatai
- Eladó vagy kiadó:Eladó
- Település:Aszófő
- Kategória:Ház
- Alkategória:Családi ház
- Alapterület:100 m2
- Telekterület:400 m2
- Csere is:Nem
- Hirdető:Cég
- Élő videón megtekinthető:Nem
- Építés éve:2023
- Szobaszám:4
- Állapot:Újszerű, kitűnő
- Hány szintes az ingatlan:Földszintes
- Tetőtér:nincs megadva
- Komfortosság:nincs megadva
- Parkolási lehetőség:Garázsban
- Fűtés:Elektromos
- Bútorozottság:nincs megadva
- Fényviszony:nincs megadva
- Tájolás:nincs megadva
- Kilátás:nincs megadva
- Internet:nincs megadva
- Akadálymentesített:nincs megadva
- Energiatanúsítvány:nincs megadva
- Villany:Telken belül
- Víz:Telken belül
- Gáz:Nincs
- Csatorna:Telken belül
- Üzenetküldés
- Hívás


Hitel ajánlat
Ingatlan hirdetés leírása
Aszófőn ÚJ ÉPÍTÉSŰ hőszivattyús 100 m2-es balatoni családi ház...
Aszófőn új építésű hőszivattyús 100 m2-es balatoni családi ház eladóAszófő csendes, rendezett utcájában kínálunk megvételre egy 2023-ban épült, korszerű műszaki tartalommal rendelkező, földszintes családi házat. Az ingatlan ideális választás mindazok számára, akik modern, fenntartható otthont keresnek a Balaton közvetlen közelében, természetközeli környezetben.
Az épület 100 m2 lakóterülettel és egy 30 m2-es, tágas terasszal rendelkezik, amely tökéletes helyszíne lehet a nyári reggeliknek és az esti beszélgetéseknek.
Ingatlan bemutatása
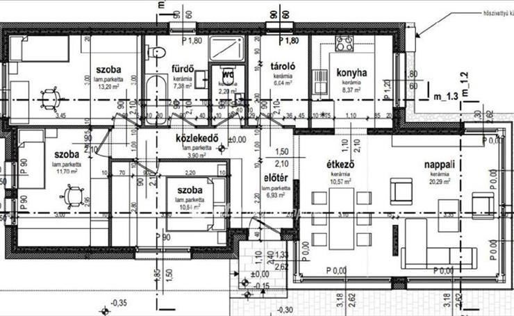
Az átgondolt elrendezés kényelmes, jól élhető tereket biztosít. a világos nappali közvetlen kapcsolatban áll a konyha? Étkező résszel, míg a három külön nyíló hálószoba biztosítja a nyugodt, privát életteret. a fürdőszoba mellett külön wc is kialakításra került, ami a mindennapi komfortot tovább növeli.
Főbb paraméterek
-Lakótér: 100 m2
-Terasz: 30 m2
-Telek: 400 m2
-3 külön nyíló hálószoba (10, 6? 13, 2 m2)
-Nappali: 20, 3 m2
-Konyha: 8, 4 m2
-Étkező: 10, 5 m2
-Fürdőszoba + külön WC
-Tárolóhelyiség
-Zárt udvari parkolás
Műszaki tartalom és energiahatékonyság
Az ingatlan hőszivattyús fűtési rendszerrel felszerelt, amely hosszú távon gazdaságos fenntartást biztosít. a nappaliban Midea hűtő-fűtő klíma gondoskodik az ideális hőmérsékletről minden évszakban. a 20 cm-es külső hőszigetelés és a 30 cm kőzetgyapot födémszigetelés kiváló energetikai paramétereket eredményez.
A háromrétegű nyílászárók és a telefonról vezérelhető motoros redőnyök a modern életvitel kényelmét szolgálják.
Lokáció és környezet
Aszófő a Balaton északi partján, a Tihanyi-félsziget lábánál található, mindössze néhány percre Balatonfüred városától. a település nyugodt, barátságos hangulatú, mégis kiváló infrastruktúrával rendelkező környezetben helyezkedik el.
Strandok és kikapcsolódási lehetőségek a közelben
-Sajkodi Strand? 3, 7 Km, kb. 8 Perc autóval
-Örvényesi Platán Szabadstrand? 3 Km, kb. 6 Perc autóval
-Tihanyi Apátság? 5, 9 Km
-Annagora Aquapark? 5, 9 Km, kb. 9 Perc
-Balatonfüredi Hajógyári Kikötő? 5, 7 Km
-Tagore sétány? 8 Km
A környék gazdag kulturális programokban, gasztronómiai élményekben és természeti szépségekben, így az ingatlan nem csupán lakóhely, hanem életstílus is egyben.
Kinek ajánljuk
Ideális választás családok számára állandó otthonnak, de kiváló lehetőség lehet balatoni nyaralóként vagy hosszú távon értékálló befektetésként is. a modern műszaki megoldások és a Balaton közelsége biztos alapot jelentenek.
Bizalom és biztonság
Az ingatlan az OTP Ingatlanpont irodai kínálatában érhető el, OTP bankcsoporti háttérrel, amely az adásvétel során biztonságos, átlátható ügyintézést és szakmai támogatást nyújt.
Amennyiben szeretné személyesen is megtekinteni ezt a korszerű, balatoni otthont, kérem, vegye fel velem a kapcsolatot, és egyeztessünk időpontot a bemutatásra. FIX 3% lakáshitelre megvehető

