Eladó újszerű állapotú ház - Bag
- INGYENES HIRDETÉS FELADÁS
Ingatlan adatai
- Eladó vagy kiadó:Eladó
- Település:Bag
- Kategória:Ház
- Alkategória:Családi ház
- Alapterület:148 m2
- Telekterület:1051 m2
- Csere is:Nem
- Hirdető:Cég
- Élő videón megtekinthető:Nem
- Építés éve:1980
- Szobaszám:5 + 1 fél
- Állapot:Újszerű, kitűnő
- Hány szintes az ingatlan:Földszintes
- Tetőtér:nincs megadva
- Komfortosság:nincs megadva
- Pince:nincs megadva
- Parkolási lehetőség:Teremgarázsban
- Fűtés:Gáz (cirko)
- Bútorozottság:nincs megadva
- Fényviszony:Napfényes
- Tájolás:nincs megadva
- Kilátás:nincs megadva
- Internet:nincs megadva
- Klíma:nincs megadva
- Akadálymentesített:nincs megadva
- Energiatanúsítvány:nincs megadva
- Villany:Telken belül
- Víz:Telken belül
- Gáz:Telken belül
- Csatorna:nincs megadva
- Kapcsolatfelvétel

Rácz Ildikó Éva
+36-(70)-393-4956
Mondd meg a hirdetőnek, hogy a megveszLAK-on találtad a hirdetést.
Referencia szám: M222487
Hitel ajánlatok
Ingatlan hirdetés leírása
Eladó Ház, Bag, Eladó újszerű állapotú ház - Bag
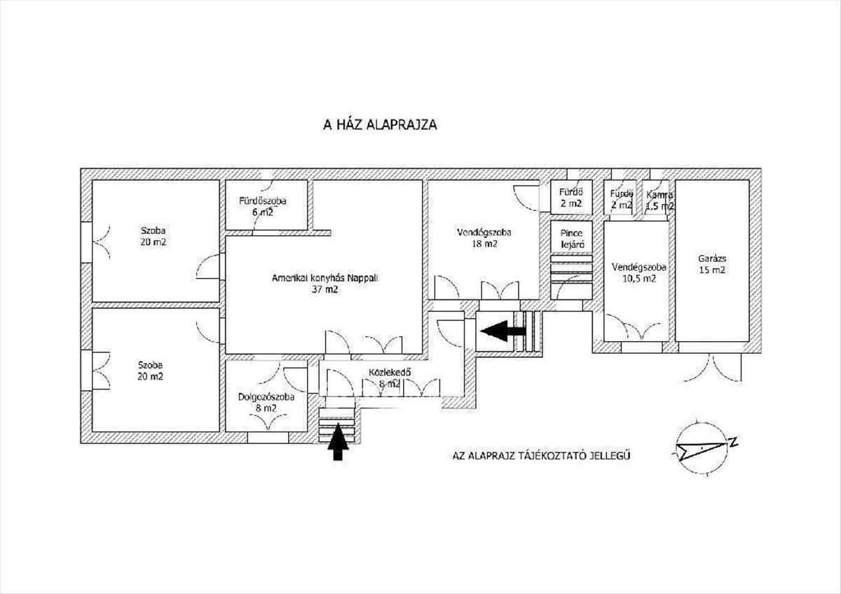
Megvételre kínálok egy 148 m2-es különleges lakóházat egy 1051 m2-es telken Bag (Pest Megye) Központi részéhez közel.
Ideális választás családi otthonnak nagyobb létszámú család részére, akár több generációnak is.
A lakóterület kényelmes, tágas beosztású, központban a nagy amerikai konyhás nappalival. Innen nyílnak a szobák és a fürdőszoba. a belső kialakítás igényes és harmonikus, szép színekkel és anyagokkal. Van két külön vendégszoba saját fürdővel. Az egyik kialakítása még folyamatban van.
A központifűtés gázcirkókazán, de van több fatüzelésű cserépkályha is a házban, amivel gazdaságosan biztosítható a kellemes hőmérséklet hideg időben.
A lakóházat teljesen felújították néhány éve. Új burkolatokat, hőszigetelt műanyag ablakokat, külső dryvit szigetelést is kapott az épület többek között.
Riasztórendszer, biztonsági ajtók és redőnyök védik a házat. További kényelmi funkció a távműködtetésű gépkocsibejárókapu.
Kívülről a díszkert a ház körül, a kocsifelhajtón díszburkolat egészíti ki a belső tér és a ház harmóniáját.
Az épület alatt 16 m2-es száraz poroszsüveg boltozatos pince van, továbbá egy 76 m2-es gazdasági épület kínál további lehetőségeket. Így összesen két garázs és további két kocsibeálló használható. a padlástér beépíthető, így tovább növelhető a használható terület.
Minden közmű be van vezetve, és van egy fúrt kút is.
Az ingatlan lokációja nagyon jó, a közelben megtalálható minden, amire szükség lehet. Az M3-as autópályán fél óra alatt elérhető Budapest is.
Amennyiben a hirdetés felkeltette érdeklődését, kérem hívjon a hét bármely napján!
Az OTP Ingatlanpont teljeskörű ügyintézéssel áll az eladók és a vevők rendelkezésére!
A kínálatunkból választott ingatlan finanszírozásához kedvezményes hitel- és pénzügyi konstrukciókat kínálunk.
Az adásvételi szerződés megkötéséhez igény szerint megbízható ügyvédi közreműködést és a kapcsolódó ügyek intézéséhez segítséget nyújtunk.
Referenciaszám: m222487
We can recommend the assistance of a reliable (English speaking) lawyer, if so requested and can also offer help at arranging the administrative matters related to the acquisition. If you wish to send an English language notification of your interest, please send a message thereof indicating your phone number (and/or e-mail address) so we can contact you without language difficulties.
Referencia szám: m222487 FIX 3% lakáshitelre megvehető
Tetszett ez az eladó Bagi újszerű állapotú 5 egész és 1 fél szobás családi ház? Hívd fel a hirdetőt most, és tudj meg mindent erről az eladó családi házról! Ha gondolod nézelődj tovább az eladó ház Bag oldal hirdetései között. Ennek az eladó háznak az ára 116000000 Ft és mivel az alapterülete 148 négyzetméter, ezért az átlagos négyzetméterára 783784 HUF/m2.
Az eladó házak menüpontban további hirdetések között is böngészhetsz. Ha van kedved, akkor böngészhetsz a Rácz Ildikó Éva összes hirdetése között, vagy akár a/az OTPip Gregoryan Artur összes hirdetése között is.

