Eladó felújítandó ház - Bakóca
- INGYENES HIRDETÉS FELADÁS
Ingatlan adatai
- Eladó vagy kiadó:Eladó
- Település:Bakóca
- Kategória:Ház
- Alkategória:Családi ház
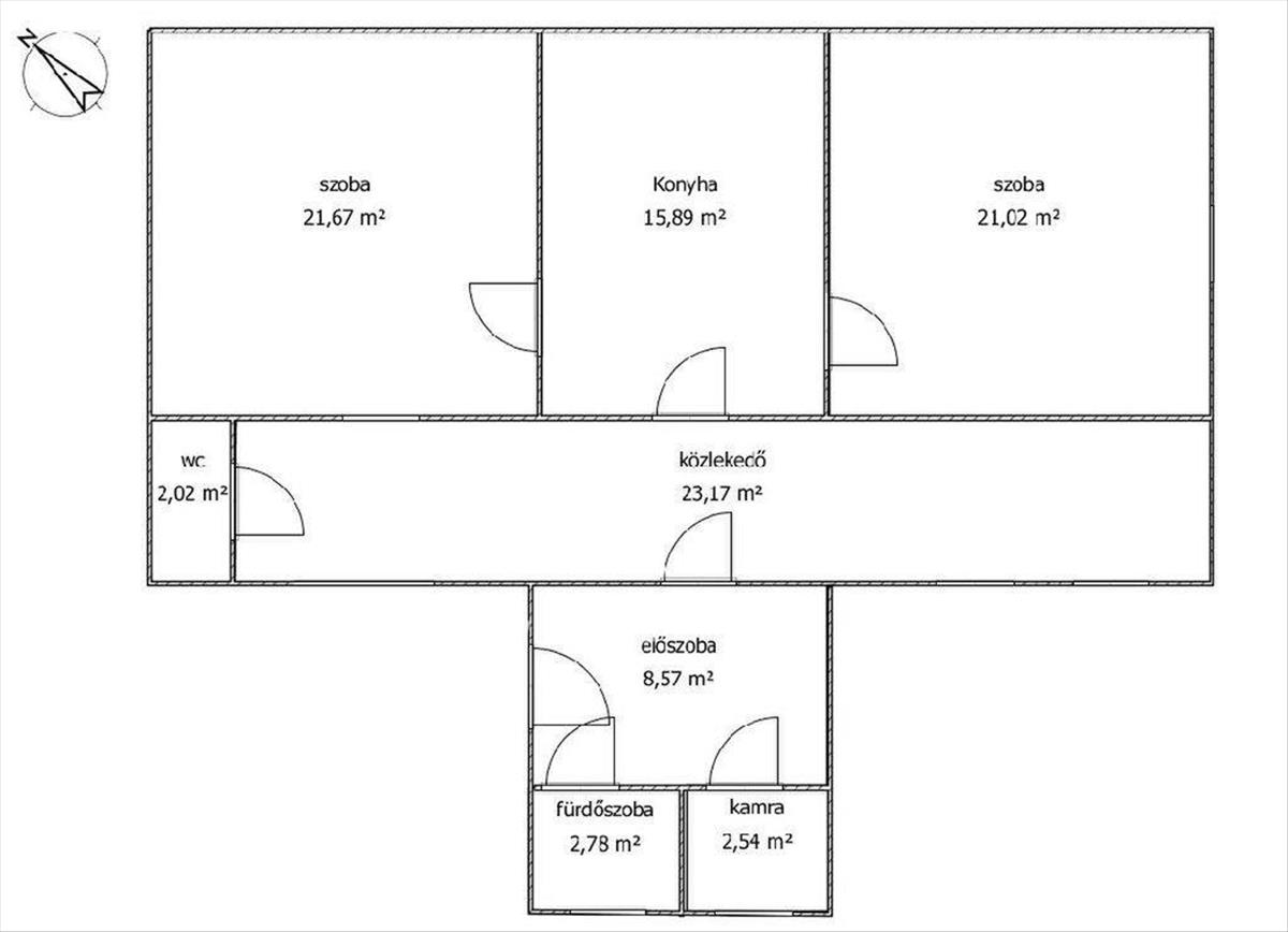
- Alapterület:98 m2
- Telekterület:2609 m2
- Csere is:Nem
- Hirdető:Cég
- Élő videón megtekinthető:Nem
- Építés éve:1970
- Szobaszám:2
- Állapot:Felújítandó
- Hány szintes az ingatlan:Földszintes
- Tetőtér:nincs megadva
- Komfortosság:nincs megadva
- Pince:nincs megadva
- Parkolási lehetőség:Udvaron
- Fűtés:Egyéb
- Bútorozottság:nincs megadva
- Fényviszony:Napfényes
- Tájolás:nincs megadva
- Kilátás:nincs megadva
- Internet:nincs megadva
- Klíma:nincs megadva
- Akadálymentesített:nincs megadva
- Energiatanúsítvány:nincs megadva
- Villany:Van
- Víz:Telken belül
- Gáz:Nincs
- Csatorna:Nincs
- Kapcsolatfelvétel

Vincze László György
+36-(20)-938-4141
Mondd meg a hirdetőnek, hogy a megveszLAK-on találtad a hirdetést.
Referencia szám: M323043
Hitel ajánlatok
Ingatlan hirdetés leírása
Eladó Ház, Bakóca, Eladó felújítandó ház - Bakóca
Oroszlótól 11 kilóméterre Bakócán eladó egy 1970-ben épült családi ház.
2 Szobás, 98 négyzetméter alapterületű, 2609 négyzetméteres lejtős telek tartozik hozzá.
Felújítandó állapotú. Víz az utcában van, Villany van. 3 Tartály van telepítve az udvarban a szennyíznek. Gáz nincs az egész faluban. Az új tulajdonosra vár a víz és a szennyvíz bekötése a házba. Az alaprajzon jelzett helyiségek szabadon változtathatók. Az épület statikailag rendben van. a melléképületekben állattárasra van lehetőség.
Referenciaszám: M323043
10500000 Ft
Referencia szám: m323043 FIX 3% lakáshitelre megvehető
Tetszett ez az eladó Bakócai felújítandó 2 szobás családi ház? Hívd fel a hirdetőt most, és tudj meg mindent erről az eladó családi házról! Ha gondolod nézelődj tovább az eladó ház Bakóca oldal hirdetései között. Ennek az eladó háznak az ára 10500000 Ft és mivel az alapterülete 98 négyzetméter, ezért az átlagos négyzetméterára 107143 HUF/m2.
Az eladó házak menüpontban további hirdetések között is böngészhetsz. Ha van kedved, akkor böngészhetsz a Vincze László György összes hirdetése között, vagy akár a/az OTPip Pécs Király utca 75 - OTP Ingatlanpont Iroda összes hirdetése között is.

