Eladó felújítandó ház - Balatonboglár
- INGYENES HIRDETÉS FELADÁS
Ingatlan adatai
- Eladó vagy kiadó:Eladó
- Település:Balatonboglár
- Kategória:Ház
- Alkategória:Családi ház
- Alapterület:570 m2
- Telekterület:1099 m2
- Csere is:Nem
- Hirdető:Cég
- Élő videón megtekinthető:Nem
- Építés éve:1983
- Szobaszám:12
- Állapot:Felújítandó
- Hány szintes az ingatlan:nincs megadva
- Tetőtér:nincs megadva
- Komfortosság:nincs megadva
- Pince:Nincs
- Parkolási lehetőség:nincs megadva
- Fűtés:Nincs
- Bútorozottság:nincs megadva
- Fényviszony:nincs megadva
- Tájolás:nincs megadva
- Kilátás:nincs megadva
- Internet:nincs megadva
- Klíma:nincs megadva
- Akadálymentesített:nincs megadva
- Energiatanúsítvány:nincs megadva
- Villany:nincs megadva
- Víz:nincs megadva
- Gáz:nincs megadva
- Csatorna:nincs megadva
- Kapcsolatfelvétel

Meiszter Andrea
+36-(70)-703-8489
Mondd meg a hirdetőnek, hogy a megveszLAK-on találtad a hirdetést.
Ingatlan hirdetés leírása
Befektetési lehetőség! Eladó nagy területű vízközeli épület B....
Kizárólag NÁLUNK!
A Lido Home Balatonboglár Ingatlaniroda megvételre kínálja Balaton part közvetlen közelében található ingatlant. - a felújítandó állapotú épülettel rendelkező ingatlan kiváló lehetőség befektetésre, több lehetőség is adott az ingatlan hasznosításához.
A lido home Balatonboglár ingatlaniroda által kínált balatonboglári INGATLANjellemzői:
- a hivatalosan "kivett irodaépület"-ként nyilvántartott ingatlan Balatonboglár főútja mellett, a Jankovich-telep településrészén helyezkedik el.
- Az ingatlantól 300 méterre nagy területen elhelyezkedő kellemes fekvésű szabad strand. -Város központ 1300 méterre, vasútállomás 1000 méterre található, a kikötő 1700 méter közúton.
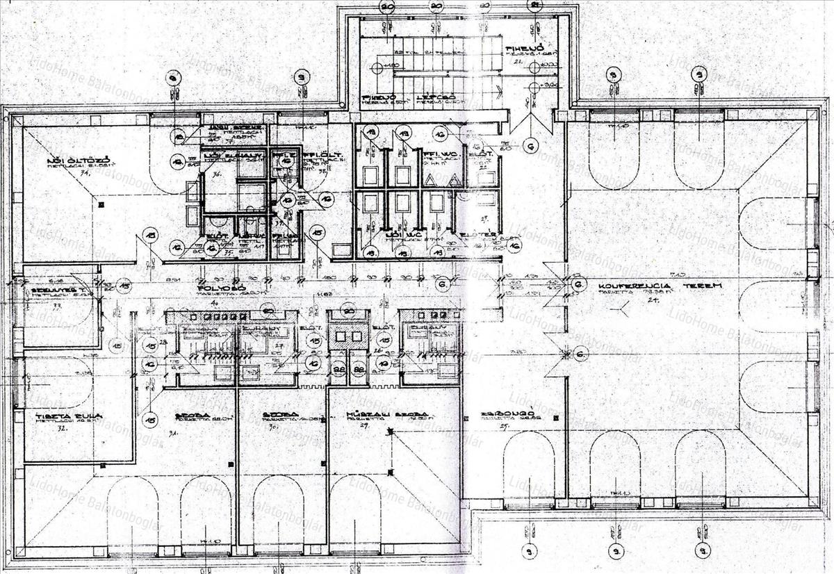
- 1099 m2-es telken az épület 1983-ban épült, tégla falazattal. -Két szinten 570 m2 került beépítésre.
- Az ingatlan hirdetett irányára nettó ár, az áfát nem tartalmazza.
- Állapota felújítandó, ugyanakkor szerkezetileg stabil, masszív téglaépület. - Villany és víz közművek bevezetve, csatorna a telekterületen belül található, gáz az ingatlan előtt az utcában.
- Az épület mindkét szintjén tágas terekkel és számos kisebb helyiséggel egyaránt rendelkezik. - a nagy méretű nyílászárók és üvegportálok révén az épület belseje világos és tágas hatású.
- Kialakítása végett kiválóan alkalmas üzleti beruházásra. Elsősorban társasháznak, apartmanháznak, de panziónak, üzletháznak is átalakítható.
- Parkolás a telken belül, az épület mellett megoldható.
- Az ingatlan 1 tulajdonossal rendelkezik, per- igény és tehermentes. Előzetes egyeztetés után személyesen is megtekinhető, bejárható.
- Hirdető kollégánk az ingatlanhoz teljes dokumentációval rendelkezik, cégünk a vásárláshoz - amennyiben szükséges - hitel, építészeti-kivitelezési és biztosítási tanácsokkal is szolgálhat.
Amennyiben a lido home által kínált balatonboglári ingatlan, vagy bármely a kínálatunkban található ingatlan felkeltette érdeklődését, hívjon bizalommal a megadott telefonszámon.
Vásárolna, de nincs rá keret? Kollégám díjmentes, bank semleges hitel ügyintézéssel áll rendelkezésére.
LIDO home - Ingatlanok egy életen át! FIX 3% lakáshitelre megvehető


