Eladó jó állapotú ház - Balatonfüred
- INGYENES HIRDETÉS FELADÁS
Ingatlan adatai
- Eladó vagy kiadó:Eladó
- Település:Balatonfüred
- Kategória:Ház
- Alkategória:Családi ház
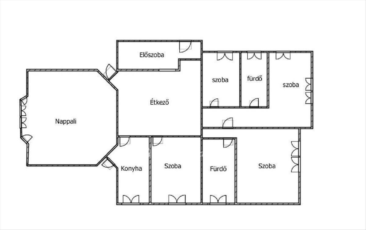
- Alapterület:535 m2
- Telekterület:1187 m2
- Csere is:Nem
- Hirdető:Cég
- Élő videón megtekinthető:Nem
- Építés éve:1995
- Szobaszám:11
- Állapot:Jó állapotú
- Hány szintes az ingatlan:3 szintes
- Tetőtér:nincs megadva
- Komfortosság:nincs megadva
- Pince:nincs megadva
- Parkolási lehetőség:Udvaron
- Fűtés:Gáz (cirko)
- Bútorozottság:nincs megadva
- Fényviszony:Napfényes
- Tájolás:D
- Kilátás:nincs megadva
- Internet:nincs megadva
- Klíma:nincs megadva
- Akadálymentesített:nincs megadva
- Energiatanúsítvány:nincs megadva
- Villany:Van
- Víz:Van
- Gáz:Van
- Csatorna:Van
- Kapcsolatfelvétel

Ranga Gabriella
+36-(70)-393-4916
Mondd meg a hirdetőnek, hogy a megveszLAK-on találtad a hirdetést.
Referencia szám: M312166
Hitel ajánlatok
Ingatlan hirdetés leírása
Eladó Ház, Balatonfüred
Prémium lehetőség Balatonfüreden a Fürdőtelepen.
Balatonfüred egyik legértékesebb és legkeresettebb városrészében, a strandok és a Tagore-sétány közvetlen közelében kínálunk megvételre egy különleges adottságokkal rendelkező, sokoldalúan hasznosítható ingatlant. Az 1995-ben épült épület ideális választás azok számára, akik saját balatoni rezidenciát keresnek, de befektetési szempontból is kiemelkedő lehetőséget látnak benne.
A 1187 m²-es, összközműves, két utcára nyíló telken egy szuterén + földszint + tetőtér kialakítású, masszív szerkezetű épület található. a tégla falazat, vasbeton födém és hőszigetelt homlokzat hosszú távon is értékálló megoldást biztosít. Az elektromos kapukkal ellátott bejáratokon keresztül 8 felszíni parkolóhely és garázs áll rendelkezésre.
A tetőtérben kialakított 6 vendégszoba jelenleg is szálláshelyként működik, így az ingatlan azonnal alkalmas vendégház üzemeltetésére. a műszaki és kényelmi felszereltség magas színvonalú:
gázcirkós központi fűtés puffertartállyal
levegő–hőszivattyús hűtő-fűtő rendszerek
két fűtött medence, elektromos fedéssel
közel 360 m² burkolt napozóterasz
kültéri hideg-meleg vizes zuhanyzók
szaletli, klímák, nagy teljesítményű wifi, kábeltévé
riasztó- és kamerarendszer, öntözőrendszer
ivóvíz minőségű fúrt kút, hangulatos cserépkályha
A földszinten egy külön bejáratú, 2 szobás apartman található saját konyhával és teraszkapcsolattal, valamint egy kb. 30 Fő befogadására alkalmas étkező, professzionálisan felszerelt konyhával. Emellett kazánház, vasalószoba és praktikus tárolók is helyet kaptak.
Az ingatlan belső terei igényesen kialakítottak, burkolatai változatosak, a nyílászárók redőnnyel felszereltek. Az állapot kiváló, az elrendezés logikus, jól működtethető – akár magáncélra, akár üzleti hasznosításra.
Ez a balatoni villa ritka lehetőség: tökéletes választás elegáns otthonnak, ugyanakkor stabil alapot nyújt egy sikeres turisztikai befektetéshez is, Balatonfüred egyik legjobb lokációjában.
720000000 Ft
Referencia szám: m312166 Hitel.hu - Hasonlítsa össze a bankok lakáshitel ajánlatait

