Eladó felújítandó ház Balatonfüred
| Kedvencbe | Megosztás | Árfigyelő |
| FIX 3% lakáshitelre megvehető | ||
| 130 000 000 HUF | ||
Ingatlan adatai
- Eladó vagy kiadó:Eladó
- Település:Balatonfüred
- Kategória:Ház
- Alkategória:Családi ház
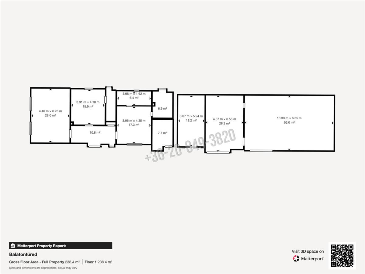
- Alapterület:205 m2
- Telekterület:2764 m2
- Csere is:Nem
- Hirdető:Cég
- Élő videón megtekinthető:Nem
- Építés éve:1930
- Szobaszám:2 + 1 fél
- Állapot:Felújítandó
- Hány szintes az ingatlan:nincs megadva
- Tetőtér:nincs megadva
- Komfortosság:Összkomfortos
- Pince:Van
- Parkolási lehetőség:Garázsban
- Fűtés:nincs megadva
- Bútorozottság:nincs megadva
- Fényviszony:nincs megadva
- Tájolás:nincs megadva
- Kilátás:nincs megadva
- Internet:nincs megadva
- Akadálymentesített:nincs megadva
- Energiatanúsítvány:nincs megadva
- Villany:Van
- Víz:Van
- Gáz:Utcában
- Csatorna:Van
- Üzenetküldés
- Hívás


Hitel ajánlat
Ingatlan hirdetés leírása
Eladó Családi ház, Balatonfüred, Belváros, 205nm, 130000000 Ft
Balatonfüredi kiváló elhelyezkedésű belvárosi ingatlan!Ez az eladó családi ház Veszprém megyében, Balatonfüred központjában található.
Elhelyezkedésének köszönhetően gyorsan és könnyedén elérhető minden fontos szolgáltatás -orvosi rendelő, posta, bank, óvoda, iskola, bevásárlóközpont, művelődési ház-, mégis rendkívül csendes, nyugodt légkör fogadja, hatalmas ősfák és mandulafák között.
A telek lenyűgöző csendes, intim hangulata, mérete különleges, autentikus vidéki otthont varázsolhat családok számára, de kiváló lehetőséget kínál üzleti tervek megvalósításához is, szálláshely, bemutatóterem, oktatási központ, stb. Elképzeléseik megvalósításához. Itt megtalálja a harmóniát a természettel!
A ház teljesen felújítandó, de építészetileg kiváló lehetőségeket kínál, többféle szempontból is ideális választás:
- mindazok számára, akik csendes, nyugodt környezetben szeretnének élni, ugyanakkor fontos számukra a városi infrastruktúra, a modern megoldásokkal ötvözött falusias hangulat;
- tökéletesen alkalmas lehet akár többgenerációs családoknak;
- ugyanakkor üzleti lehetőségnek is, hiszen akár magánrendelő, akár oktatási központ, vagy szálláshely üzemeltetés, stb.
A telek mérete és a helyi építési szabályzat lehetővé teszi a telek oszthatóságát, két utcafrontról való bejárat kialakítását. a telek beépíthetősége 40%!
A Balaton partja pár perc alatt megközelíthető! Az ingatlan és környéke minőségi életet, munka- és számos kikapcsolódási lehetőséget kÍnál.
Ha egy szép otthonra vágyik a Balaton közelében, keressen elérhetőségeim egyikén! FIX 3% lakáshitelre megvehető

