Eladó felújítandó ház - Balatonfűzfő
- INGYENES HIRDETÉS FELADÁS
Ingatlan adatai
- Eladó vagy kiadó:Eladó
- Település:Balatonfűzfő
- Kategória:Ház
- Alkategória:Családi ház
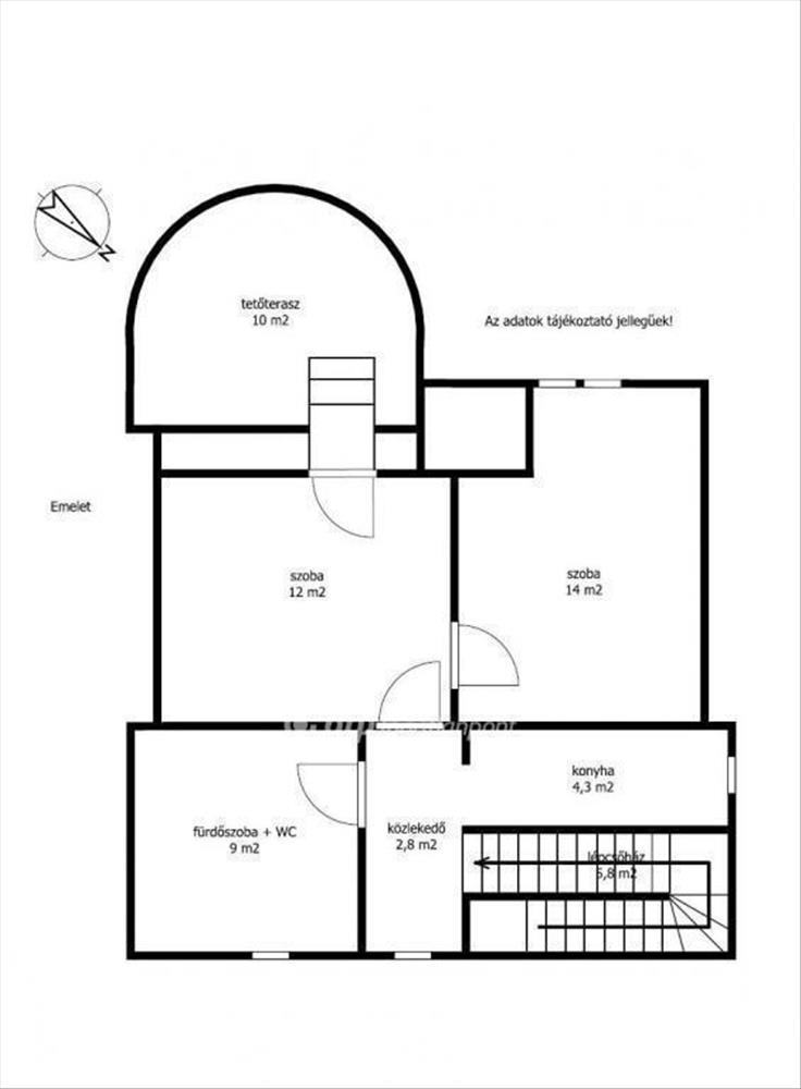
- Alapterület:140 m2
- Telekterület:1180 m2
- Csere is:Nem
- Hirdető:Cég
- Élő videón megtekinthető:Nem
- Építés éve:1920
- Szobaszám:5
- Állapot:Felújítandó
- Hány szintes az ingatlan:2 szintes
- Tetőtér:nincs megadva
- Komfortosság:nincs megadva
- Pince:nincs megadva
- Parkolási lehetőség:Udvaron
- Fűtés:Gáz (cirko)
- Bútorozottság:nincs megadva
- Fényviszony:Jó
- Tájolás:nincs megadva
- Kilátás:nincs megadva
- Internet:nincs megadva
- Klíma:nincs megadva
- Akadálymentesített:nincs megadva
- Energiatanúsítvány:nincs megadva
- Villany:nincs megadva
- Víz:nincs megadva
- Gáz:nincs megadva
- Csatorna:nincs megadva
- Kapcsolatfelvétel

Hitel ajánlatok
Ingatlan hirdetés leírása
Eladó Ház, Balatonfűzfő
Veszprém megyében, Balatonfűzfőn, 140 m2-es családi ház, 1. 180 m2-es telken eladó. Az ingatlan a település Fűzfőfürdő részén helyezkedik el, közel a Fövenyfürdő Strandhoz, a kikötőhöz és a parti sétányhoz. a 2 szintes, felújítandó ház összközműves, fűtése cirkó gázkazánnal, radiátor hőleadókkal megoldott, amit cserépkályhával lehet kiegészíteni. a régi villák hangulatát nyújtó ingatlan értékes része egy 8 m2-es pince, illetve egy 10 m2-es tetőterasz panorámával. a hatalmas kert egy része lejtős, értékét gyümölcsfák, melléképületek és zárt gépkocsibeállók növelik. a lakóingatlan és a telek számos lehetőséget kínál, alkalmas állandó lakhatásra vagy nyaralásra, illetve befektetési céllal kiadásra is. Bővebb információért keressen telefonon! FIX 3% lakáshitelre megvehető
Tetszett ez az eladó Balatonfűzfői felújítandó 5 szobás családi ház? Hívd fel a hirdetőt most, és tudj meg mindent erről az eladó családi házról! Ha gondolod nézelődj tovább az eladó ház Balatonfűzfő oldal hirdetései között. Ennek az eladó háznak az ára 95000000 Ft és mivel az alapterülete 140 négyzetméter, ezért az átlagos négyzetméterára 678571 HUF/m2.
Az eladó házak menüpontban további hirdetések között is böngészhetsz. Ha van kedved, akkor böngészhetsz a Raj Róbert összes hirdetése között, vagy akár a/az OTPip Székesfehérvár Várkörút 44 - OTP Ingatlanpont Iroda összes hirdetése között is.
További hirdetéseket találsz az eladó Balaton északi parti nyaralók között. Ha a teljes régió kínálata érdekel, nézd meg az eladó Balatoni nyaralók oldalt.

